Four-room apartment Via Marzabotto, Novi di Modena
€ 209.000Quadrilocale in vendita
Nel cuore di Rovereto, nel comune di Novi di Modena, si propone in vendita un duplex di recente costruzione, risalente al 2020.
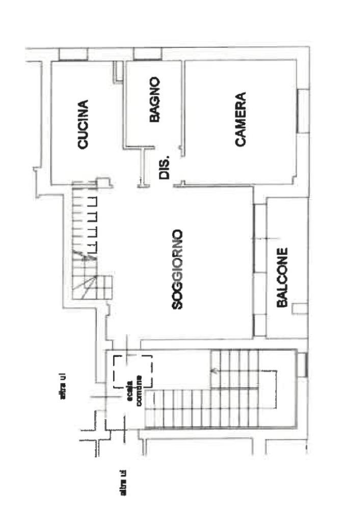
Questa abitazione di 130 mq, suddivisa in quattro locali, offre un ambiente moderno e funzionale. Composto da soggiorno ampio e luminoso, con annesso balcone per momenti di relax; cucina abitabile, camera da letto matrimoniale e bagno, al terzo piano tramite scala interna vi è un ulteriore bagno locali mansardati dove poter realizzare altre due camere da letto. L'edificio è dotato di cappotto termico, infissi in PVC e tapparelle motorizzate, garantendo un elevato comfort abitativo. Il sistema fotovoltaico contribuisce a ridurre i costi energetici, rendendo la casa efficiente e sostenibile.
Situata in una tranquilla zona residenziale, l'abitazione è comoda ai servizi essenziali e vicina a parchi, ideale per chi cerca un contesto sereno senza rinunciare alla praticità. lo stabile con poche unità abitative, assicura privacy e tranquillità, mentre le basse spese condominiali rappresentano un ulteriore vantaggio per chi desidera una soluzione abitativa moderna e conveniente. A completare l'immobile un box auto al piano terra
Per maggiori informazioni contattaci allo 059653377 oppure vieni a trovarci presso il nostro ufficio sito in Viale Manzoni 71/73
Questa abitazione di 130 mq, suddivisa in quattro locali, offre un ambiente moderno e funzionale. Composto da soggiorno ampio e luminoso, con annesso balcone per momenti di relax; cucina abitabile, camera da letto matrimoniale e bagno, al terzo piano tramite scala interna vi è un ulteriore bagno locali mansardati dove poter realizzare altre due camere da letto. L'edificio è dotato di cappotto termico, infissi in PVC e tapparelle motorizzate, garantendo un elevato comfort abitativo. Il sistema fotovoltaico contribuisce a ridurre i costi energetici, rendendo la casa efficiente e sostenibile.
Situata in una tranquilla zona residenziale, l'abitazione è comoda ai servizi essenziali e vicina a parchi, ideale per chi cerca un contesto sereno senza rinunciare alla praticità. lo stabile con poche unità abitative, assicura privacy e tranquillità, mentre le basse spese condominiali rappresentano un ulteriore vantaggio per chi desidera una soluzione abitativa moderna e conveniente. A completare l'immobile un box auto al piano terra
Per maggiori informazioni contattaci allo 059653377 oppure vieni a trovarci presso il nostro ufficio sito in Viale Manzoni 71/73
Main data
| Reference | 61075758 |
| Ad date | 18/06/2025 |
| Contract | Sale |
| Typology | Apartment |
| Surface | 130 m2 |
| Locals | 4 (4 other), 2 bathrooms |
| Plan | 2 from 2 totals |
Costs
| Price | 209.000 € |
| Price per m2 | 1.608 €/m2 |
| Condominium fees | €50,00/month |
Energy efficiency
| Year built | 2020 |
| Heating | Autonomous |
| Heating Power Type | Other |
| Energy rating | A3 |
Floor plans
Video
Address and map
Via Marzabotto, Novi di Modena
Mortgage calculation
Selling price:
Advance
20,00
Mortgage
80,00
Rate: -+
Payment: 598 per month
The results are an indicative estimate based on the data entered and do not constitute a financial offer.
Advertiser
Call
CONTACT

