Shop Statte
€ 800 per monthLocale commerciale in ottimo stato
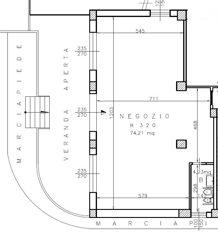
L' Agenzia "Obiettivo Casa" propone in fitto in zona centrale di Statte, prestigioso locale commerciale sito al piano rialzato, composto da un ampio ambiente unico, vano deposito e bagno, per totali 78 mq. Il locale ha 2 ampie vetrine fronte strada oltre ad un ampia porta di ingresso a vetrata; inoltre all'interno è corredato da un elegante abbassamento di soffitto con faretti/led, impianto di climatizzazione canalizzato, video sorveglianza e filodiffusione. Per info telefonare allo 0994746819
Main data
| Reference | ID2737994 |
| Ad date | 10/06/2025 |
| Contract | Rent |
| Typology | Shop |
| Surface | 78 m2 |
| Plan | 1 totals |
| Real estate use | Commercial |
Costs
| Price | 800 € per month |
Energy efficiency
| Energy rating | G |
| Energy Performance Index (IPE) | 65 kWh/m2 year |
Floor plans
Address and map
Statte
Ad without map,
try asking the advertiser for the position
try asking the advertiser for the position
Advertiser

Obiettivo Casa
Via Tripoli 2, Statte
Show Phone
Call
CONTACT

