Two-room apartment Via privata corso lima, Chiavari
€ 230.000Bilocale in vendita
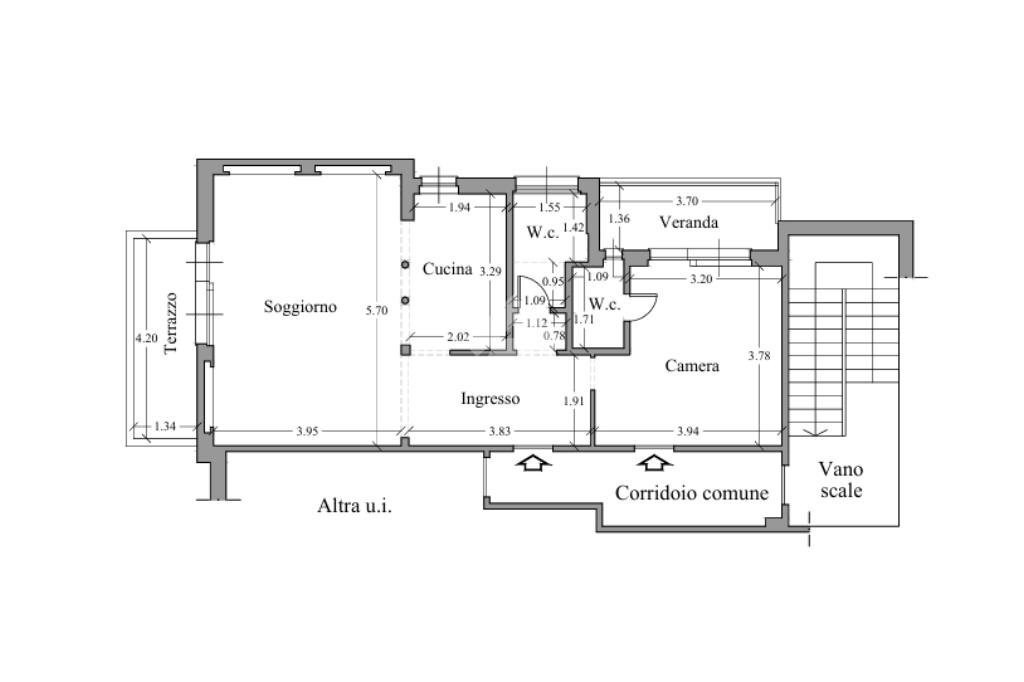
Chiavari, Via Privata di Corso Lima, proponiamo in vendita un appartamento di 75mq catastali al primo piano con ascensore.
L'immobile è composto da ingresso in soggiorno con cucina openspace, un bagno finestrato ed una camera da letto matrimoniale dotata di bagno privato, anch'esso finestrato.
L'appartamento è dotato di un balcone con una splendida vista mare e sui tetti di Chiavari ed un ulteriore balcone verandato con accesso dalla camera da letto, che gode di una vista sulle colline.
Si precisa che il corridoio di accesso all'immobile e le armadiature presenti sono ad uso esclusivo dell'appartamento stesso e di quello confinante.
Il riscaldamento è centralizzato con termovalvole e completano la proprietà due cantine confinanti.
Possibilità di acquisto di un posto auto scoperto a 50.000€.
La sua posizione strategica consente di raggiungere facilmente i principali servizi e il centro di Chiavari, rendendo questa soluzione abitativa adatta a chi cerca comfort e funzionalità in un contesto tranquillo.
L'immobile è composto da ingresso in soggiorno con cucina openspace, un bagno finestrato ed una camera da letto matrimoniale dotata di bagno privato, anch'esso finestrato.
L'appartamento è dotato di un balcone con una splendida vista mare e sui tetti di Chiavari ed un ulteriore balcone verandato con accesso dalla camera da letto, che gode di una vista sulle colline.
Si precisa che il corridoio di accesso all'immobile e le armadiature presenti sono ad uso esclusivo dell'appartamento stesso e di quello confinante.
Il riscaldamento è centralizzato con termovalvole e completano la proprietà due cantine confinanti.
Possibilità di acquisto di un posto auto scoperto a 50.000€.
La sua posizione strategica consente di raggiungere facilmente i principali servizi e il centro di Chiavari, rendendo questa soluzione abitativa adatta a chi cerca comfort e funzionalità in un contesto tranquillo.
Main data
| Reference | 61066949 |
| Ad date | 07/06/2025 |
| Contract | Sale |
| Typology | Apartment |
| Surface | 75 m2 |
| Locals | 2 (2 other), 2 bathrooms |
| Plan | 1 from 4 totals |
| Number of parking spaces | 1 |
Costs
| Price | 230.000 € |
| Price per m2 | 3.067 €/m2 |
| Condominium fees | €100,00/month |
Energy efficiency
| Year built | 1970 |
| Heating | Centralized |
| Heating Power Type | Methane |
| Energy rating | F |
| Energy performance index (EP GL, NREN ) | 139.43 kWh/m3 year |
Floor plans
Address and map
Via privata corso lima, Chiavari
Mortgage calculation
Selling price:
Advance
20,00
Mortgage
80,00
Rate: -+
Payment: 658 per month
The results are an indicative estimate based on the data entered and do not constitute a financial offer.
Advertiser
Call
CONTACT

