Castle via Pavia 10, Vellezzo Bellini
€ 5.900.000
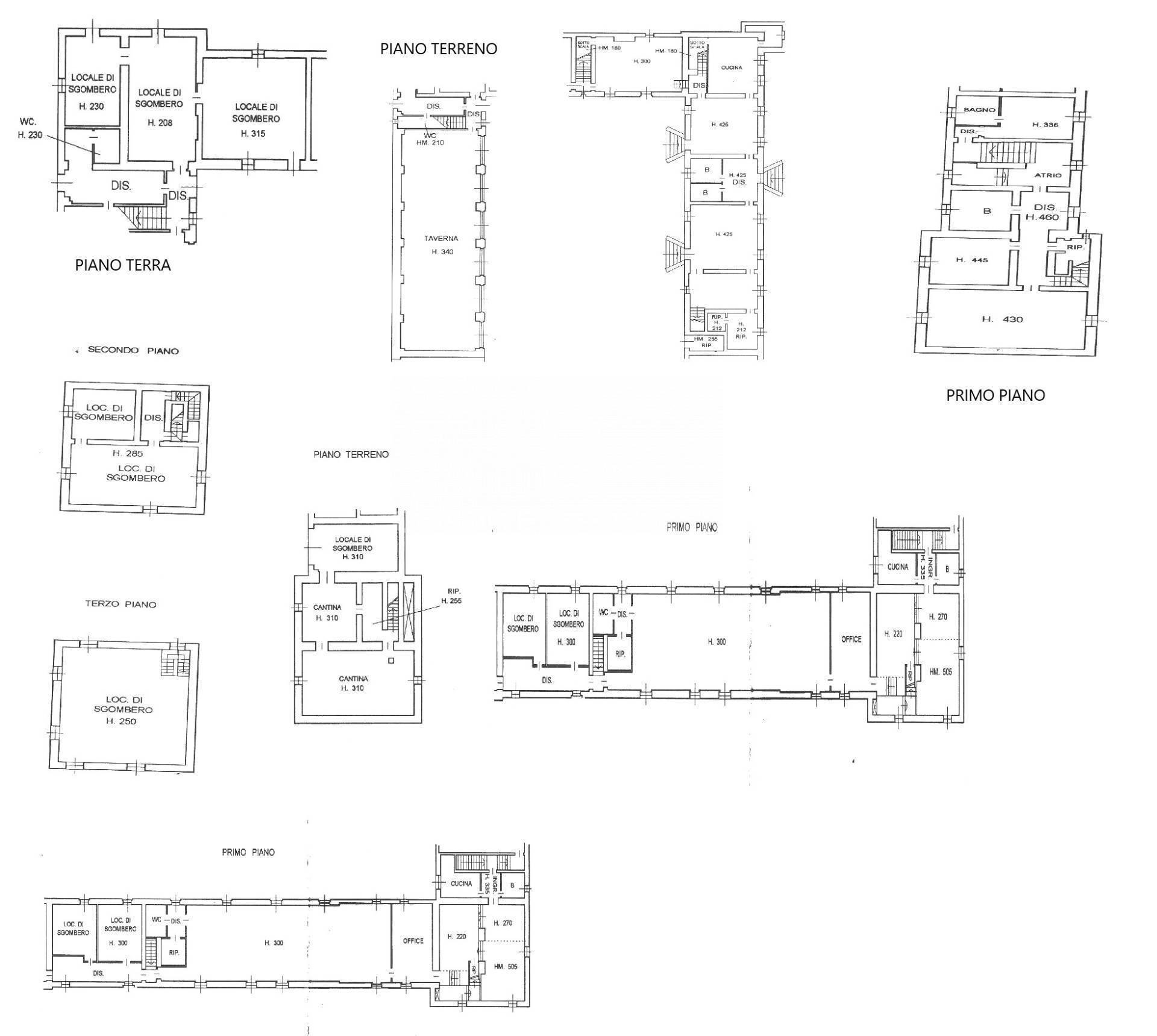
Castello storico in vendita a Giovenzano A Giovenzano, nel territorio di Vellezzo Bellini, si trova questo castello risalente al XVI secolo, un tempo residenza di Lodovico Pallavicino di Scipione. Conosciuto come Il Gioiello, ledificio conserva limpianto originario e si sviluppa intorno a una corte interna, con ambienti storici distribuiti su due livelli. La proprietà è circondata da un parco privato che ne valorizza la riservatezza e latmosfera. La posizione, tra Pavia e Milano, garantisce un facile accesso ai principali collegamenti senza rinunciare alla tranquillità della campagna. Spazi interniIl castello ha una superficie complessiva di circa 2.800 m², articolata in un corpo centrale a due piani e una torre a tre piani. Gli interni includono ampi saloni affrescati, una cucina professionale e numerosi ambienti di rappresentanza. Ai piani superiori si trovano cinque appartamenti, due sale per eventi e una mansarda. La torre centrale e le aree private conservano elementi architettonici originali, che testimoniano il valore storico della residenza. Spazi esterni e serviziIl castello è circondato da un parco privato di circa 5,5 ettari, con alberi secolari, vialetti, terrazze e aree a prato. La corte interna è ideale per ricevimenti allaperto, mentre il giardino valorizza laccesso principale. Nel cortile si trova anche una cappella privata. Gli spazi esterni offrono scorci suggestivi ideali anche per servizi fotografici ed eventi privati. Posizione e collegamentiIl Castello di Giovenzano si trova in Lombardia, in una zona collinare tra larea rurale di Milano e il parco del Tichino. La posizione garantisce tranquillità e riservatezza, pur restando ben collegata ai principali centri urbani. Milano è raggiungibile in circa unora dauto, mentre Pavia dista circa 30 minuti. La rete autostradale e ferroviaria assicura collegamenti efficienti anche con laeroporto di Milano Linate, accessibile in meno di unora.
Main data
| Reference | CBI135-2837-2205 |
| Ad date | 31/05/2025 |
| Contract | Sale |
| Typology | Castle |
| Surface | 2800 m2 |
| Locals | more than 5 (10 bedrooms, 4 other), 8 bathrooms, kitchen habitable |
| Plan | On several levels, 3 totals |
| Occupied | Free |
| Garage | Triple |
| Number of parking spaces | 3 |
| Furniture | Absent |
Costs
| Price | 5.900.000 € |
| Price per m2 | 2.107 €/m2 |
| Heating Expenses | €200,00/year |
Energy efficiency
| Status | Excellent |
| Heating | Autonomous |
| Energy rating | F |
| Energy Performance Index (IPE) | - |
Floor plans
Address and map
via Pavia
10, Vellezzo Bellini
Ad without map,
try asking the advertiser for the position
try asking the advertiser for the position
Mortgage calculation
Selling price:
Advance
20,00
Mortgage
80,00
Rate: -+
Payment: 16.874 per month
The results are an indicative estimate based on the data entered and do not constitute a financial offer.
Advertiser

Coldwell Banker Immobiliare Morabito
Corso Sempione, 44, Milano
Show Mobile
Morabito Francesco
Show Phone
Call
CONTACT

