Rustic Località Valmanera, 43, Asti
€ 1.500.000Splendida tenuta sulle colline del Monferrato
Santandrea Top Properties propone in vendita, in posizione privilegiata tra le colline del Monferrato – riconosciute Patrimonio dell’Umanità UNESCO – un prestigioso casale finemente ristrutturato, dove il fascino autentico della tradizione rurale si fonde con l’eleganza e il comfort contemporanei. Un’esclusiva strada privata conduce al cancello d’ingresso, oltre il quale un viale alberato accoglie il visitatore in un’atmosfera di charme, guidandolo verso la residenza principale. La proprietà si compone di due corpi abitativi: • un casale d’epoca, sapientemente suddiviso in quattro unità indipendenti, ognuna con caratteristiche uniche, progettate per esaltare l’autenticità architettonica e il calore originario della struttura; • un secondo edificio di più recente costruzione, attualmente adibito a residenza padronale, completo di patio coperto e garage di ampia metratura. Il tutto è immerso in un giardino curato e rigoglioso, arricchito da un campo da bocce regolamentare e da un romantico gazebo, ideale per godere momenti di relax e convivialità nella quiete della campagna. Completano la proprietà circa 58.000 mq di terreno circostante, che offrono un panorama mozzafiato e l’opportunità di coltivare un vigneto, piante da frutto e di dedicarsi alla propria passione per la natura e l’agricoltura. Questa soluzione esclusiva è ideale per chi desidera vivere in un contesto riservato e immerso nel verde, perfetta per accogliere famiglie numerose o per chi desidera ospitare amici e clienti, trasformando parte della tenuta in una struttura ricettiva di charme. Grazie agli interventi di riqualificazione energetica 110%, gli immobili offrono il connubio perfetto tra il fascino rustico e le più moderne tecnologie, garantendo efficienza e comfort senza compromessi. La proprietà è situata in una posizione strategica che coniuga tranquillità residenziale e ottima accessibilità a tutti i servizi della città. La vicinanza al casello autostradale consente rapidi collegamenti sia verso Torino che Milano, rendendo la proprietà ideale per chi desidera vivere immerso nella quiete senza rinunciare alla comodità degli spostamenti.
Main data
| Reference | SATO44257 |
| Ad date | 28/05/2025 |
| Contract | Sale |
| Typology | Rustic |
| Surface | 954 m2 |
| Locals | more than 5 (6 bedrooms, 22 other), 4 bathrooms, kitchen habitable |
| Plan | 3 totals |
| Construction type | Signorile |
| Number of balconies | 1 |
| Garage | Double |
| Number of parking spaces | 10 |
| Furniture | Partial |
Costs
| Price | 1.500.000 € |
| Price per m2 | 1.572 €/m2 |
Energy efficiency
| Year built | 1900 |
| Status | Excellent |
| Heating | Autonomous |
| Energy rating | B |
| Energy Performance Index (IPE) | 175 kWh/m2 year |
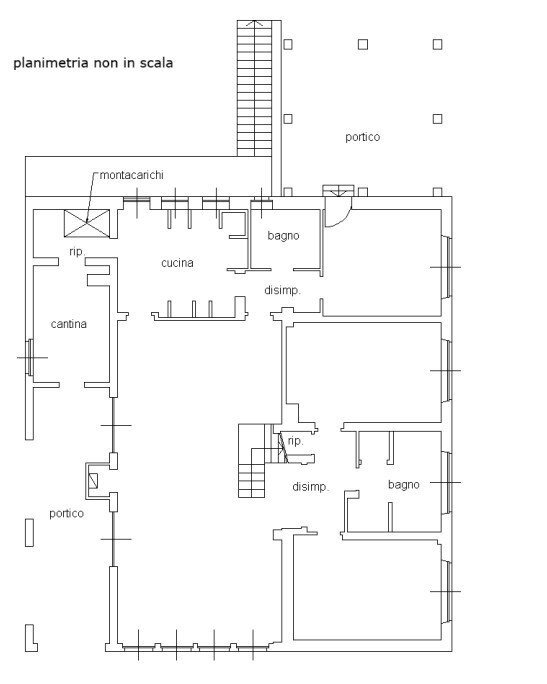
Floor plans
Address and map
Località Valmanera, 43, Asti
Mortgage calculation
Selling price:
Advance
20,00
Mortgage
80,00
Rate: -+
Payment: 4.290 per month
The results are an indicative estimate based on the data entered and do not constitute a financial offer.
Advertiser
Call
CONTACT


