Independent house Via Giancarlo Ghiraldi 1, Copparo
€ 59.000
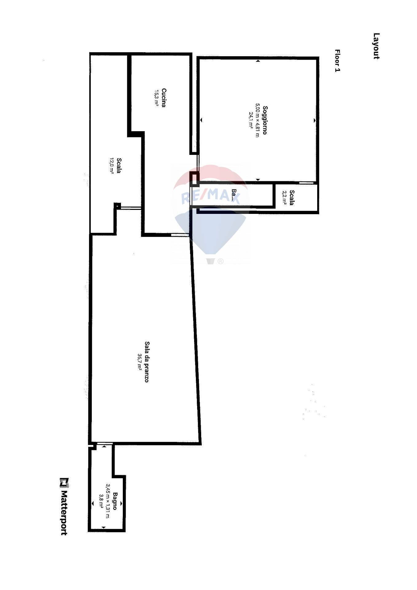
Una Casa da Sogno da Riammodernare: Spazio e Potenziale per Due Famiglie Immagina di vivere in una casa indipendente, con un ampio giardino anteriore di circa 100 metri quadrati che ti accoglie ogni volta che rientri a casa. Questo spazio verde non è solo un giardino, ma un angolo di serenità dove poter trascorrere piacevoli momenti all'aria aperta, magari sorseggiando un caffè al mattino o organizzando un barbecue con amici e familiari. Appena entrato vieni accolto da un ampio soggiorno, il cuore pulsante della casa. Da qui, una scala conduce al primo piano, dove trovi due spaziose camere da letto matrimoniali, ideali per garantire il massimo comfort e privacy ai membri della famiglia. Inoltre, un pratico ripostiglio ti offre tutto lo spazio di cui hai bisogno per organizzare la vita quotidiana. Ma la vera sorpresa è quando torni al piano terra e attraversi il soggiorno. Qui, scopri una seconda zona della casa, che si apre con una cucina abitabile, perfetta per chi ama cucinare. Adiacente alla cucina, un bagno di servizio offre praticità, mentre un grande salone con camino ti invita a rilassarti durante le fredde serate invernali. Il salone, con le sue ampie dimensioni, è lo spazio ideale per accogliere gli ospiti o semplicemente per godersi la compagnia della tua famiglia. Dal salone, una porta conduce alla corte posteriore, un ulteriore spazio esterno che si presta a molteplici usi. Qui, un terzo bagno rende questo angolo della casa ancora più funzionale e versatile. Ritornando al salone, una seconda scala ti porta alla seconda zona notte al primo piano, dove trovi un ampio studio personale e una terza camera da letto matrimoniale. Questa parte della casa offre la tranquillità e il silenzio necessari per lavorare da casa o per dedicarti ai tuoi hobby in tutta privacy. Se sei alla ricerca di un immobile che offre spazio, flessibilità e la possibilità di creare un ambiente su misura per le tue esigenze, questa casa è ciò che fa per te. Con un po' di cura e attenzione, potrebbe diventare la casa dei tuoi sogni. Le informazioni e le immagini contenute in questo annuncio hanno scopo prettamente informativo e non costituiscono, in alcun caso, elemento contrattuale. Potete contattarci senza impegno per maggiori informazioni o per prenotare un appuntamento per visionare questo immobile in vendita.
Main data
| Reference | 34581001-345 |
| Ad date | 27/05/2025 |
| Contract | Sale |
| Typology | Independent house |
| Surface | 232 m2 |
| Locals | more than 5 (4 bedrooms, 4 other), 3 bathrooms, kitchen habitable |
| Plan | On several levels, 2 totals |
| Construction type | Popular |
| Occupied | Free |
| Garage | Absent |
| Furniture | Absent |
Costs
| Price | 59.000 € |
| Price per m2 | 254 €/m2 |
Energy efficiency
| Status | To be restored |
| Heating | Autonomous |
| Heating System Type | at the stove |
| Energy rating | G |
| Energy Performance Index (IPE) | - |
Floor plans
Virtual tour
Address and map
Via Giancarlo Ghiraldi
1, Copparo
Ad without map,
try asking the advertiser for the position
try asking the advertiser for the position
Mortgage calculation
Selling price:
Advance
20,00
Mortgage
80,00
Rate: -+
Payment: 169 per month
The results are an indicative estimate based on the data entered and do not constitute a financial offer.
Advertiser
Call
CONTACT


