Terraced Villa Via Boccaccio 8, Nichelino
€ 380.000
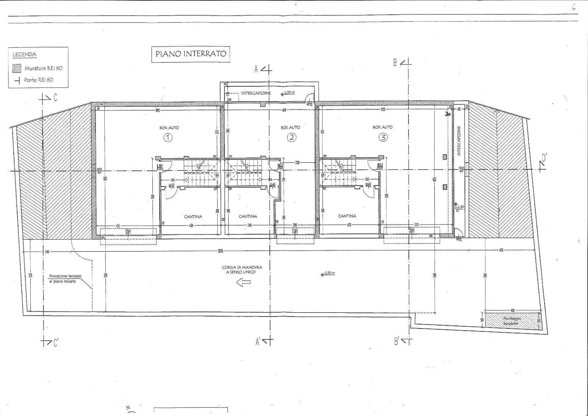
Villa a schiera in vendita a Nichelino - Via Boccaccio Siamo lieti di proporvi in vendita una villetta a schiera in complesso di sole tre unità. Situate a poca distanza da Via Torino, la zona ben fornita garantisce tranquillità ed è costituita prevalentemente da piccole palazzine e ville. L' immobili in Classe A risulta composto come segue: TIPOLOGIA A: 65 mq a piano - Nuova costruzione villa a schiera centrale composta da: -Piano Terra: ingresso living con salone, cucina abitabile, servizi e giardino su due lati. -Piano Primo: tre camere da letto e servizi. -Piano Mansardato: open space non abitabile. -Piano Interrato: box auto doppio e cantina. Totoale mq. 210 PREZZO RICHIESTO: .395.000,00 MURATURE La struttura si presente esternamente paramano/intonaco. Le murature esterne verranno realizzate con interposto uno strato isolante termico a scelta della ditta costruttrice incaricata, ancorato saldamente al paramano esterno. ISOLAMENTI Il solaio di copertura verrà isolato dall'esterno "a cappotto" con adeguato isolante a pannelli aventi adeguato spessore. Sotto i pavimenti dei locali abitabili verranno installati gli opportuni isolamenti termici ed acustici. SERRAMENTI I serramenti esterni saranno realizzati in polivinil cloruro (p.v.c.) di adeguato spessore completi di guarnizioni in gomma, di colore bianco, completi di tutta la ferramenta occorrente. Le avvolgibili di disegno tradizionale saranno realizzate in alluminio, complete della ferramenta necessaria e realizzate con profili coibentati. I vetri esterni saranno lisci trasparenti tranne che nei bagni dove saranno opachi o stampati. I portoncini d'ingresso blindati alle unità abitative saranno ad un battente liscio sia internamente che esternamente. CONSEGNA DICEMBRE 2025 Rimane la possibilità di scegliere il capitolato e la disposizione degli interni. N.B. LE INFORMAZIONI ED I CONTENUTI DEI NOSTRI ANNUNCI, BROCHURE E PAGINE WEB NON COSTITUISCONO ELEMENTO CONTRATTUALE.
Main data
| Reference | CBI098-1045-254 |
| Ad date | 24/05/2025 |
| Contract | Sale |
| Typology | Terraced Villa |
| Surface | 210 m2 |
| Locals | more than 5 (3 bedrooms, 3 other), 2 bathrooms, kitchen habitable |
| Plan | On several levels, 2 totals |
| Construction type | Average |
| Occupied | Free |
| Garage | Double |
| Number of parking spaces | 2 |
| Furniture | Absent |
Costs
| Price | 380.000 € |
| Price per m2 | 1.810 €/m2 |
Energy efficiency
| Heating | Autonomous |
| Heating System Type | on the floor |
| Energy rating | A1 |
Floor plans
Video
Address and map
Via Boccaccio
8, Nichelino
Ad without map,
try asking the advertiser for the position
try asking the advertiser for the position
Mortgage calculation
Selling price:
Advance
20,00
Mortgage
80,00
Rate: -+
Payment: 1.087 per month
The results are an indicative estimate based on the data entered and do not constitute a financial offer.
Advertiser

Coldwell Banker International & More
Corso Vittorio Emanuele II N°52/A, Torino
Show Phone
Show Mobile
Call
CONTACT

