Shop via Vittorio Veneto, 3, Luvinate
€ 630.000LUVINATE FRONTE STRADA SPAZIO COMMERCIALE
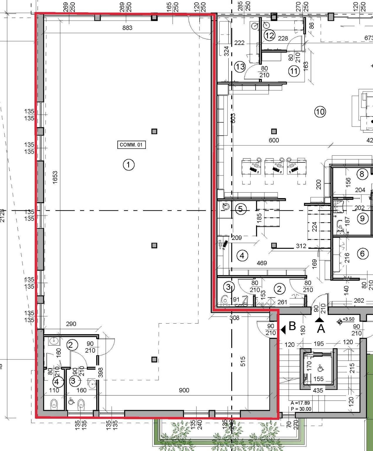
**Locale commerciale in Vendita** Luvinate, Officine Immobiliari Gazzada propone in vendita questo ampio locale commerciale, situato in una posizione strategica su una strada di forte passaggio. Con una facciata di ben 9 metri lineari e due grandi vetrine, questo immobile offre un'ottima visibilità per il tuo business. L'immobile di nuova costruzione, consegna prevista per inizio primavera 2026, si sviluppa al piano terra e presenta un'ampia stanza ideale per qualsiasi attività commerciale. Il locale è dotato di un bagno e offre la possibilità di personalizzare gli spazi interni e le finiture secondo le proprie esigenze. Grazie all'impianto di riscaldamento a pavimento con pompa di calore autonoma e all'impianto fotovoltaico, i costi di gestione saranno notevolmente contenuti. Inoltre, un ampio parcheggio è a disposizione della clientela, facilitando l'accesso alla tua attività. Compresi nel prezzo un box doppio e due posti auto privati. Contatta subito per maggiori informazioni e per prenotare una visita!
Main data
| Reference | 526 |
| Ad date | 05/05/2025 |
| Contract | Sale |
| Typology | Shop |
| Surface | 192 m2 |
| Plan | 1 totals |
| Real estate use | Commercial |
Costs
| Price | 630.000 € |
| Price per m2 | 3.281 €/m2 |
Energy efficiency
| Heating | Autonomous |
| Energy rating | A1 |
Floor plans
Address and map
via Vittorio Veneto, 3, Luvinate
Mortgage calculation
Selling price:
Advance
20,00
Mortgage
80,00
Rate: -+
Payment: 1.802 per month
The results are an indicative estimate based on the data entered and do not constitute a financial offer.
Advertiser
Call
CONTACT


