Office via clara maffei, Bergamo
€ 1.500.000
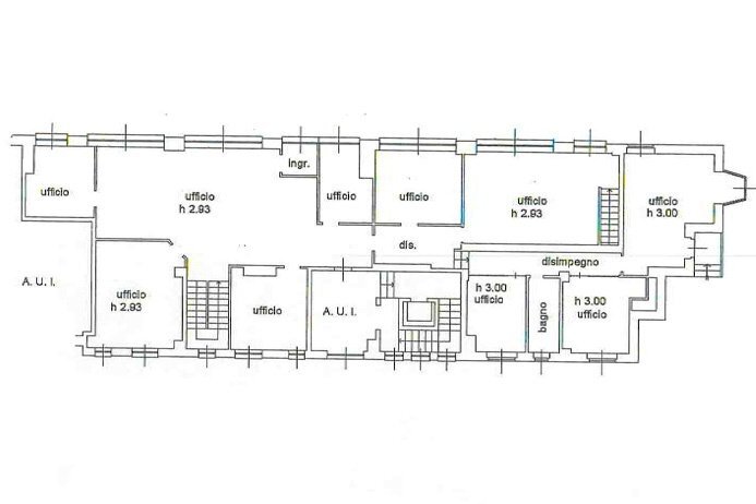
- BERGAMO _ CENTRALE Prestigioso ufficio indipendente di mq 750 dislocato su 2 livelli completamente ristrutturato, dotato di vetrine fronte strada ed area esterna ad uso esclusivo. L'immobile è situato in posizione molto centrale a pochi passi da via Camozzi, da Piazza Matteotti e da tutti gli uffici e gli enti comunali, nonchè da tribunale di Bergamo e facilmente raggiungibile a piedi dalla stazione ferroviaria, in fronte all'immobile sono presenti svariati parcheggi pubblici. Immobile dotato di 3 accessi indipendenti di cui un accesso principale direttamente fronte strada e 2 ulteriori accessi dall'area condominiale, dotato inoltre di uso esclusivo di area esterna fronte strada di mq 100 circa. Internamente l'immobile è attualmente cosi composto: Piano terreno di mq 308: ingresso, ampia area reception open space, disimpegno, 9 uffici, bagno, 2 scale interne di accesso agli uffici al piano interrato. Piano interrato di mq 444: ampia sala meeting, 5 ripostigli/archivi, 5 uffici, 4 bagni, localte tecnico. L'immobile è stato completamente ed elegantemente ristrutturato dotato di nuovo impianto termico per riscaldamento, raffrescamento e ricambio d'aria, bagni nuovi, nuovi impianti elettrici e connessione, nuove pavimentazioni in elegante parquet prefinito, impianto di illuminazione. Disponibili autorimesse si richiesta. 1.500.000,00 Spese condominiali 6.800,00 annue. CLASSE ENERGETICA: In attesa di certificazione energetica Vai all'annuncio: https://www.studio-valle.com/it/bergamo-centrale-38/ STUDIO IMMOBILIARE VALLE Flaminia S.r.l. Real estate and investments 24121 Bergamo - Italy V.le Vitt. Emanuele II n. 65 tel +39 035 231588 WhatsApp: +39 3920190070 www.studio-valle.com [email protected] Facebook: StudioImmobiliareValle Twitter: ValleRealEstate Skype: Valle-Real-Estate
Main data
| Reference | bgclaram750_1 |
| Ad date | 22/05/2025 |
| Contract | Sale |
| Typology | Office |
| Surface | 750 m2 |
| Locals | more than 5 (21 other), 5 bathrooms |
| Plan | Earth, 5 totals |
| Occupied | Free |
| Furniture | Partial |
Costs
| Price | 1.500.000 € |
| Price per m2 | 2.000 €/m2 |
Energy efficiency
| Status | Excellent |
| Heating | Autonomous |
| Heating System Type | by air |
| Heating Power Type | Electric |
| Energy rating | Property exempt from energy certification |
Floor plans
Address and map
via clara maffei, Bergamo
Ad without map,
try asking the advertiser for the position
try asking the advertiser for the position
Mortgage calculation
Selling price:
Advance
20,00
Mortgage
80,00
Rate: -+
Payment: 4.290 per month
The results are an indicative estimate based on the data entered and do not constitute a financial offer.
Advertiser
Call
CONTACT


