Semi-detached house via risorgimento, Brembate
€ 69.000
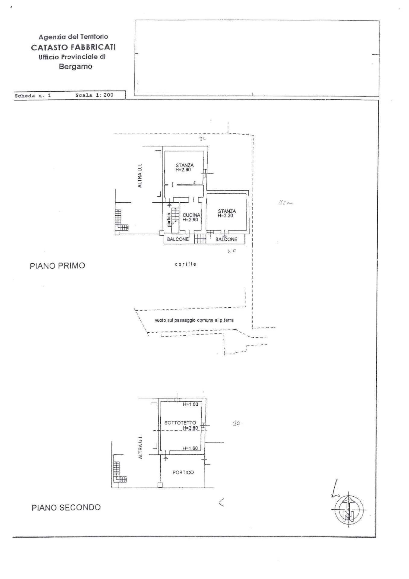
CASA SEMI INDIPENDENTE - VISTA FIUME BREMBO Brembate Zona Ponte vecchio - proponiamo in vendita casetta su più livelli da ristrutturare. Contesto senza spese condominiali L' immobile e' cosi composto: Piano Primo con portico di proprietà, ingresso con stanza più cucina e disimpegno di 32 mq. Balcone con accesso a seconda stanza separata di 20 mq. più locale sottotetto con altezza di 2.8 mt. e portico. Fantastica vista fiume Brembo con porzione di cortile al piano terra utilizzabile come posti auto. Predisposizione impianti e tetto a posto. A pochi minuti dal casello A4 Mm-Capriate, centro commerciale iper. PER INFORMAZIONI E VISIONE CONTATTATECI AL NUMERO DIRETTO 02/38236174 - 339/2955559 EMAIL: [email protected] PER VALUTARE LE NOSTRE OFFERTE CONSULTATE IL SITO INTERNET : www.immobilgo.net SU APPUNTAMENTO INDIRIZZO : Via Marconi, 1 Trezzo Sull'Adda.
Main data
| Reference | V002502 |
| Ad date | 22/05/2025 |
| Contract | Sale |
| Typology | Semi-detached house |
| Surface | 60 m2 |
| Locals | 4 (4 bedrooms), 2 bathrooms, kitchen on sight |
| Plan | Mezzanine, 2 totals |
| Construction type | Popular |
| Occupied | Free |
| Garage | Double |
Costs
| Price | 69.000 € |
| Price per m2 | 1.150 €/m2 |
Energy efficiency
| Status | Fair |
| Heating | Autonomous |
| Heating Power Type | Other |
| Energy rating | G |
| Energy Performance Index (IPE) | - |
Floor plans
Video
Address and map
via risorgimento, Brembate
Ad without map,
try asking the advertiser for the position
try asking the advertiser for the position
Mortgage calculation
Selling price:
Advance
20,00
Mortgage
80,00
Rate: -+
Payment: 197 per month
The results are an indicative estimate based on the data entered and do not constitute a financial offer.
Advertiser

ImmobilGo
via guglielmo marconi 1, Trezzo sull'Adda
Show Phone
Show Mobile
Call
CONTACT

