Commercial Activity Vico I Emanuele Duni 19, Matera
€ 29.000
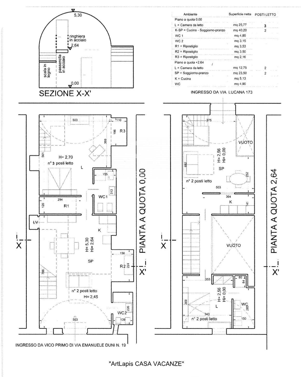
PUGLIA - MATERA - VICO I EMANUELE DUNI el cuore della splendida città di Matera, patrimonio dellUNESCO e meta turistica tra le più amate in Italia, è in vendita unattività ricettiva perfettamente avviata e già operativa con successo su Airbnb, dove ha raccolto ottime recensioni e mantiene un flusso turistico costante durante tutto lanno. La struttura, che si sviluppa su una superficie di 184 mq, è attualmente in locazione con contratto commerciale 4+4 regolarmente registrato, garantendo così massima continuità operativa al futuro acquirente. Un grande vantaggio è la presenza di due ingressi indipendenti, che permettono la gestione separata di due unità ricettive oppure lorganizzazione di ununica attività più ampia e versatile, adattabile a diverse strategie imprenditoriali. Completamente ristrutturato, arredato e climatizzato, limmobile si trova in una posizione strategica, in una zona ad alta affluenza turistica, vicina ai principali punti dinteresse della città. La struttura è pronta alluso: ogni aspetto è stato ottimizzato per garantire una gestione semplice ed efficiente, anche da remoto. Inclusi nella vendita : Arredi completi e in ottime condizioni Profili e credenziali Airbnb con storico recensioni e prenotazioni Materiali promozionali e procedure operative automatizzate (check-in, check-out, comunicazione con gli ospiti) Impianti a norma, documentazione aggiornata e gestione ottimizzata Possibilità di affiancamento iniziale per facilitare il subentro Un'opportunità perfetta per Investitori che vogliono entrare in un mercato turistico solido e in continua crescita, gestori con esperienza nel settore extra-alberghiero in cerca di una struttura flessibile, già avviata e con potenziale di espansione e chi desidera unattività chiavi in mano, in grado di generare redditività immediata e pronta a essere ampliata o replicata.
Main data
| Reference | CBI094-839-63947 |
| Ad date | 21/05/2025 |
| Contract | Sale |
| Typology | Commercial Activity |
| Surface | 184 m2 |
| Locals | 4 (4 other), 3 bathrooms, kitchen kitchenette |
| Plan | On several levels, 2 totals |
| Occupied | Free |
| Garage | Absent |
| Furniture | Complete |
Costs
| Price | 29.000 € |
| Price per m2 | 158 €/m2 |
Energy efficiency
| Status | Partially restored |
| Heating System Type | by air |
| Heating Power Type | Electric |
| Energy rating | G |
| Energy Performance Index (IPE) | - |
Floor plans
Address and map
Vico I Emanuele Duni
19, Matera
Ad without map,
try asking the advertiser for the position
try asking the advertiser for the position
Mortgage calculation
Selling price:
Advance
20,00
Mortgage
80,00
Rate: -+
Payment: 83 per month
The results are an indicative estimate based on the data entered and do not constitute a financial offer.
Advertiser
Call
CONTACT


