Office Parma
€ 295.000
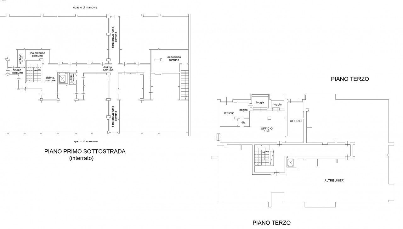
PARMA VENDESI UFFICIO ADIACENZE VIALE PIACENZA. In ottima posizione a poca distanza del centro storico, dalla stazione e dagli ingressi in tangenziale vendiamo ufficio in ottime condizioni in palazzina di recente costruzione. L’immobile risulta così composto un ampio vano con due logge sul verde condominiale, un ulteriore vano ed una grande stanza che puàq contenere anche due postazioni. Autorimessa al piano S1. Classe energetica A. Spese condominiali di circa 110 euro mese. Impianto di riscaldamento a cogenerazione con consumi irrisori. Richiesta euro 295.000
Main data
| Reference | SUP073 |
| Ad date | 15/05/2025 |
| Contract | Sale |
| Typology | Office |
| Surface | 135 m2 |
| Locals | 1 bathroom |
| Plan | 3 |
Costs
| Price | 295.000 € |
| Price per m2 | 2.185 €/m2 |
| Condominium fees | €117,00/month |
Energy efficiency
| Energy rating | A |
| Energy Performance Index (IPE) | 7.27 kWh/m2 year |
Floor plans
Address and map
Parma
Mortgage calculation
Selling price:
Advance
20,00
Mortgage
80,00
Rate: -+
Payment: 844 per month
The results are an indicative estimate based on the data entered and do not constitute a financial offer.
Advertiser
Call
CONTACT


