Independent house Via Don G. Campion, Cimadolmo
€ 355.000
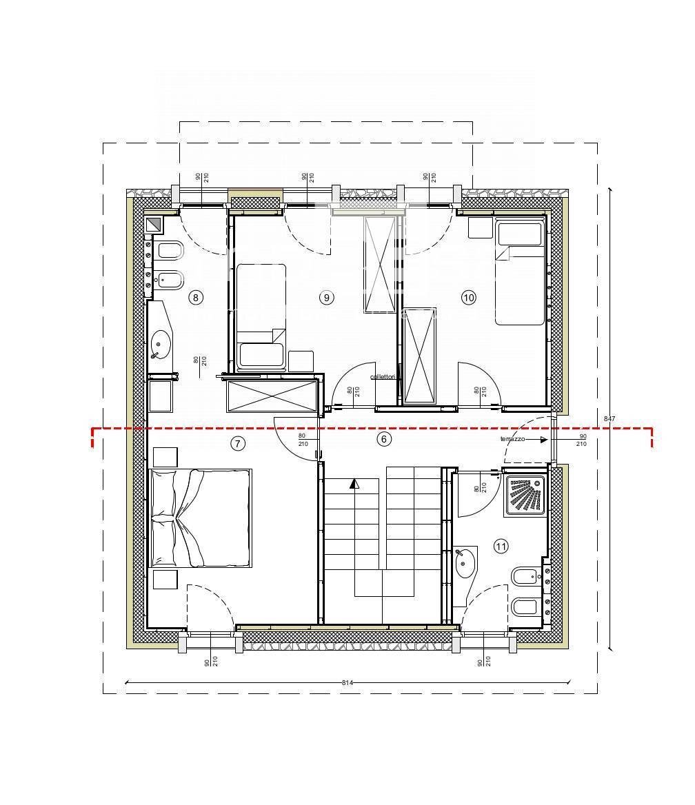
Singola in contesto di residence in vendita a Cimadolmo. In zona San Michele di Piave, a Cimadolmo, sorge questa splendida casa indipendente in vendita, attualmente in fase di costruzione in consegna ad inizio 2026 salvo accordi diversi. L' immobile è inserito in un contesto di residence, composto da dieci abitazioni separate dai relativi garage, ognuna con giardino di proprietà (adibita su richiesta zona barbecue e ricovero attrezzi) e un' area verde comune posta centralmente. Si caratterizza per le facciate in sassi del Piave, in perfetta armonia con l'ambiente circostante. L'abitazione si sviluppa su due piani, travati a vista in legno di abete antico e stipiti in pietra. Al piano terra l'ingresso principale si apre su un luminoso soggiorno dalle ampie vetrate che si affacciano sul giardino privato circostante e la corte comune. La cucina separata dal soggiorno è abitabile, poi troviamo un ripostiglio il bagno di servizio e l'accesso diretto al garage. Al primo piano una camera matrimoniale con bagno (o a richiesta cabina armadio), due camere singole e un ulteriore bagno. L' abitazione sarà in classe A4 fornita di fotovoltaico, pompa di calore, riscaldamento e raffrescamento a pavimento di ultima generazione, per un comfort ottimale in ogni stagione, una soluzione eco-sostenibile che garantisce un notevole risparmio sulle bollette. Serramenti in legno con vetro antisfondamento completi di oscuri e zanzariere. Completa la proprietà anche un posto auto esterno scoperto. Costruita con materiali di alta qualità e finiture moderne, questa casa indipendente rappresenta l'ideale per chi desidera vivere in una zona tranquilla e residenziale, a pochi passi da tutti i servizi e le comodità della vita quotidiana. Non perdere l'opportunità di acquistare una casa indipendente perché in questa fase, è ancora possibile scegliere le finiture da capitolato e decidere anche una diversa distribuzione degli spazi interni potendola così personalizzare secondo i propri gusti ed esigenze. Per maggiori informazioni su questa abitazione singola di nuova costruzione in vendita a Cimadolmo, potete contattare senza impegno l'agenzia immobiliare impREsa di Silea telefonando al N 0422/460300 citando il rif I/SMN279-C Visitate anche il nostro sito internet www.impresaimmobiliare.com
Main data
| Reference | I/SMN279-C3 |
| Ad date | 15/05/2025 |
| Contract | Sale |
| Typology | Independent house |
| Surface | 136 m2 |
| Locals | 5 (3 bedrooms, 2 other), 3 bathrooms, kitchen habitable |
| Plan | Earth, 2 totals |
| Construction type | Average |
| Occupied | Free |
| Garage | Single |
| Number of parking spaces | 1 |
Costs
| Price | 355.000 € |
| Price per m2 | 2.610 €/m2 |
Energy efficiency
| Heating | Autonomous |
| Heating System Type | on the floor |
| Heating Power Type | Photovoltaic |
| Energy rating | A4 |
Floor plans
Address and map
Via Don G. Campion, Cimadolmo
Ad without map,
try asking the advertiser for the position
try asking the advertiser for the position
Mortgage calculation
Selling price:
Advance
20,00
Mortgage
80,00
Rate: -+
Payment: 1.015 per month
The results are an indicative estimate based on the data entered and do not constitute a financial offer.
Advertiser

impREsa Silea
Via Callalta, 40, Silea
Show Phone
Call
CONTACT

