Farm Via Pian dl Tivano 19, Sormano
€ 550.000
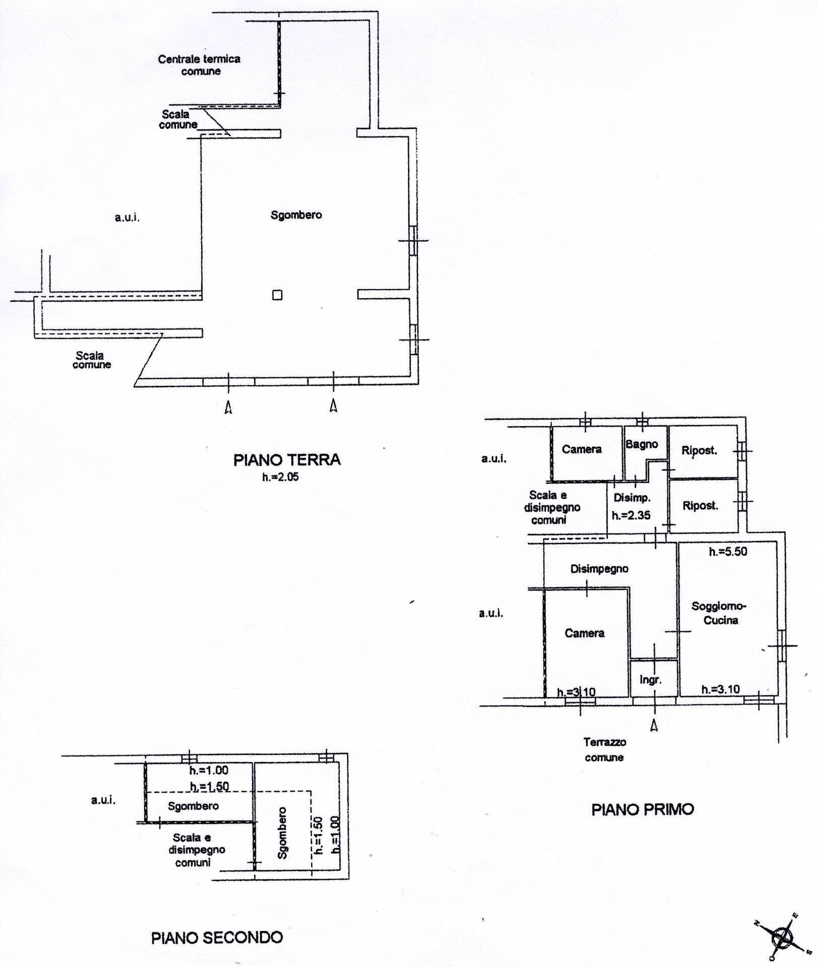
Proprietà ideale per chi vuole avviare un'attività di agriturismo e allevamento con vendita di prodotti locali, in uno dei territori, il Triangolo Lariano, più noti in Europa, ad un passo dal lago di Como. Un grande edificio residenziale disposto su tre piani, con inoltre una stalla/deposito/caseificio, inseriti in quasi 4000 mq di terreno e circondato da pascoli. La casa presenta un piano terra/seminterrato con 270 mq di spazio a disposizione (sgombero) per varie funzioni, un piano primo di altrettanti 270 mq con un soggiorno, una cucina abitabile, una camera, un bagno, un ripostiglio e ancora, sempre al piano primo, ancora due camere, un soggiorno-cucina, due ampi ripostigli, un bagno; completa l'edificio un sottotetto con 4 ampi locale a disposizione e un bagno. La proprietà è completamente recintata e circondata da verde. Il centro della piccola località, Pian del Tivano, è a poco meno di un km: vi si trovano bar, ristoranti e trattorie con cucina locale, oltre ad ampi spazi di sosta e svago. Un'occasione unica ad un prezzo eccellente.
Main data
| Reference | Sorm 2 |
| Ad date | 15/05/2025 |
| Contract | Sale |
| Typology | Farm |
| Surface | 675 m2 |
| Locals | more than 5 (7 other), 3 bathrooms |
| Occupied | Free |
Costs
| Price | 550.000 € |
| Price per m2 | 815 €/m2 |
Energy efficiency
| Heating Power Type | Other |
| Energy rating | Property exempt from energy certification |
Floor plans
Address and map
Via Pian dl Tivano
19, Sormano
Ad without map,
try asking the advertiser for the position
try asking the advertiser for the position
Mortgage calculation
Selling price:
Advance
20,00
Mortgage
80,00
Rate: -+
Payment: 1.573 per month
The results are an indicative estimate based on the data entered and do not constitute a financial offer.
Advertiser
Call
CONTACT


