Villa LA RIMESSA 59, Chiusi della Verna
€ 395.000
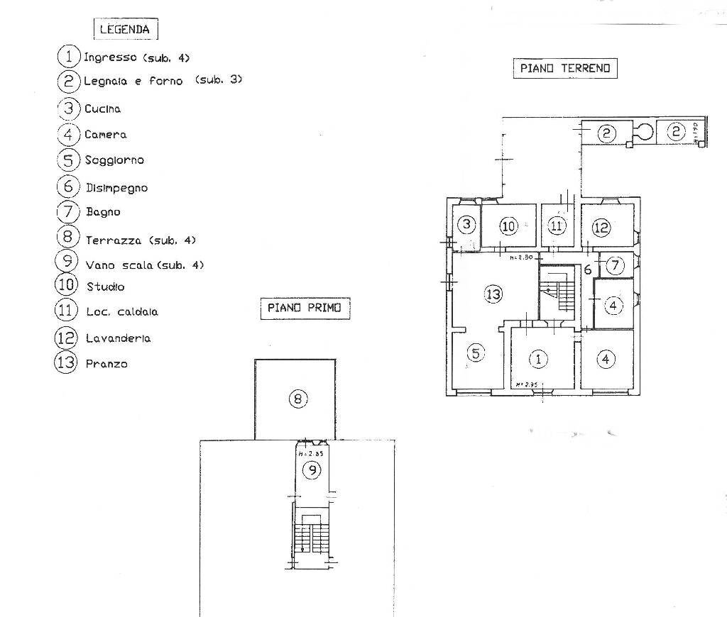
RASSINA - immediate vicinanze - vendesi villa circondata da parco di circa 3 ettari e piscina. L'immobile è facilmente suddivisibile in tre appartamenti con ingresso indipendente per una superficie complessiva di 392 mq. Rifiniture di pregio. Piano terra: ampio ingresso disimpegno, salone doppio con grande camino, cucina, tre camere, bagno, lavanderia, accesso al garage, forno e legnaia; piano primo: due appartamenti con ingresso indipendente sia dal resede, sia dalla rampa di scale interna. - composti da 4 vani ciascuno (due camere, cucina, bagno, salone con camino); piano secondo: mansarda con camino.
Main data
| Reference | 4C |
| Ad date | 15/05/2025 |
| Contract | Sale |
| Typology | Villa |
| Surface | 392 m2 |
| Locals | more than 5 (7 bedrooms, 12 other), 3 bathrooms, kitchen habitable |
| Plan | Earth, 2 totals |
| Garage | Double |
Costs
| Price | 395.000 € |
| Price per m2 | 1.008 €/m2 |
Energy efficiency
| Status | Excellent |
| Heating | Autonomous |
| Heating Power Type | Other |
| Energy rating | G |
| Energy Performance Index (IPE) | - |
Floor plans
Address and map
LA RIMESSA
59, Chiusi della Verna
Ad without map,
try asking the advertiser for the position
try asking the advertiser for the position
Mortgage calculation
Selling price:
Advance
20,00
Mortgage
80,00
Rate: -+
Payment: 1.130 per month
The results are an indicative estimate based on the data entered and do not constitute a financial offer.
Advertiser
Call
CONTACT

