Three-room apartment via Nelli, Fano
€ 345.331
VF001288 Fano Appartamento di 115,11 mq commerciali richiesta euro 345.331.50 + iva
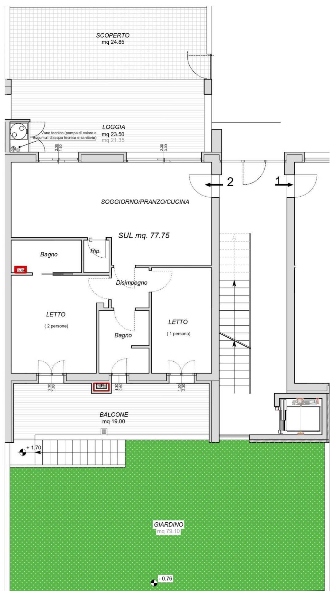
Limmobile di 77,75 mq si compone da ingresso-soggiorno, angolo cottura con ampia loggia 23.50 mq abitabile e lastrico solare 24.85 mq al servizio dellarea living con rilassante vista mare/piscina, disimpegno, due bagni di cui uno finestrato , un ripostiglio, due camere da letto di cui una matrimoniale ed una cameretta con possibilità di letto a castello, le camere si affacciano su lastrico privato al piano rialzato in parte lastricato 19 mq da cui si accede tramite scala a giardino privato di 79.10 mq
Il cantiere, sito in una posizione molto comoda, sorge letteralmente a due passi dal mare e con 7 minuti a piedi si arriva direttamente al centro di Fano.
Gli appartamenti saranno dotati di cappotto esterno con parete ventilata, riscaldamento a pavimento, pompa di calore, predisposizione per aria condizionata, piano di cottura a induzione secondo le nuove normative, vista mare sin dal piano terra rialzato, dotato di vani scala con rispettivo ascensore, utenze autonome di acqua e luce, impianto fotovoltaico autonomo di 1,7 kW.
Le finiture dei singoli appartamenti sono a scelta del cliente come da nostro capitolato dimpresa esposto presso i nostri uffici.
Eventuali varianti sono personalizzabili sotto previo preventivo firmato in accordo con le parti e pagamento al 50% allordine e il restante 50% alla consegna da parte del cliente.
Classe energetica A3/A4 a basso consumo energetico, in base anche allorientamento dellunità abitativa.
Le spese condominiali sono basse grazie anche allimpianto fotovoltaico predisposto sul tetto dellintero edificio. Sarà possibile acquistare, a parte, garage e cantine al piano interrato e al prezzo di 1.500,00 / al mq separatamente.
Il complesso residenziale si compone in totale di 5 palazzine, le prime due sono già state realizzate e sono già interamente abitate, le ultime 3 palazzine fanno parte del complesso residenziale che sarà completato con una piscina ad uso condominiale delle stesse.
Le palazzine saranno realizzate contemporaneamente con una differenza di 6 mesi per la realizzazione fra la prima (n.3) e lultima palazzina (n.5).
Maggiori informazioni, visite su appuntamento, scrivere a [email protected] - whts 346/7480725. Richiesta euro 345.331,50+ IVA
Limmobile di 77,75 mq si compone da ingresso-soggiorno, angolo cottura con ampia loggia 23.50 mq abitabile e lastrico solare 24.85 mq al servizio dellarea living con rilassante vista mare/piscina, disimpegno, due bagni di cui uno finestrato , un ripostiglio, due camere da letto di cui una matrimoniale ed una cameretta con possibilità di letto a castello, le camere si affacciano su lastrico privato al piano rialzato in parte lastricato 19 mq da cui si accede tramite scala a giardino privato di 79.10 mq
Il cantiere, sito in una posizione molto comoda, sorge letteralmente a due passi dal mare e con 7 minuti a piedi si arriva direttamente al centro di Fano.
Gli appartamenti saranno dotati di cappotto esterno con parete ventilata, riscaldamento a pavimento, pompa di calore, predisposizione per aria condizionata, piano di cottura a induzione secondo le nuove normative, vista mare sin dal piano terra rialzato, dotato di vani scala con rispettivo ascensore, utenze autonome di acqua e luce, impianto fotovoltaico autonomo di 1,7 kW.
Le finiture dei singoli appartamenti sono a scelta del cliente come da nostro capitolato dimpresa esposto presso i nostri uffici.
Eventuali varianti sono personalizzabili sotto previo preventivo firmato in accordo con le parti e pagamento al 50% allordine e il restante 50% alla consegna da parte del cliente.
Classe energetica A3/A4 a basso consumo energetico, in base anche allorientamento dellunità abitativa.
Le spese condominiali sono basse grazie anche allimpianto fotovoltaico predisposto sul tetto dellintero edificio. Sarà possibile acquistare, a parte, garage e cantine al piano interrato e al prezzo di 1.500,00 / al mq separatamente.
Il complesso residenziale si compone in totale di 5 palazzine, le prime due sono già state realizzate e sono già interamente abitate, le ultime 3 palazzine fanno parte del complesso residenziale che sarà completato con una piscina ad uso condominiale delle stesse.
Le palazzine saranno realizzate contemporaneamente con una differenza di 6 mesi per la realizzazione fra la prima (n.3) e lultima palazzina (n.5).
Maggiori informazioni, visite su appuntamento, scrivere a [email protected] - whts 346/7480725. Richiesta euro 345.331,50+ IVA
Main data
| Reference | VF001288 |
| Ad date | 15/05/2025 |
| Contract | Sale |
| Typology | Apartment |
| Surface | 115 m2 |
| Locals | 3 (2 bedrooms, 1 other), 2 bathrooms |
| Plan | Earth, 4 totals |
| Construction type | Signorile |
| Occupied | Free |
| Furniture | Absent |
Costs
| Price | 345.331 € |
| Price per m2 | 3.003 €/m2 |
Energy efficiency
| Heating | Autonomous |
| Heating System Type | on the floor |
| Heating Power Type | Electric |
| Energy rating | A4 |
Address and map
via Nelli, Fano
Ad without map,
try asking the advertiser for the position
try asking the advertiser for the position
Mortgage calculation
Selling price:
Advance
20,00
Mortgage
80,00
Rate: -+
Payment: 988 per month
The results are an indicative estimate based on the data entered and do not constitute a financial offer.
Advertiser

La Pesarese
V.le XII Settembre 44, Fano
Show Phone
Show Mobile
Call
CONTACT

