Three-room apartment VIA TIEPOLO, Brembate
€ 169.000
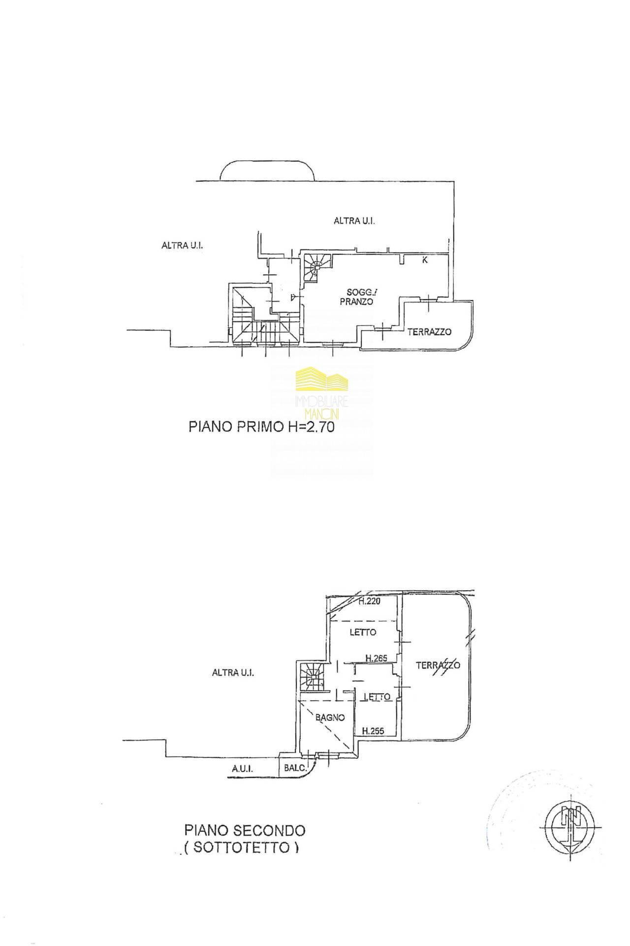
A BREMBATE, Immobiliare Mancini propone IN ESCLUSIVA BELLISSIMO TRILOCALE DUPLEX CON DOPPIO TERRAZZO + DUE BOX SINGOLI. L'immobile situato al piano PRIMO su due livelli, di costruzione 2006, è situato in zona tranquilla di sole costruzioni recenti, in contesto residenziale. L'appartamento, in OTTIMO STATO, è composto da ingresso in ampia e luminosa zona giorno e cucina A VISTA ma separata negli spazi dotata di led luminosi, con doppio accesso su TERRAZZO di circa 15 mq. Tramite scala si accede alla zona notte, dove troviamo camera matrimoniale e cameretta con entrambe l'accesso su secondo TERRAZZO di circa 38 mq con pergola a norma che copre metà della superficie e ampio bagno doppiamente finestrato con doppio lavabo, sanitari sospesi, vasca con box doccia e accesso su balcone. Gli infissi sono in legno doppio vetro con zanzariere, persiane in legno e tende sole elettriche. Pavimentazione in parquet su tutto l'immobile tranne nei servizi dotati di pavimentazione in gres. Riscaldamento autonomo con caloriferi in ghisa. Accessoriato di antifurto, porta blindata, zanzariere, tende da sole elettriche e aria condizionata inverter (aria condizionata ed antifurto con funzioni domotiche comandabili da remoto). A completare la proprietà, DUE BOX SINGOLI, entrambi con cler automatizzate. Le spese condominiali ammontano a soli 60 euro mensili, rendendo l'abitazione ideale per chi cerca un'opzione a basso costo. La proprietà è completamente arredata, offrendo la possibilità di entrare perfettamente a vivere senza alcun lavoro di ristrutturazione. Ideale per single, coppie o famiglie di tre persone, questo trilocale è la soluzione perfetta per chi cerca una casa pronta all'uso e in una zona residenziale tranquilla e ben servita. Non perdere l'opportunità di diventare proprietario di questo confortevole appartamento a Brembate! SE SIETE INTERESSATI NON ESITATE A CONTATTARE IMMOBILIARE MANCINI AI NUMERI 0262068566 O 3311211947, OPPURE LASCIATE UN MESSAGGIO ALLA MAIL [email protected] E VERRETE RICONTATTATI. CI TROVATE IN VIA MAZZINI N. 70, TREZZO SULL'ADDA , CENTRO POLIFUNZIONALE "LA PIAZZA"
Main data
| Reference | 216 |
| Ad date | 15/05/2025 |
| Contract | Sale |
| Typology | Apartment |
| Surface | 102 m2 |
| Locals | 3 (2 bedrooms, 1 other), 1 bathroom, kitchen on sight |
| Plan | 1 from 2 totals |
| Construction type | Signorile |
| Occupied | Free |
| Garage | Double |
| Furniture | Complete |
Costs
| Price | 169.000 € |
| Price per m2 | 1.657 €/m2 |
Energy efficiency
| Status | Excellent |
| Heating | Autonomous |
| Energy rating | D |
| Energy Performance Index (IPE) | 92 kWh/m2 year |
Floor plans
Video
Address and map
VIA TIEPOLO, Brembate
Ad without map,
try asking the advertiser for the position
try asking the advertiser for the position
Mortgage calculation
Selling price:
Advance
20,00
Mortgage
80,00
Rate: -+
Payment: 483 per month
The results are an indicative estimate based on the data entered and do not constitute a financial offer.
Advertiser
Call
CONTACT


