Two-room apartment via mazzini 70, Trezzo sull'Adda
€ 146.000
A TREZZO SULL'ADDA , in zona di prestigio circondata dal verde, Immobiliare Mancini propone NUOVE COSTRUZIONI - BILOCALE CON GIARDINO + CANTINA.
- IMMAGINI CAMPIONE INDICATIVE -
L'immobile, DI NUOVA COSTRUZIONE, è situato al PIANO TERRA, di NUOVA COSTRUZIONE 2022, in contesto condominiale residenziale di 3 piani fuori terra in CLASSE ENERGETICA "A4".
In FASE DI COSTRUZIONE e IN PRONTA CONSEGNA A FINE 2024!
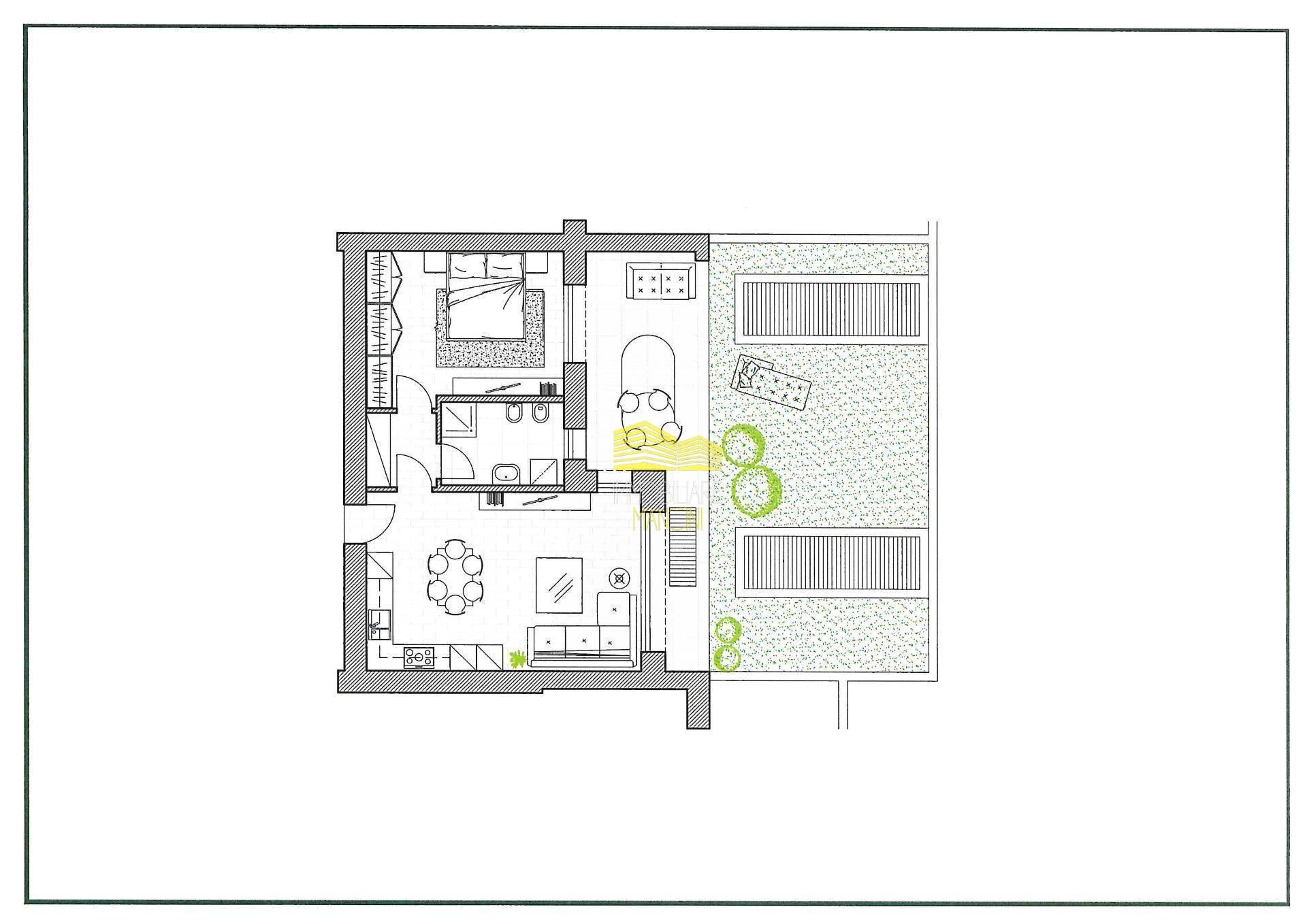
L' immobile è composto da ingresso in ampio e luminoso soggiorno e cucina A VISTA con sbarco su GIARDINO ESCLUSIVO di 51 mq e PORTICO di 20 mq, disimpegno, bagno e camera matrimoniale con secondo affaccio su giardino.
A completare la proprietà, CANTINA.
POSSIBILITA' BOX DOPPIO A PARTE DAL PREZZO DI VENDITA.
Pavimentazione in gress porcellanato 1° scelta di formato variabile con rifiniture su scelta del cliente finale.
Gli infissi saranno realizzati in doppio vetro pvc, porta di ingresso con serratura elettrica e manuale.
Possibilità predisposizione allarme.
ASCENSORI AUTOMATICI a 5 fermate con livellamento automatico al piano ed impianto centralizzato di ventilazione meccanica.
Antenna tv centralizzata con parabola e predispozione impianto satellitare.
Predisposizione impianto telefonico, ingresso carraio con cancello elettrico automatrizzato
Impianto generazione riscaldamento, acqua calda sanitaria e raffrescamento di tipo autonomo con unica pompa di calore.
Riscaldamento con pannelli radianti a pavimento, predisposizione per impianto di raffrescamento con unità split ad aria.
Per ogni appartamento è previsto IMPIANTO FOTOVOLTAICO dedicato in copertura.
L'unità immobiliare sorgerà vicino le scuole, fermata del bus e AUTOSTRADA A4.
E' un ottima soluzione, perfetta sia per una coppia che desidera ampi spazi sia per una famiglia che cerca una soluzione adatta alle proprie esigenze!
SE SIETE INTERESSATI NON ESITATE A CONTATTARE IMMOBILIARE MANCINI AI NUMERI 0262068566 O 3311211947, OPPURE LASCIATE UN MESSAGGIO ALLA MAIL [email protected] E VERRETE RICONTATTATI.
CI TROVATE IN VIA MAZZINI N. 70, TREZZO SULL'ADDA , CENTRO POLIFUNZIONALE "LA PIAZZA".
- IMMAGINI CAMPIONE INDICATIVE -
L'immobile, DI NUOVA COSTRUZIONE, è situato al PIANO TERRA, di NUOVA COSTRUZIONE 2022, in contesto condominiale residenziale di 3 piani fuori terra in CLASSE ENERGETICA "A4".
In FASE DI COSTRUZIONE e IN PRONTA CONSEGNA A FINE 2024!
L' immobile è composto da ingresso in ampio e luminoso soggiorno e cucina A VISTA con sbarco su GIARDINO ESCLUSIVO di 51 mq e PORTICO di 20 mq, disimpegno, bagno e camera matrimoniale con secondo affaccio su giardino.
A completare la proprietà, CANTINA.
POSSIBILITA' BOX DOPPIO A PARTE DAL PREZZO DI VENDITA.
Pavimentazione in gress porcellanato 1° scelta di formato variabile con rifiniture su scelta del cliente finale.
Gli infissi saranno realizzati in doppio vetro pvc, porta di ingresso con serratura elettrica e manuale.
Possibilità predisposizione allarme.
ASCENSORI AUTOMATICI a 5 fermate con livellamento automatico al piano ed impianto centralizzato di ventilazione meccanica.
Antenna tv centralizzata con parabola e predispozione impianto satellitare.
Predisposizione impianto telefonico, ingresso carraio con cancello elettrico automatrizzato
Impianto generazione riscaldamento, acqua calda sanitaria e raffrescamento di tipo autonomo con unica pompa di calore.
Riscaldamento con pannelli radianti a pavimento, predisposizione per impianto di raffrescamento con unità split ad aria.
Per ogni appartamento è previsto IMPIANTO FOTOVOLTAICO dedicato in copertura.
L'unità immobiliare sorgerà vicino le scuole, fermata del bus e AUTOSTRADA A4.
E' un ottima soluzione, perfetta sia per una coppia che desidera ampi spazi sia per una famiglia che cerca una soluzione adatta alle proprie esigenze!
SE SIETE INTERESSATI NON ESITATE A CONTATTARE IMMOBILIARE MANCINI AI NUMERI 0262068566 O 3311211947, OPPURE LASCIATE UN MESSAGGIO ALLA MAIL [email protected] E VERRETE RICONTATTATI.
CI TROVATE IN VIA MAZZINI N. 70, TREZZO SULL'ADDA , CENTRO POLIFUNZIONALE "LA PIAZZA".
Main data
| Reference | 53 |
| Ad date | 15/05/2025 |
| Contract | Sale |
| Typology | Apartment |
| Surface | 78 m2 |
| Locals | 2 (1 bedroom, 1 other), 1 bathroom, kitchen on sight |
| Plan | Earth, 3 totals |
| Construction type | Signorile |
| Occupied | Free |
| Garage | Double |
| Furniture | Absent |
Costs
| Price | 146.000 € |
| Price per m2 | 1.872 €/m2 |
Energy efficiency
| Heating | Autonomous |
| Heating System Type | on the floor |
| Heating Power Type | Electric |
| Energy rating | A4 |
Address and map
via mazzini
70, Trezzo sull'Adda
Ad without map,
try asking the advertiser for the position
try asking the advertiser for the position
Mortgage calculation
Selling price:
Advance
20,00
Mortgage
80,00
Rate: -+
Payment: 418 per month
The results are an indicative estimate based on the data entered and do not constitute a financial offer.
Advertiser
Call
CONTACT


