Villa Via Elisabetta, Anzio
€ 279.000
Proponiamo in vendita una splendida villa singola situata nella zona di Lavinio Lido di Enea ad Anzio, rinomata località balneare sulla costa tirrenica del Lazio.
Costruita nel 1967, la villa si trova in uno stato impeccabile e gode di un'ottima esposizione al sole, grazie alla sua posizione leggermente rialzata rispetto al livello della strada.
La villa è completamente arredata con gusto e attenzione ai dettagli ed è completa di un delizioso giardino privato, ideale per trascorrere momenti di relax all'aria aperta.
La villa si sviluppa su due livelli, collegati da una scala interna.
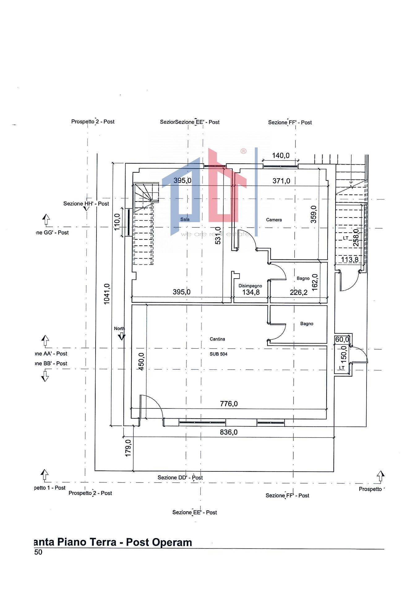
Al piano terra troviamo due saloni di cui uno con angolo cottura completamente attrezzato, 2 ampie camere e 2 servizi finestrati.
Al primo piano troviamo un grande e luminoso salone con cucina a vista arredata, una camera matrimoniale, una cameretta, un ampio balcone perimetrale ed un servizio finestrato.
Completa la proprietà un ampio giardino privato curatissimo e un posto auto scoperto.
La superficie totale della villa è di 160 metri quadrati, di cui 145 calpestabili, distribuiti in 7 locali, in cui è possibile godere di spazi ampi e ben organizzati.
La villa è libera al rogito, garantendo così una compravendita rapida e senza vincoli.
Possibilità di acquistare i mobili a parte
La sua posizione strategica, vicina al mare e dai principali servizi, la rende ideale sia come casa vacanze che come residenza principale per chi desidera vivere in un ambiente tranquillo e lontano dal caos cittadino. In sintesi, si tratta di un'opportunità unica per chi cerca una villa di prestigio in una delle località più ambite della costa laziale, con ampi spazi, finiture di alta qualità e una posizione invidiabile.
Per avere ulteriori informazioni e per fissare un appuntamento per una visita potete contattare il nostro ufficio
Costruita nel 1967, la villa si trova in uno stato impeccabile e gode di un'ottima esposizione al sole, grazie alla sua posizione leggermente rialzata rispetto al livello della strada.
La villa è completamente arredata con gusto e attenzione ai dettagli ed è completa di un delizioso giardino privato, ideale per trascorrere momenti di relax all'aria aperta.
La villa si sviluppa su due livelli, collegati da una scala interna.
Al piano terra troviamo due saloni di cui uno con angolo cottura completamente attrezzato, 2 ampie camere e 2 servizi finestrati.
Al primo piano troviamo un grande e luminoso salone con cucina a vista arredata, una camera matrimoniale, una cameretta, un ampio balcone perimetrale ed un servizio finestrato.
Completa la proprietà un ampio giardino privato curatissimo e un posto auto scoperto.
La superficie totale della villa è di 160 metri quadrati, di cui 145 calpestabili, distribuiti in 7 locali, in cui è possibile godere di spazi ampi e ben organizzati.
La villa è libera al rogito, garantendo così una compravendita rapida e senza vincoli.
Possibilità di acquistare i mobili a parte
La sua posizione strategica, vicina al mare e dai principali servizi, la rende ideale sia come casa vacanze che come residenza principale per chi desidera vivere in un ambiente tranquillo e lontano dal caos cittadino. In sintesi, si tratta di un'opportunità unica per chi cerca una villa di prestigio in una delle località più ambite della costa laziale, con ampi spazi, finiture di alta qualità e una posizione invidiabile.
Per avere ulteriori informazioni e per fissare un appuntamento per una visita potete contattare il nostro ufficio
Main data
| Reference | 37/CL11-06 |
| Ad date | 15/05/2025 |
| Contract | Sale |
| Typology | Villa |
| Surface | 160 m2 |
| Locals | more than 5 (4 bedrooms, 4 other), 3 bathrooms, kitchen on sight |
| Plan | On several levels, 2 totals |
| Construction type | Signorile |
| Occupied | Free |
| Garage | Absent |
| Number of parking spaces | 1 |
| Furniture | Complete |
Costs
| Price | 279.000 € |
| Price per m2 | 1.744 €/m2 |
Energy efficiency
| Status | Excellent |
| Heating | Autonomous |
| Heating Power Type | Gpl |
| Energy rating | D |
| Energy Performance Index (IPE) | 63 kWh/m2 year |
Floor plans
Video
Address and map
Via Elisabetta, Anzio
Ad without map,
try asking the advertiser for the position
try asking the advertiser for the position
Mortgage calculation
Selling price:
Advance
20,00
Mortgage
80,00
Rate: -+
Payment: 798 per month
The results are an indicative estimate based on the data entered and do not constitute a financial offer.
Advertiser

Casa League S.R.L.
Largo Genova 7/8, Ardea
Show Phone
Call
CONTACT

