Villa Sipicciano - Loc. Arciano, Graffignano
€ 440.000
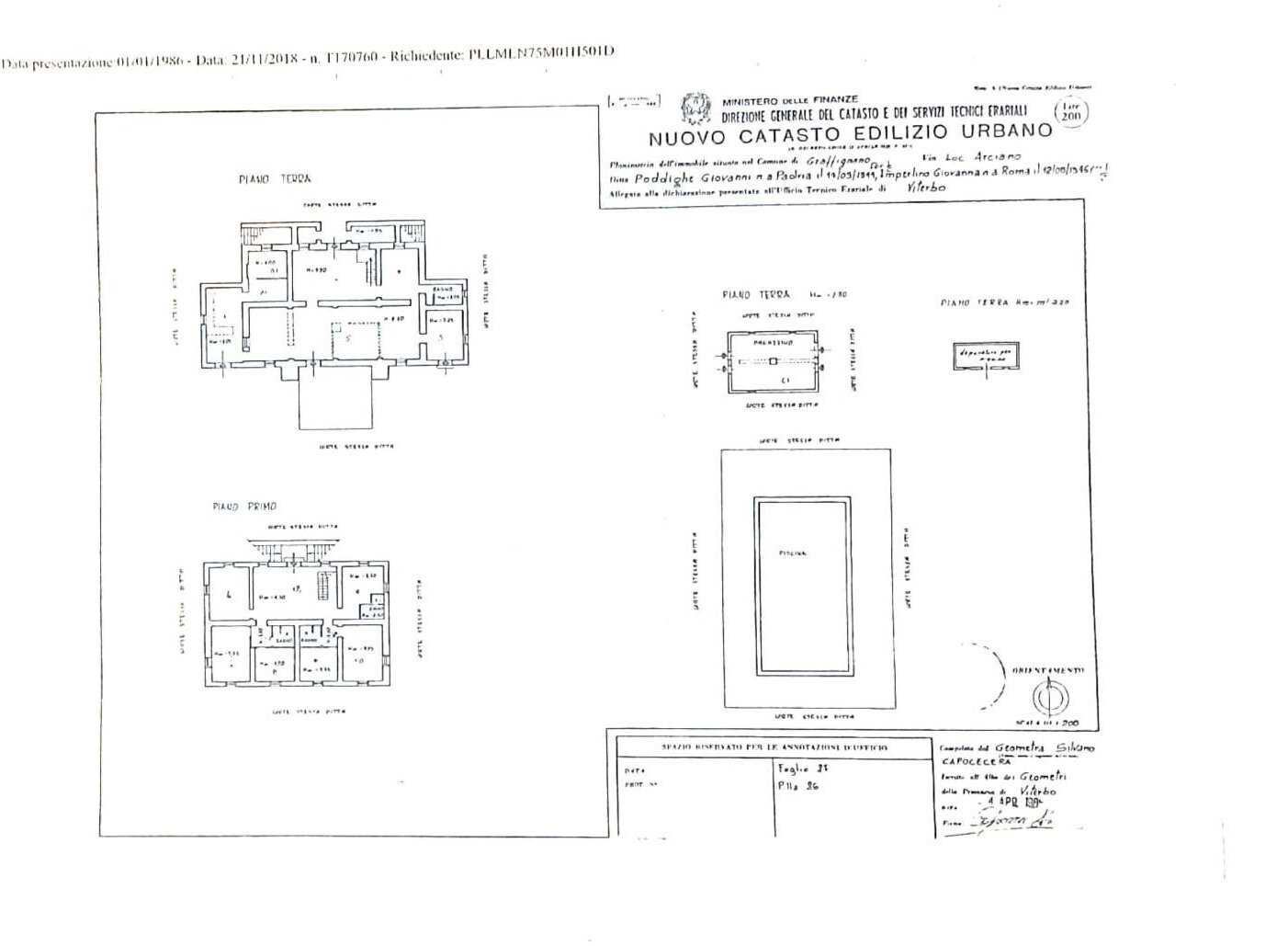
Antico casale in pietra con piscina! Per chi ama la tranquillità, ma non vuole stare isolato; per chi ama la storia, la pietra, il cotto e il sapore storico della struttura! Ci troviamo nel Comune di Graffignano in provincia di Viterbo, a 25 Km da Orvieto, a pochi chilometri dall'uscita autostradale A1 casello di Attigliano e proponiamo in vendita un antico casale in pietra di 500 mq. circa con portico e terreno della superficie di mq. 4.000 circa, con piscina e due annessi elevati su un solo piano. Questa proprietà risale al 1800 ed è stata completamente e finemente ristrutturata nel 1990. Grazie alla sua posizione dominante tra le colline garantisce totale privacy e relax. La villa è distribuita su due livelli: il PIANO TERRA è composto da un ingresso, soggiorno con sala biliardo e saletta giochi da tavolo, ampia zona pranzo con camino, cucina, studio, disimpegno e bagno, dispensa, con ampio portico, sotto scala all'esterno. Il PIANO PRIMO, raggiungibile sia da una scala interna che da una esterna, è composto da un grande disimpegno impreziosito da un camino in muratura, una camera padronale con bagno en suite e cinque camere con due bagni. Parco di 4.000 mq. circa con piscina nuova, un annesso lato piscina e un altro annesso/rudere da ristrutturare. Il casale è dotato di riscaldamento autonomo (GPL) con radiatori in alluminio, citofoni, impianto di allarme e fossa biologica. Le finestre sono in legno a doppio vetro con grate esterne di protezione, le porte interne sono in legno. I pavimenti sono in gres porcellanato effetto cotto anticato e in legno parquet nelle camere. I solai sono con travi in legno a vista. La villa dispone di ampio parco interamente recintato pianeggiante con ingresso tramite cancello, una bellissima piscina e parcheggio all'interno della recinzione. Sono inoltre presenti alcune piante da frutto e ad alto fusto. Con la possibilità di permuta immobiliare, questa proprietà rappresenta un'opportunità unica per chi cerca una residenza esclusiva immersa nella natura.
Main data
| Reference | 36621001-82 |
| Ad date | 15/05/2025 |
| Contract | Sale |
| Typology | Villa |
| Surface | 511 m2 |
| Locals | more than 5 (7 bedrooms, 11 other), 4 bathrooms |
| Plan | On several levels, 2 totals |
| Occupied | Free |
| Garage | Absent |
| Furniture | Complete |
Costs
| Price | 440.000 € |
| Price per m2 | 861 €/m2 |
Energy efficiency
| Status | Partially restored |
| Heating | Autonomous |
| Heating Power Type | Gpl |
| Energy rating | Property exempt from energy certification |
Floor plans
Address and map
Sipicciano - Loc. Arciano, Graffignano
Ad without map,
try asking the advertiser for the position
try asking the advertiser for the position
Mortgage calculation
Selling price:
Advance
20,00
Mortgage
80,00
Rate: -+
Payment: 1.258 per month
The results are an indicative estimate based on the data entered and do not constitute a financial offer.
Advertiser
Call
CONTACT


