Apartment via ripe, Terricciola
€ 125.000
APPARTAMENTO TUTTO RISTRUTTURATO E BEN RIFINITO
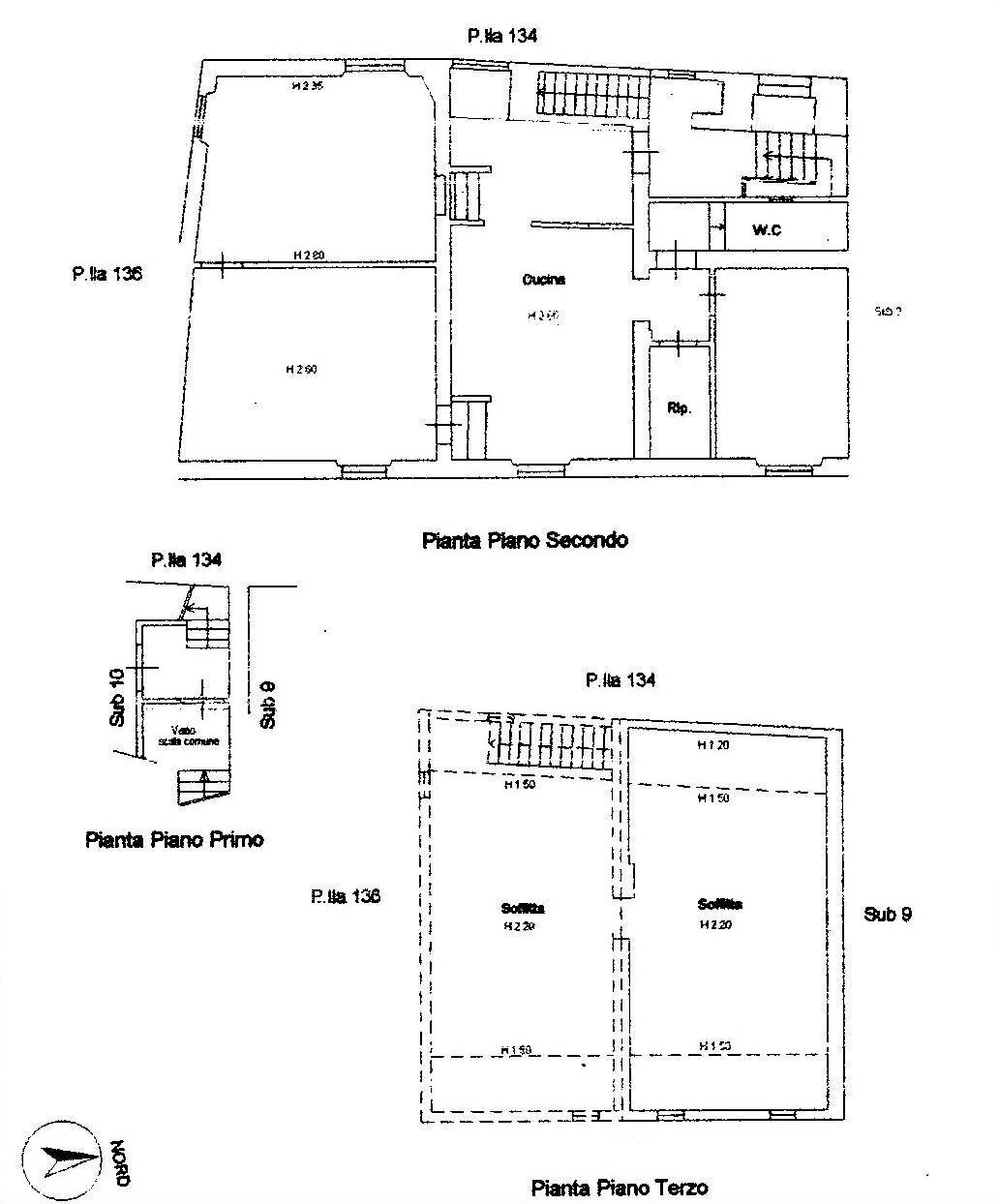
TERRICCIOLA-BORGO, proponiamo appartamento parzialmente arredato, posto al 2°piano ed ultimo, COMPLETAMENTE RISTRUTTURATO, in antico fabbricato molto caratteristico. L'immobile è composto da: ingresso, cucina abitabile, disimpegno, bagno finestrato con box doccia, camera singola, ripostiglio, dei gradini ci conducano alla sala e alla camera matrimoniale. L'appartamento propone anche al piano sovrastante un'ampia soffitta di circa Mq.50 anch'essa ristrutturata, attualmente adibita a lavanderia e accessoriata da BBQ in muratura. Più altra stanza pluriuso (attualmente 3° camera)
Conclude la proprietà un garage di circa Mq.17, poco distaccato dall'abitazione. L'appartamento in oltre è termoautonomo ed accessoriato da addolcitore, autoclave, condizionatori caldo/freddo, stufa a pellet, finestre in legno con doppio vetro, zanzariere, impianto idrico ed idraulico nuovi e caldaia nuova. l'immobile viene venduto anche completamente arredato ad euro 129.000. DA VEDERE!
Per maggiori informazioni contattare l'agenzia.
TERRICCIOLA-BORGO, proponiamo appartamento parzialmente arredato, posto al 2°piano ed ultimo, COMPLETAMENTE RISTRUTTURATO, in antico fabbricato molto caratteristico. L'immobile è composto da: ingresso, cucina abitabile, disimpegno, bagno finestrato con box doccia, camera singola, ripostiglio, dei gradini ci conducano alla sala e alla camera matrimoniale. L'appartamento propone anche al piano sovrastante un'ampia soffitta di circa Mq.50 anch'essa ristrutturata, attualmente adibita a lavanderia e accessoriata da BBQ in muratura. Più altra stanza pluriuso (attualmente 3° camera)
Conclude la proprietà un garage di circa Mq.17, poco distaccato dall'abitazione. L'appartamento in oltre è termoautonomo ed accessoriato da addolcitore, autoclave, condizionatori caldo/freddo, stufa a pellet, finestre in legno con doppio vetro, zanzariere, impianto idrico ed idraulico nuovi e caldaia nuova. l'immobile viene venduto anche completamente arredato ad euro 129.000. DA VEDERE!
Per maggiori informazioni contattare l'agenzia.
Main data
| Reference | 598aR |
| Ad date | 15/05/2025 |
| Contract | Sale |
| Typology | Apartment |
| Surface | 129 m2 |
| Locals | more than 5 (2 bedrooms, 4 other), 2 bathrooms, kitchen habitable |
| Plan | 2 from 2 totals |
| Garage | Single |
| Furniture | Partial |
Costs
| Price | 125.000 € |
| Price per m2 | 969 €/m2 |
Energy efficiency
| Status | Partially restored |
| Heating | Autonomous |
| Energy rating | F |
| Energy Performance Index (IPE) | - |
Floor plans
Address and map
via ripe, Terricciola
Ad without map,
try asking the advertiser for the position
try asking the advertiser for the position
Mortgage calculation
Selling price:
Advance
20,00
Mortgage
80,00
Rate: -+
Payment: 357 per month
The results are an indicative estimate based on the data entered and do not constitute a financial offer.
Advertiser
Call
CONTACT


