Three-room apartment via gere 13, Iseo
€ 450.000
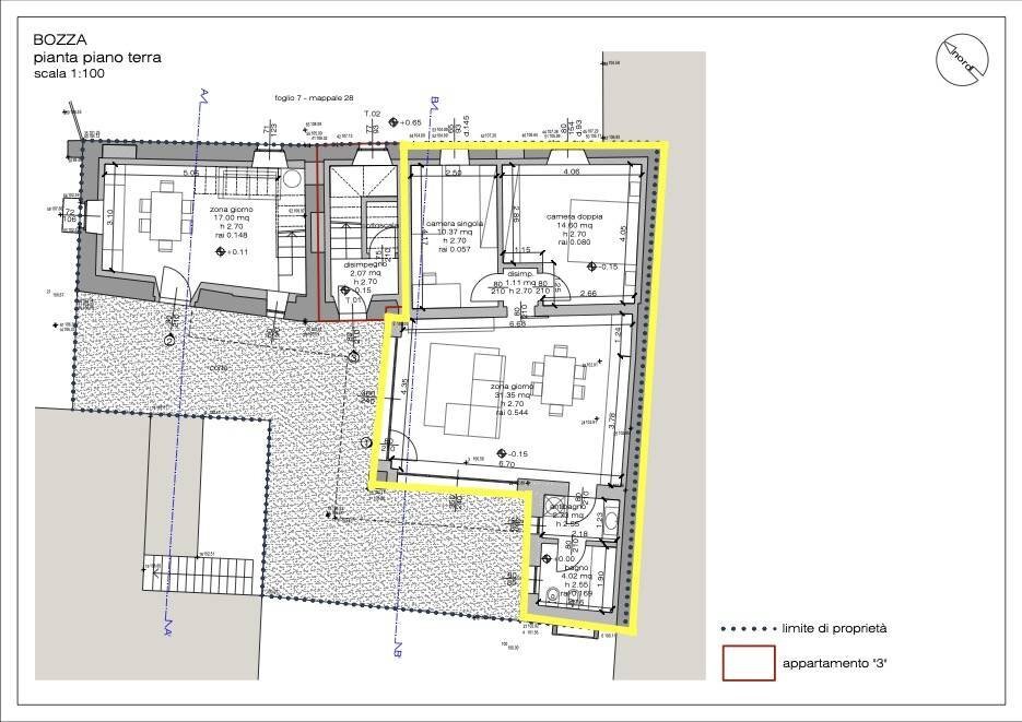
Clusane: Cosa sapere sull'immobile: Trilocale su due livelli - Trilocale piano terra - bilocale su due livelli - no spese condominiali - possibilità d'acquisto in blocco - riscaldamento autonomo - balcone - ampie metrature - tetto nuovo - ottimo investimento - acquisto solo rustico - possibilità di personalizzazione - posizione comoda a tutti i servizi - pochi passi dal lungolago - centro paese Descrizione e Particolarità: Trilocale piano primo: Questo appartamento in vendita si trova nella zona di Clusane, a Iseo, e gode di una posizione tranquilla e riservata. Attualmente in fase di costruzione, e si svilupperà su due livelli. Con una superficie totale di 118 m²,questo appartamento offre spazio sufficiente per una famiglia o per una coppia che desidera avere un'ampia abitazione. Al piano primo il trilocale si compone di una ampia zona giorno (caratterizzata da una doppia altezza), due camere, lavanderia, bagno e balcone perimetrale. Al piano secondo troviamo uno spazioso sottotetto che potrebbe ospitare la terza camera di servizio e un vano tecnico Gli interni, in ottimo stato di conservazione, saranno caratterizzati da un design moderno e luminoso.. Il riscaldamento è autonomo, garantendo un maggior controllo sulla temperatura della casa e un risparmio energetico. Inoltre, grazie alla sua posizione in costruzione, avrai la possibilità di scegliere alcuni dettagli e finiture dell'appartamento, rendendolo perfettamente adatto alle tue esigenze e gusti. Un'opportunità unica per avere una casa su misura in una delle zone più belle di Iseo. DESCRIZIONE e PARTICOLARITÀ': Trilocale piano terra: L'appartamento in vendita è situato nella zona di Clusane, nel comune di Iseo. La proprietà è attualmente viene venduta a rustico, nonostante ciò, se richiesto , è possibile di finirli a proprio gusto. Si trova al piano terra di un edificio di nuova costruzione e occupa una superficie complessiva di 85 metri quadrati. L'unità immobiliare è composta da tre locali, tra cui due camere da letto e un bagno. Lo stato di conservazione è ottimo, poiché l'appartamento è ancora in fase di realizzazione e sarà consegnato completamente a rustico. L'immobile è dotato di riscaldamento autonomo. Descrizione e Particolarità: Bilocale su due livelli: L'appartamento in vendita si trova nella zona di Clusane, una delle più ambite del comune di Iseo. Attualmente in fase di costruzione. Si sviluppa su due livelli, offrendo una metratura totale di 45 mq. L'ingresso conduce alla zona giorno composta da un soggiorno con cucina a vista, ampio e luminoso. La camera da letto matrimoniale e il bagno, si trovano al piano superiore, garantendo un'ottima privacy. Lo stato di conservazione dell'appartamento è ottimo, grazie all'utilizzo di materiali di alta qualità e alle tecnologie costruttive più moderne. Il riscaldamento è autonomo, garantendo un grande risparmio energetico e un maggiore comfort abitativo. Infine, la presenza di un balcone permette di godere di una piacevole vista sul verde circostante e di trascorrere piacevoli momenti all'aperto. Un'ottima opportunità per chi desidera acquistare una soluzione abitativa moderna e di prestigio, in una delle zone più richieste e apprezzate di Iseo. NB: Uno dei nostri annunci ha colto la tua attenzione o stai cercando casa in Vendita/Affitto? Scrivici Nome, Cognome ed esigenze al numero Whatsapp 351.71.73.181 o se preferisci, un email all'indirizzo [email protected] Sarà nostra premura metterci in contatto con te quanto prima. Inoltre, avvisiamo la gentile clientela che, se non volete perdere le nostre nuove acquisizioni in Vendita e/o in Affitto, invitiamo a salvare il numero sopra riportato al fine di visionare tutte le nostre nuove proposte. Ci trovi anche su Instagram e Facebook, seguici!
Main data
| Reference | 782 |
| Ad date | 15/05/2025 |
| Contract | Sale |
| Typology | Apartment |
| Surface | 118 m2 |
| Locals | 3 (2 bedrooms, 1 other), 1 bathroom |
| Plan | On several levels |
| Construction type | Signorile |
| Occupied | Free |
| Furniture | Absent |
Costs
| Price | 450.000 € |
| Price per m2 | 3.814 €/m2 |
Energy efficiency
| Heating | Autonomous |
| Heating Power Type | Other |
| Energy rating | Property exempt from energy certification |
Address and map
via gere
13, Iseo
Ad without map,
try asking the advertiser for the position
try asking the advertiser for the position
Mortgage calculation
Selling price:
Advance
20,00
Mortgage
80,00
Rate: -+
Payment: 1.287 per month
The results are an indicative estimate based on the data entered and do not constitute a financial offer.
Advertiser

BTS Immobiliare
Via Vittorio Veneto, 4, Sarnico
Show Mobile
Call
CONTACT

