Shop Via Luigi Ornato, Milano
Private negotiation
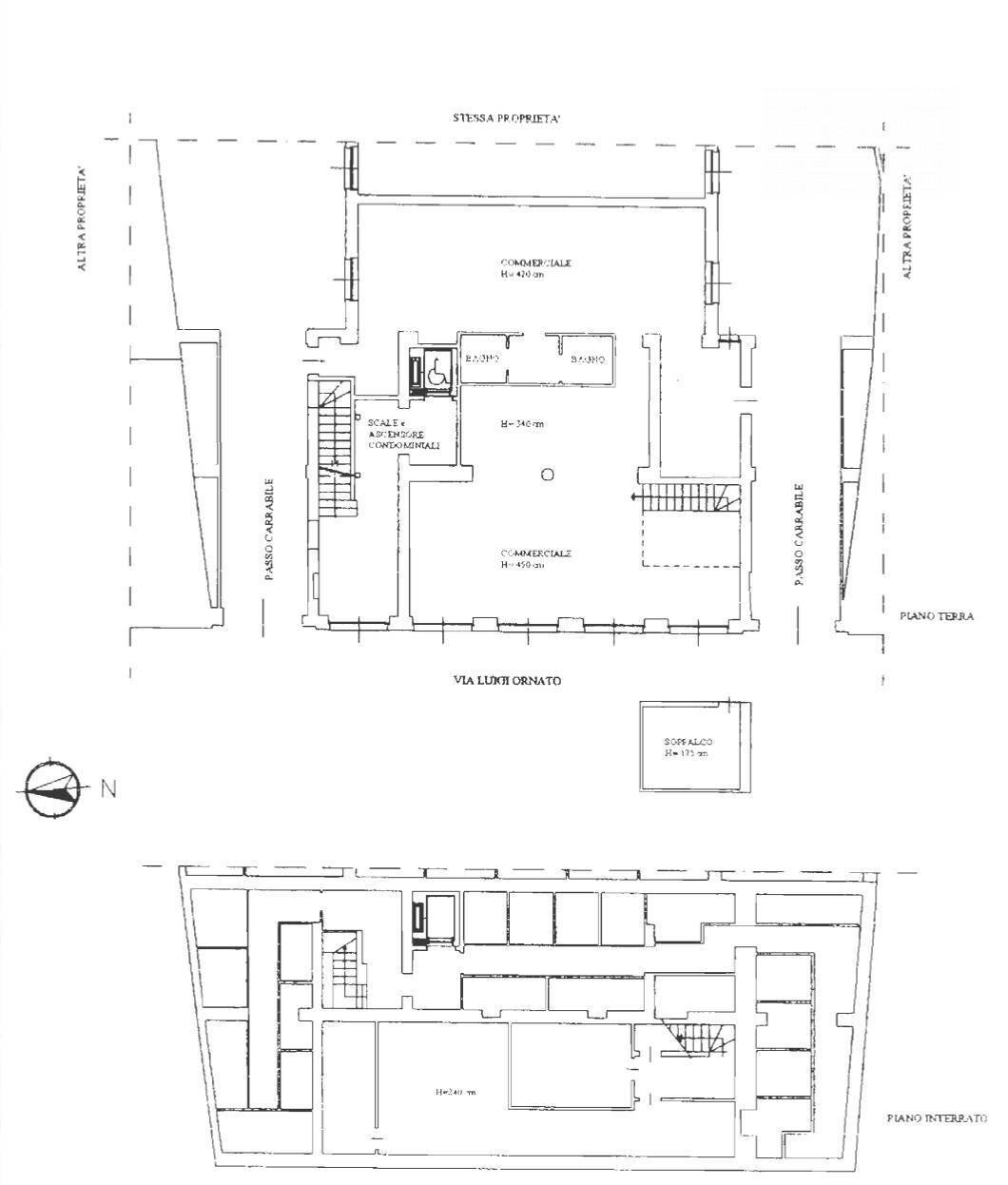
L'agenzia immobiliare Luigi Ottolini propone in vendita a Milano un negozio al piano terra con 4 ampie vetrine fronte strada, un autentico punto di forza che assicura massima visibilità in una delle aree più strategiche della città. Questo immobile rappresenta un'opportunità ideale per chi cerca un investimento sicuro e altamente redditizio. Caratteristiche principali: - Piano Terra: L'immobile si apre su un accogliente ingresso che conduce a un ampio spazio commerciale, completato da un ripostiglio e da un bagno con antibagno. Le 4 vetrine fronte strada garantiscono una luminosità naturale costante e un'elevata attrattiva per i passanti. - Piano Interrato: Collegato al piano terra tramite una scala interna, dispone di due spaziosi locali deposito, un disimpegno e un locale tecnico, ideali per la gestione logistica e operativa dell'attività. - Soppalco: Locale tecnico accessibile tramite botola, utile per esigenze di archiviazione o altre funzioni operative. La proprietà include due posti auto scoperti al piano terra, situati in un edificio a destinazione mista di tre piani fuori terra e un piano interrato. Opportunità di investimento: L'immobile è attualmente locato e garantisce una rendita annua pari a circa l' 8% (calcolata sulla cifra richiesta), offrendo un'ottima opportunità per chi desidera un investimento con un ritorno immediato e costante, quasi introvabile nel panorama degli investimenti della Città. Zona di interesse: Il negozio è situato in una zona dinamica e in crescita di Milano, caratterizzata da un mix equilibrato di attività commerciali, residenze e uffici. La vicinanza a mezzi pubblici, servizi essenziali e importanti arterie stradali rende l'area particolarmente appetibile. La presenza di nuove iniziative urbane e progetti di riqualificazione nella zona contribuisce a incrementare il valore immobiliare, rendendo questo investimento ancora più promettente a medio e lungo termine. Questa soluzione rappresenta un'occasione unica sia per chi desidera avviare o espandere la propria attività in una location di prestigio, sia per chi è alla ricerca di un investimento immobiliare sicuro, con ottime prospettive di crescita. _________________________________ Luigi Ottolini è l'agenzia di riferimento per il Remarketing immobiliare di banche e fondi, da 18 anni siamo sinonimo di professionalità e sicurezza per i tuoi investimenti. Contattaci subito per maggiori informazioni o per fissare un appuntamento di visita. Seguici sui nostri canali social per restare aggiornato su tutte le nostre proposte immobiliari.
Main data
| Reference | MI-Ornato |
| Ad date | 15/05/2025 |
| Contract | Sale |
| Typology | Shop |
| Surface | 285 m2 |
| Locals | 5 (5 other), 2 bathrooms |
| Plan | On several levels, 3 totals |
| Occupied | Owner Occupied |
| Number of parking spaces | 2 |
| Furniture | Absent |
Costs
| Price | Private negotiation |
Energy efficiency
| Status | Excellent |
| Heating | Centralized |
| Heating System Type | by air |
| Heating Power Type | Other |
| Energy rating | E |
| Energy Performance Index (IPE) | 170 kWh/m2 year |
Floor plans
Address and map
Via Luigi Ornato, Milano
Ad without map,
try asking the advertiser for the position
try asking the advertiser for the position
Advertiser
Call
CONTACT


