Villa Via Tiberina, Riano
€ 990.000
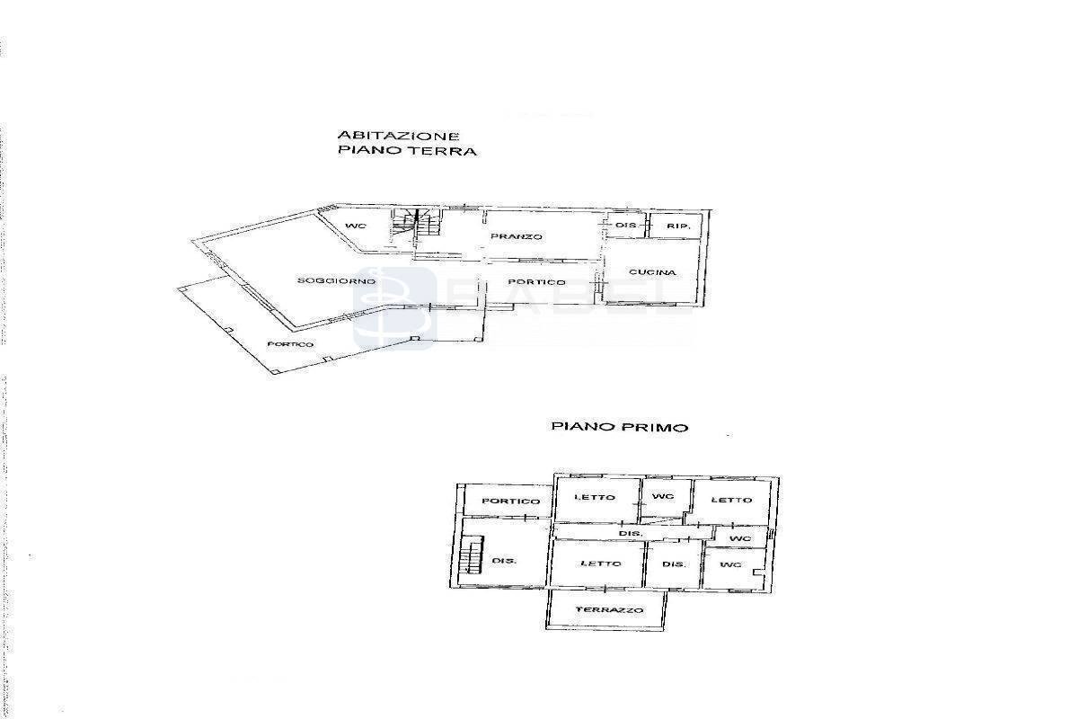
Splendida Villa con Piscina a Colle Romano Proponiamo una prestigiosa Villa all'interno del comprensorio "Colle Romano" a circa 10 min dal GRA e 25 min dal centro di Roma. La proprietà è circondata da circa 3500mq di giardino molto curato con splendida piscina in posizione soleggiata ed e composta da un corpo centrale di circa 260 mq su due livelli completamente fuori terra e un appartamento di circa 110 mq (evtl. anche comunicante). La villa vanta forse una delle più belle e privilegiate posizioni del comprensorio ed è stata completata nella sua costruzione negli anni '90 con materiali di grande pregio e qualità. La proprietà è stata sempre perfettamente mantenuta. Alla villa si accede da due ingressi, il primo pedonale al piano superiore e il secondo carrabile da un viale che porta al piano inferiore e al Garage con 4 posti auto coperti. Dall'ingresso inferiore si entra nella bellissima zona di rappresentanza con una sala biliardo triplo salone con camino e ampie vetrate con vista sul giardino e piscina circondato da ampi portici, una luminosa sala pranzo con terrazzo porticato che comunica anche con la cucina abitabile con camino, realizzato in muratura. Allo stesso piano troviamo un disimpegno, guardaroba, bagno con finestra, lavanderia, ripostigli e bagno di servizio. Sempre dal piano inferiore si accede all'appartamento indipendente composto da salone con cucina a vista in muratura (collegata alla sala biliardo della Villa principale), camera da letto corridoio e bagno. Dal disimpegno una bellissima scala porta al piano superiore dove si sviluppa la zona notte con due camere entrambi con bagno ensuite e la camera padronale con ampio bagno e guardaroba e terrazza panoramica. Grazie al fatto che il comprensorio Colle Romano è dotato di portineria h24, vigilanza armata notturna, video sorveglianza garantisce una sicurezza molto elevata agli abitanti. Inoltre vanta un centro sportivo con grande piscina, campi da tennis e da calcio. Una oasi di tranquillità a poca distanza dalla città e quindi una splendida soluzione per chi cerca la completa privacy, inserito in una natura davvero spettacolare ma con i servizi e le comodità vicinissimo a Roma. *Le presenti informazioni e planimetrie sono meramente indicative e non costituiscono elementi contrattuali.*
Main data
| Reference | Rif: 0376 |
| Ad date | 15/05/2025 |
| Contract | Sale |
| Typology | Villa |
| Surface | 370 m2 |
| Locals | more than 5 (5 bedrooms, 9 other), 5 bathrooms, kitchen habitable |
| Plan | On several levels, 2 totals |
| Occupied | Free |
| Garage | Triple |
| Number of parking spaces | 4 |
| Furniture | Partial |
Costs
| Price | 990.000 € |
| Price per m2 | 2.676 €/m2 |
Energy efficiency
| Status | Excellent |
| Heating | Autonomous |
| Heating Power Type | Gpl |
| Energy rating | F |
| Energy Performance Index (IPE) | - |
Floor plans
Address and map
Via Tiberina, Riano
Ad without map,
try asking the advertiser for the position
try asking the advertiser for the position
Mortgage calculation
Selling price:
Advance
20,00
Mortgage
80,00
Rate: -+
Payment: 2.831 per month
The results are an indicative estimate based on the data entered and do not constitute a financial offer.
Advertiser
Call
CONTACT


