Loft Via Xx Settembre 63, Noto
€ 250.000
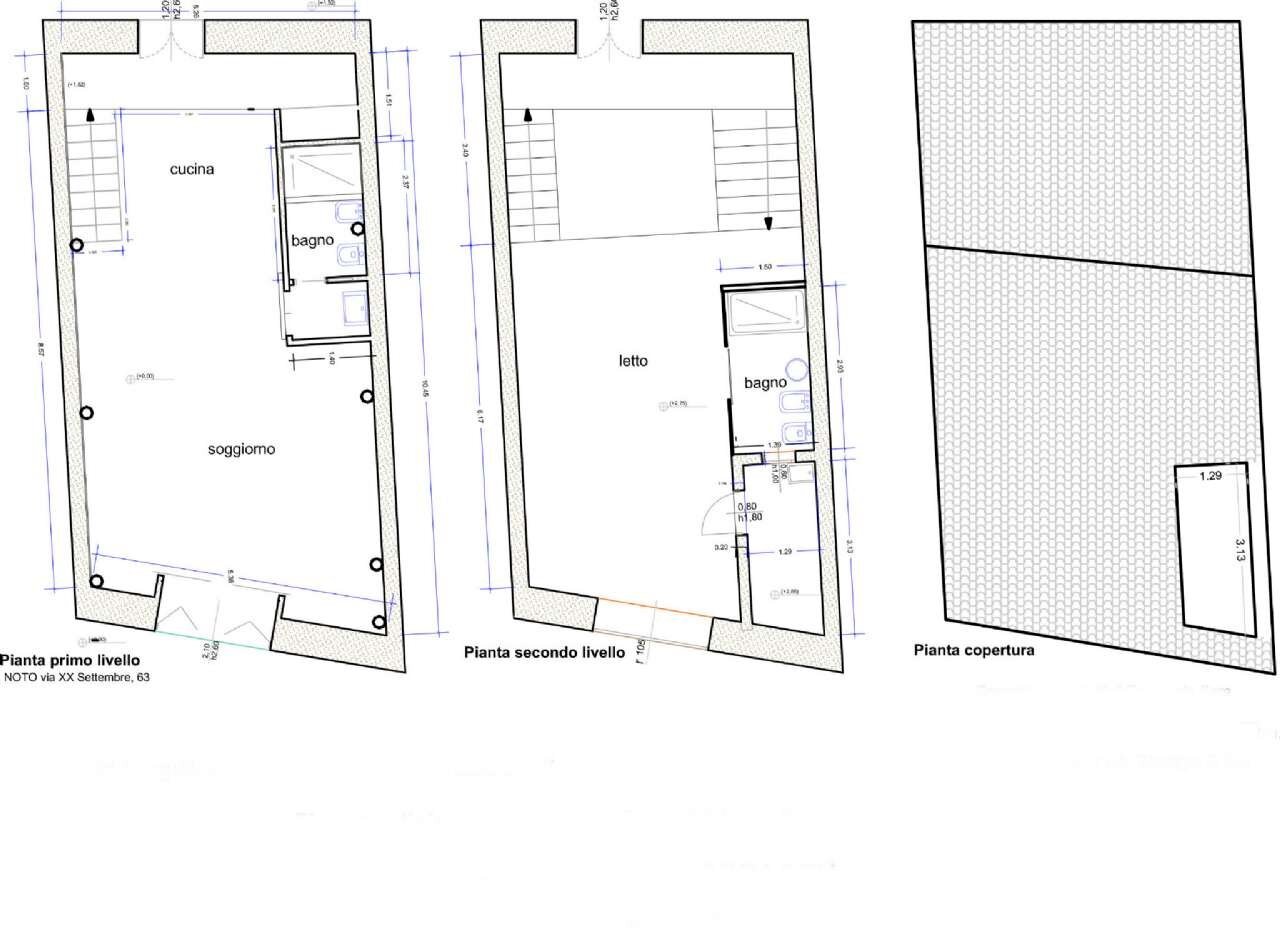
Loft al centro storico di Noto nella via XX Settembre. Interessante proposta di vendita della Oikos Real Estate DESCRIZIONE Loft al centro storico, dal raffinato stile contemporaneo, è una proposta della Oikos Real Estate. Nasce dopo un recente e soprattutto attento lavoro di ristrutturazione sapientemente ben gestito. Inizialmente era un unico grande ambiente adibito ad attività artigianale, ormai in disuso. Il grande gioco è stato quello di mantenere lidea dellopen space, rendendo gli ambienti comunicanti tra loro. Si tratta infatti di unabitazione quasi completamente priva di pareti divisorie, dotata di buona luminosità. Il suo fascino sta nel richiamo alle case-studio degli artisti di un tempo, ricavate nei vecchi magazzini delle grandi metropoli. INTERNO Loft al centro storico si sviluppa su unarea di 103 metri quadrati, distribuita su due livelli. Al piano terra troviamo una zona living con angolo cottura. Una scala molto originale, di alto design, conduce al soppalco che accoglie una camera da letto con bagno e un grazioso balconcino dove sostare in relax in modo riservato. Loft al centro storico ha inoltre un elemento molto interessante che è quello di coniugare la funzionalità con la bellezza estetica spesso difficile che entrambe le condizioni possano coesistere. Praticità e cura nei dettagli contraddistinguono infatti il suo charme. Nella vendita sono compresi gli arredi. USI E POTENZIALITA Loft al centro storico, oltre ad un uso privato, può essere una soluzione ideale anche per un investimento immobiliare ad alto potenziale remunerativo nella proposta di una casa vacanza dove poter trascorrere indimenticabili giornate tra le bellezze naturali e le ricchezze culturali da ammirare nella magnificenza delle chiese e antichi palazzi. NEI DINTORNI Il Loft al centro storico dista circa 6 km dalle meravigliose spiagge dorate di Calamosche e Vendicari. Qualche km più avanti e si raggiunge Marzamemi, il bellissimo borgo marinaro con lantica tonnara, ricco di fascino e colori mediterranei.
Main data
| Reference | 69847 |
| Ad date | 15/05/2025 |
| Contract | Sale |
| Typology | Loft |
| Surface | 103 m2 |
| Locals | 3 (2 bedrooms, 1 other), 2 bathrooms, kitchen on sight |
| Plan | Entire building, 2 totals |
| Construction type | Average |
| Garage | Absent |
| Furniture | Partial |
Costs
| Price | 250.000 € |
| Price per m2 | 2.427 €/m2 |
Energy efficiency
| Status | Partially restored |
| Heating | Autonomous |
| Heating System Type | by air |
| Heating Power Type | Electric |
| Energy rating | Property exempt from energy certification |
Floor plans
Video
Address and map
Via Xx Settembre
63, Noto
Ad without map,
try asking the advertiser for the position
try asking the advertiser for the position
Mortgage calculation
Selling price:
Advance
20,00
Mortgage
80,00
Rate: -+
Payment: 715 per month
The results are an indicative estimate based on the data entered and do not constitute a financial offer.
Advertiser

Oikos S.r.l.s. Unipersonale
Via Napoli, Noto
Show Phone
Call
CONTACT

