

Building land Via Brescia snc, Gottolengo
€ 250.000
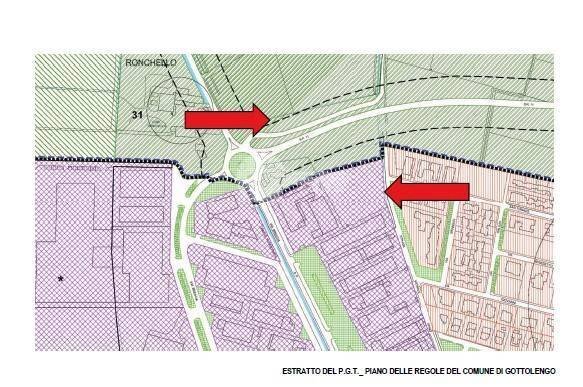
TERRENO INDUSTRIALE-ARTIGIANALE ED AGRICOLO. A nord rispetto al centro storico, proponiamo ampio terreno pianeggiante inedificato suddiviso in mq 5'400 con destinazione industriale-artigianale e mq 9720 con destinazione agricola; l'appezzamento si trova al confine tra la zona urbana e quella extraurbana, in un ambito a destinazione prettamente agricolo-artigianale; al momento sono classificati secondo lo strumento urbanistico approvato dal comune aree agricole di tutela dell'abitato, parzialmente ricadenti in fascia di rispetto stradale e in parte in ambiti per attività produttive industriali-artigianali, aree agricole di tutela dell'abitato; la porzione nord ricade in fascia di rispetto stradale
Main data
| Reference | 415062020-795 |
| Ad date | 15/05/2025 |
| Contract | Sale |
| Typology | Building land |
| Surface | 15120 m2 |
| Occupied | Free |
Costs
| Price | 250.000 € |
| Price per m2 | 17 €/m2 |
Energy efficiency
| Heating Power Type | Other |
| Energy rating | Property exempt from energy certification |
Address and map
Via Brescia
snc, Gottolengo
Ad without map,
try asking the advertiser for the position
try asking the advertiser for the position
Mortgage calculation
Selling price:
Advance
20,00
Mortgage
80,00
Rate: -+
Payment: 715 per month
The results are an indicative estimate based on the data entered and do not constitute a financial offer.
Advertiser
Call
CONTACT
