Warehouse via kennedy 3, Cassano Magnago
€ 1.600 per month
CASSANO MAGNAGO VIA KENNEDY N. 1
In zona strategica, servita con comodi collegamenti alle principali arterie stradali e autostradali, proponiamo in affitto una porzione di capannone di circa 650 mq.
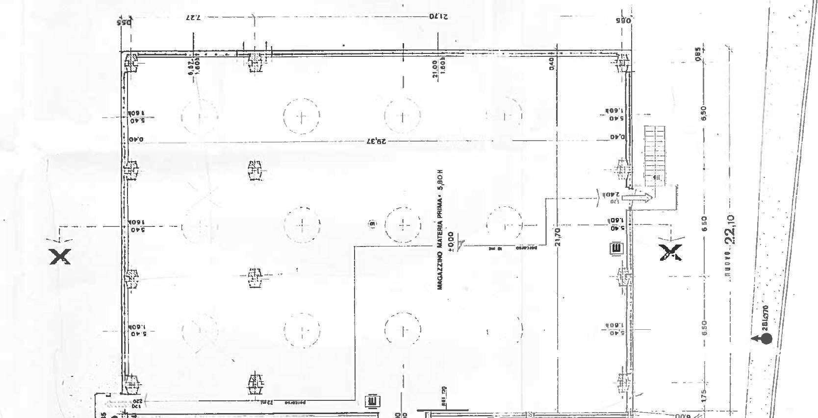
Questo luminoso e interessante spazio si trova al piano rialzato di una struttura ben conservata e manutenuta, limpermeabilizzazione del manto di copertura è stata fatta nel 2023. Composto da un unico ambiente, con altezza interna utile di mt 5,80, adeguata per molteplici usi produttivi o logistici, completamente libero e sfruttabile è ideale come deposito, piccolo laboratorio e logistica, grazie allampia area di manovra accessibile che permette un facile carico/scarico dei mezzi, grazie alla posizione fronte strada, allo spazio da adibire a parcheggio e allaspetto curato.
In zona strategica, servita con comodi collegamenti alle principali arterie stradali e autostradali, proponiamo in affitto una porzione di capannone di circa 650 mq.
Questo luminoso e interessante spazio si trova al piano rialzato di una struttura ben conservata e manutenuta, limpermeabilizzazione del manto di copertura è stata fatta nel 2023. Composto da un unico ambiente, con altezza interna utile di mt 5,80, adeguata per molteplici usi produttivi o logistici, completamente libero e sfruttabile è ideale come deposito, piccolo laboratorio e logistica, grazie allampia area di manovra accessibile che permette un facile carico/scarico dei mezzi, grazie alla posizione fronte strada, allo spazio da adibire a parcheggio e allaspetto curato.
Main data
| Reference | U13219 |
| Ad date | 15/05/2025 |
| Contract | Rent |
| Typology | Warehouse |
| Surface | 650 m2 |
| Occupied | Free |
Costs
| Price | 1.600 € per month |
Energy efficiency
| Heating Power Type | Other |
| Energy rating | Property exempt from energy certification |
Floor plans
Address and map
via kennedy
3, Cassano Magnago
Ad without map,
try asking the advertiser for the position
try asking the advertiser for the position
Advertiser
Call
CONTACT


