Two-room apartment viale aurora 4, San Michele al Tagliamento
€ 128.000
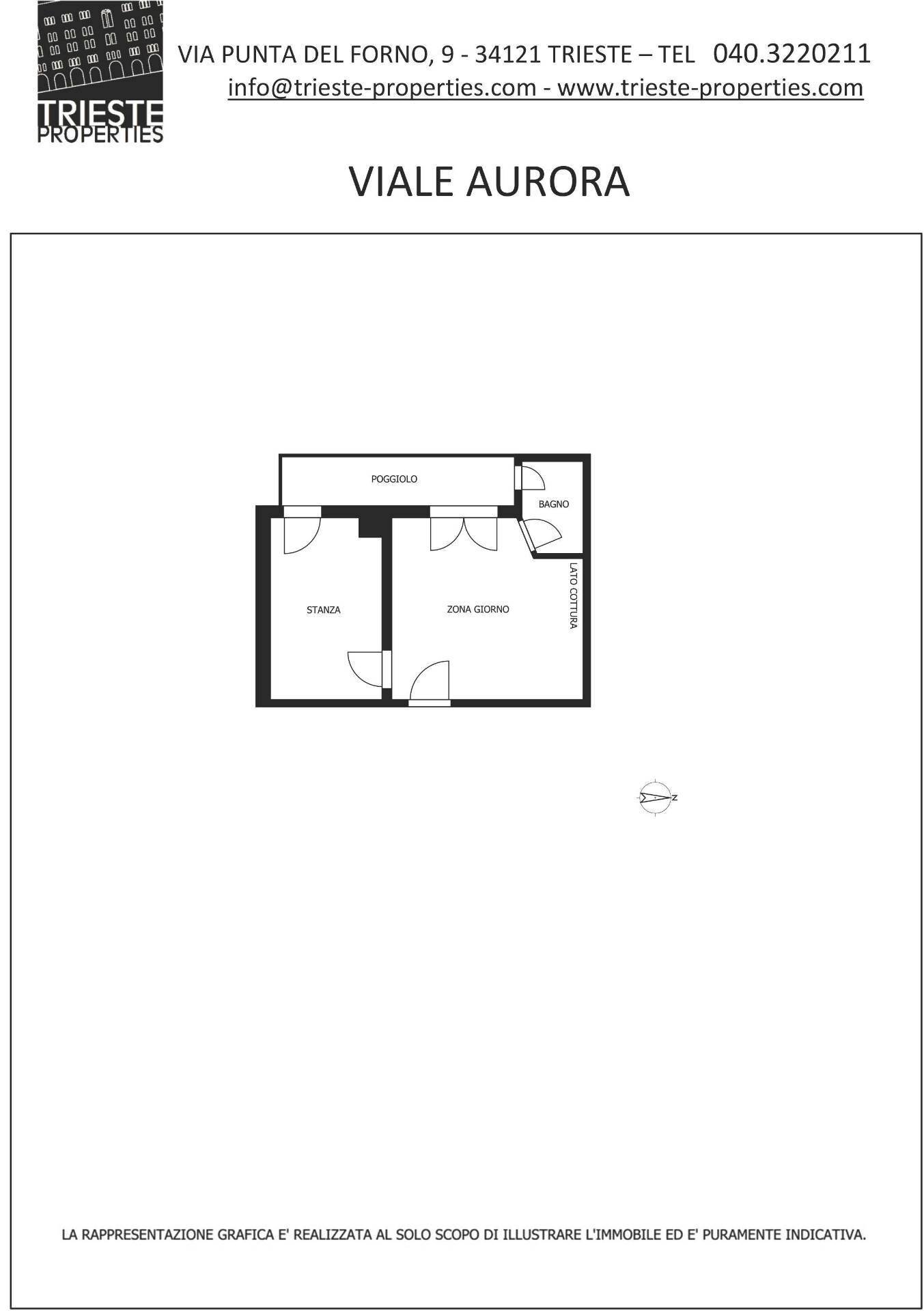
Nel centro di Bibione, nelle immediate vicinanze della spiaggia, proponiamo in vendita un perfetto bilocale sito al secondo piano di uno stabile di fine anni '60 dotato di ascensore e privo di barriere architettoniche. L'immobile è composto da una zona giorno con il lato cottura e l'accesso ad un poggiolo, una stanza anch'essa con l'accesso al poggiolo ed un bagno completo finestrato con la doccia. E' disponibile un posto auto scoperto nel parcheggio di proprietà condominiale. Le condizioni interne sono ottime, viene venduto completamente arredato e sarà disponibile da ottobre. Se vuoi vendere o acquistare casa Trieste Properties è a tua completa disposizione per una consulenza gratuita e senza impegno.
Main data
| Reference | viale Aurora - Bibione |
| Ad date | 15/05/2025 |
| Contract | Sale |
| Typology | Apartment |
| Surface | 30 m2 |
| Locals | 2 (1 bedroom, 1 other), 1 bathroom |
| Plan | 2 from 4 totals |
| Occupied | Free |
| Furniture | Complete |
Costs
| Price | 128.000 € |
| Price per m2 | 4.267 €/m2 |
Energy efficiency
| Status | Excellent |
| Heating | Absent |
| Heating Power Type | Other |
| Energy rating | F |
| Energy Performance Index (IPE) | 116 kWh/m2 year |
Floor plans
Address and map
viale aurora
4, San Michele al Tagliamento
Ad without map,
try asking the advertiser for the position
try asking the advertiser for the position
Mortgage calculation
Selling price:
Advance
20,00
Mortgage
80,00
Rate: -+
Payment: 366 per month
The results are an indicative estimate based on the data entered and do not constitute a financial offer.
Advertiser
Call
CONTACT


