Three-room apartment Via Giuseppe Garibaldi, Rodano
€ 360.000
Il Fascino della Cascina, il Comfort del Futuro: Nuovo Trilocale con ampio Giardino e Portico.
Unoasi di pace e design a pochi minuti da Milano.
In Via Garibaldi a Rodano, proponiamo in ESCLUSIVA un prestigioso trilocale di nuova costruzione al piano terra. Inserito in un contesto di corte unico, l'immobile coniuga il sapore delle storiche cascine lombarde con le più avanzate tecnologie abitative.
Lappartamento è studiato per massimizzare il comfort e la continuità con il verde privato:
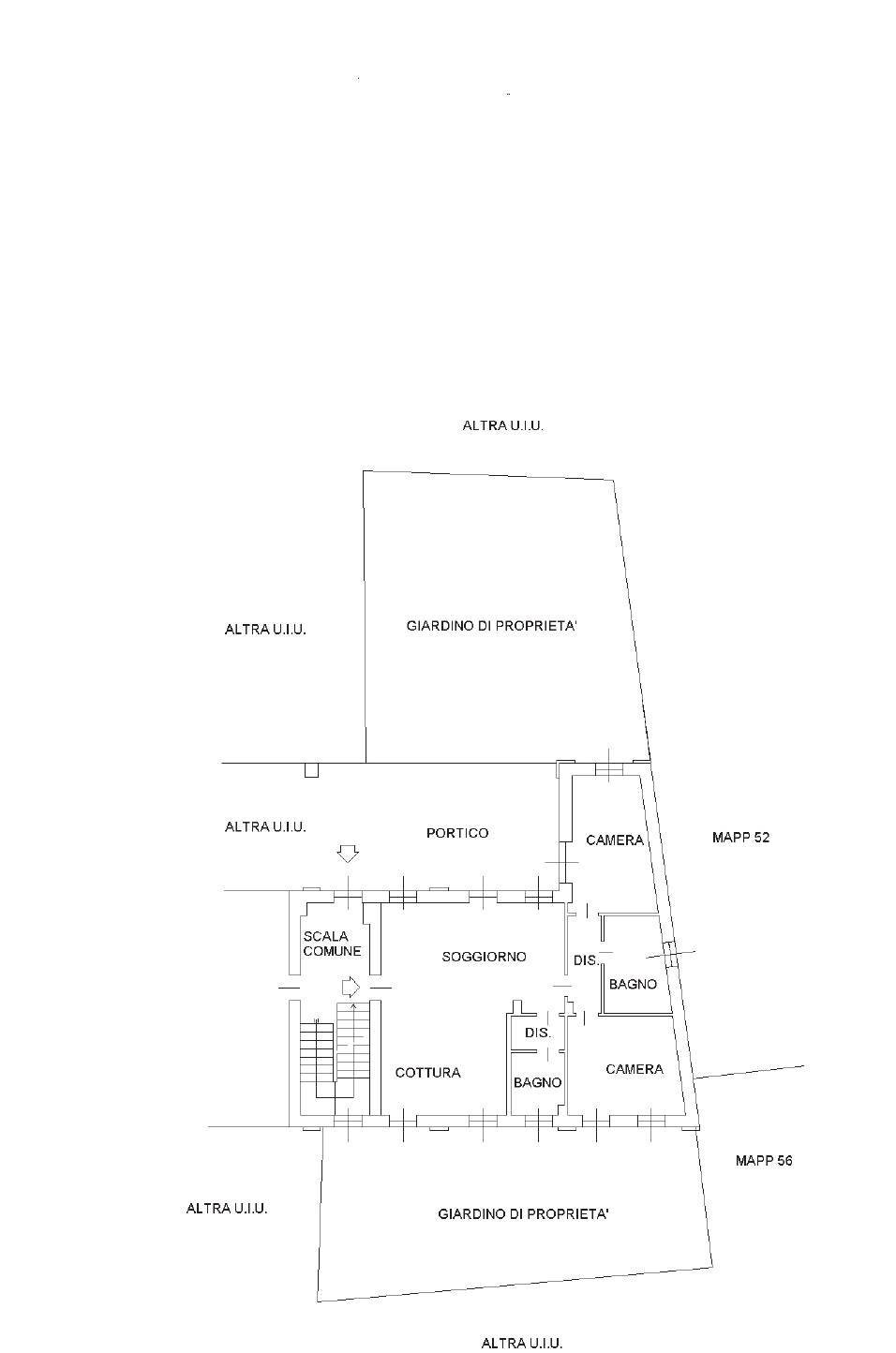
Zona Living: Luminoso soggiorno con cucina a vista e accesso diretto all'esterno.
Il Portico (35 mq): Un immenso spazio coperto, ideale come estensione del living per pranzi all'aperto e zone relax protette in ogni stagione.
Giardino Privato (250 mq): Un polmone verde di proprietà che circonda la casa su tre lati, garantendo privacy e indipendenza.
Zona Notte: Due camere da letto ben squadrate e doppi servizi moderni.
Il progetto architettonico si sviluppa su 5 corpi di fabbrica che fondono restauro conservativo e nuove costruzioni, arricchiti da:
Piscina condominiale di 70 mq ad uso esclusivo dei residenti.
Struttura antisismica, isolamento termo-acustico, riscaldamento e raffrescamento a pavimento, ventilazione meccanica (VMC) e deumidificazione.
Finiture: Serramenti in legno ad alte prestazioni per un comfort quotidiano senza pari.
Posizione Strategica
Perfetto per chi lavora a Milano ma cerca la tranquillità:
5 minuti dall'Aeroporto di Linate e dalla nuova M4 (Metropolitana Blu).
Pochi minuti dal centro di Milano.
Appartamento: 360.000,00
Box doppio: 35.000,00 (opzionale)
Per ulteriori informazioni contattare il seguente recapito telefonico 02/9552248 oppure scrivete a [email protected]
MELPUM CASA nasce dall' entusiasmo e professionalità di CRISTIAN FAINI, GEOMETRA ed CONSULENTE IMMOBILIARE DA OLTRE 25 ANNI a Melzo e nell'hinterland Milanese, con particolare attenzione al mercato immobiliare della Martesana. MELPUM CASA vi aspetta in uno spazio accogliente e professionale a MELZO,IN VIA CASANOVA 9, MELPUM CASA vi offrirà consulenza qualificata ed affidabilità nel campo dell' edilizia residenziale, commerciale ed industriale. Attraverso una continua formazione sui cambiamenti normativi e fiscali legati alle compravendite e locazioni, MELPUM CASA si propone di accompagnare con professionalità e serenità i propri clienti, dalla fase della trattativa per l'acquisto o vendita del loro immobile sino alla stipula del rogito notarile, attivandosi tramite portali di settore, con un attenzione particolare alle nuove tecnologie ed offrendosi cosi come un valido veicolo di promozione dei vostri beni immobiliari in tempi rapidi ed efficaci.
Unoasi di pace e design a pochi minuti da Milano.
In Via Garibaldi a Rodano, proponiamo in ESCLUSIVA un prestigioso trilocale di nuova costruzione al piano terra. Inserito in un contesto di corte unico, l'immobile coniuga il sapore delle storiche cascine lombarde con le più avanzate tecnologie abitative.
Lappartamento è studiato per massimizzare il comfort e la continuità con il verde privato:
Zona Living: Luminoso soggiorno con cucina a vista e accesso diretto all'esterno.
Il Portico (35 mq): Un immenso spazio coperto, ideale come estensione del living per pranzi all'aperto e zone relax protette in ogni stagione.
Giardino Privato (250 mq): Un polmone verde di proprietà che circonda la casa su tre lati, garantendo privacy e indipendenza.
Zona Notte: Due camere da letto ben squadrate e doppi servizi moderni.
Il progetto architettonico si sviluppa su 5 corpi di fabbrica che fondono restauro conservativo e nuove costruzioni, arricchiti da:
Piscina condominiale di 70 mq ad uso esclusivo dei residenti.
Struttura antisismica, isolamento termo-acustico, riscaldamento e raffrescamento a pavimento, ventilazione meccanica (VMC) e deumidificazione.
Finiture: Serramenti in legno ad alte prestazioni per un comfort quotidiano senza pari.
Posizione Strategica
Perfetto per chi lavora a Milano ma cerca la tranquillità:
5 minuti dall'Aeroporto di Linate e dalla nuova M4 (Metropolitana Blu).
Pochi minuti dal centro di Milano.
Appartamento: 360.000,00
Box doppio: 35.000,00 (opzionale)
Per ulteriori informazioni contattare il seguente recapito telefonico 02/9552248 oppure scrivete a [email protected]
MELPUM CASA nasce dall' entusiasmo e professionalità di CRISTIAN FAINI, GEOMETRA ed CONSULENTE IMMOBILIARE DA OLTRE 25 ANNI a Melzo e nell'hinterland Milanese, con particolare attenzione al mercato immobiliare della Martesana. MELPUM CASA vi aspetta in uno spazio accogliente e professionale a MELZO,IN VIA CASANOVA 9, MELPUM CASA vi offrirà consulenza qualificata ed affidabilità nel campo dell' edilizia residenziale, commerciale ed industriale. Attraverso una continua formazione sui cambiamenti normativi e fiscali legati alle compravendite e locazioni, MELPUM CASA si propone di accompagnare con professionalità e serenità i propri clienti, dalla fase della trattativa per l'acquisto o vendita del loro immobile sino alla stipula del rogito notarile, attivandosi tramite portali di settore, con un attenzione particolare alle nuove tecnologie ed offrendosi cosi come un valido veicolo di promozione dei vostri beni immobiliari in tempi rapidi ed efficaci.
Main data
| Reference | 9314/3 |
| Ad date | 15/05/2025 |
| Contract | Sale |
| Typology | Apartment |
| Surface | 154 m2 |
| Locals | 3 (2 bedrooms, 1 other), 2 bathrooms, kitchen on sight |
| Plan | Earth, 2 totals |
| Occupied | Free |
| Furniture | Absent |
Costs
| Price | 360.000 € |
| Price per m2 | 2.338 €/m2 |
Energy efficiency
| Status | Excellent |
| Heating | Autonomous |
| Heating System Type | on the floor |
| Energy rating | A2 |
Floor plans
Video
Address and map
Via Giuseppe Garibaldi, Rodano
Ad without map,
try asking the advertiser for the position
try asking the advertiser for the position
Mortgage calculation
Selling price:
Advance
20,00
Mortgage
80,00
Rate: -+
Payment: 1.030 per month
The results are an indicative estimate based on the data entered and do not constitute a financial offer.
Advertiser

MELPUMCASA
Casanova,9, Melzo
Show Phone
Call
CONTACT

