Independent house via Garibaldi, Alezio
€ 145.000
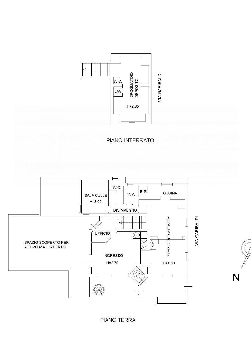
ALEZIO SOLUZIONE INDIPENDENTE DI AMPIA METRATURA Puglia, Salento, Alezio. Nel grazioso comune di Alezio e in zona ben servita, Lady House Immobiliare propone in vendita abitazione indipendente con giardino disposta su più livelli: piano interrato, piano terra e piano primo, per un totale di circa 339 mq. Limmobile, è strutturato come segue: il piano interrato è costituito da un locale uso deposito con caratteristiche volte a stella e caminetto; il piano terra sviluppa una superficie di circa mq 230 ed è composto da sei vani; il piano primo, invece, dotato di piccolo terrazzino a livello ha una superficie di circa mq 100. Completa la proprietà, un giardino retrostante di circa mq 75 e un posto auto coperto. Soluzione ideale sia per uso abitativo sia per uso investimento turistico/ricettivo. Ottima opportunità. Per info e/o appuntamento Tel 0833.18.21.211 / 380.470.54.31 e-mail: [email protected] CHI SIAMO Lady House Immobiliare nasce dalla passione di professionisti che operano nel settore dellintermediazione immobiliare da oltre 20 anni. Consulenti dedicati, leaders in Salento come PROPERTY FINDER, offriranno un supporto professionale per la ricerca del giusto investimento. Uno dei punti di forza del brand è la collaborazione tra agenti: i clienti avranno a disposizione non solo le offerte immobiliari proposte in sede, ma anche quelle gestite da altre agenzie. La pluriennale esperienza ha consentito di creare un vero e proprio contenitore di servizi a sostegno del cliente. La joint venture, con avvocati, tecnici, arredatori e home stager, permette di risolvere problematiche sempre più specifiche, in un mercato che cambia continuamente.
Main data
| Reference | LH_327 |
| Ad date | 15/05/2025 |
| Contract | Sale |
| Typology | Independent house |
| Surface | 339 m2 |
| Locals | 4 (2 bedrooms, 2 other), 2 bathrooms |
| Plan | Mezzanine, 2 totals |
| Construction type | Signorile |
| Occupied | Free |
| Garage | Absent |
| Number of parking spaces | 1 |
| Furniture | Absent |
Costs
| Price | 145.000 € |
| Price per m2 | 428 €/m2 |
Energy efficiency
| Status | To be restored |
| Heating | Autonomous |
| Heating System Type | by air |
| Heating Power Type | Electric |
| Energy rating | G |
| Energy Performance Index (IPE) | - |
Floor plans
Address and map
via Garibaldi, Alezio
Ad without map,
try asking the advertiser for the position
try asking the advertiser for the position
Mortgage calculation
Selling price:
Advance
20,00
Mortgage
80,00
Rate: -+
Payment: 415 per month
The results are an indicative estimate based on the data entered and do not constitute a financial offer.
Advertiser

Lady House Srl
Via Lecce, 23/A, Gallipoli
Show Phone
Show Mobile
Call
CONTACT

