Commercial Premises Bibione, San Michele al Tagliamento
€ 700.000
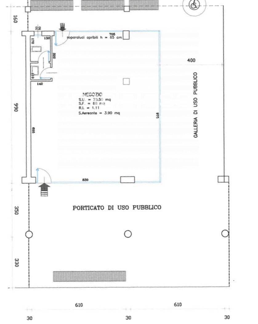
Proponiamo in affitto un locale commerciale di 83 metri quadri con bagno, situato in una zona centralissima, fortemente frequentata di Bibione, che grazie alle sue caratteristiche si presta a svariate attività commerciali. Il locale è dotato di climatizzatore e riscaldamento, con pompa di calore alimentate anche grazie all'ausilio di pannelli fotovoltaici. Disponibile anche un posto auto scoperto. Le spese condominiali ammontano a 900 allanno, esclusi i consumi energetici. Per maggiori informazioni su questo locale a Bibione, contatta l'agenzia impREsa di Pordenone al numero 0434-311665 chiedendo dell'immobile con riferimento I/AB033 Trovi questa e molte altre proposte sul nostro sito www.impresaimmobiliare.com
Main data
| Reference | I/AB033 |
| Ad date | 15/05/2025 |
| Contract | Sale |
| Typology | Commercial Premises |
| Surface | 83 m2 |
| Locals | 1 bathroom, kitchen not present |
| Occupied | Free |
| Garage | Absent |
| Furniture | Absent |
Costs
| Price | 700.000 € |
| Price per m2 | 8.434 €/m2 |
Energy efficiency
| Status | Excellent |
| Heating | Semi-autonomous |
| Heating System Type | by air |
| Heating Power Type | Photovoltaic |
| Energy rating | A2 |
Floor plans
Address and map
Bibione, San Michele al Tagliamento
Ad without map,
try asking the advertiser for the position
try asking the advertiser for the position
Mortgage calculation
Selling price:
Advance
20,00
Mortgage
80,00
Rate: -+
Payment: 2.002 per month
The results are an indicative estimate based on the data entered and do not constitute a financial offer.
Advertiser

impREsa Pordenone
via Bertossi, 4, Pordenone
Show Phone
Call
CONTACT

