Villa Via Delle Rose 10, Galatina
€ 290.000
GALATINA - LECCE - SALENTO
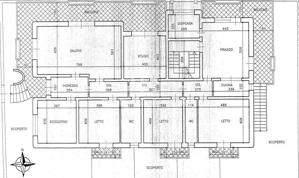
Nel cuore vibrante e ricco di storia di Galatina, proponiamo in vendita una soluzione indipendente unica nel suo genere, una residenza di ampio respiro che sorge maestosa in posizione dangolo e si sviluppa su circa 280 mq. Con ben quattro affacci indipendenti e tre ingressi distinti, questa proprietà si distingue per il carattere signorile, la versatilità duso e l'opportunità rara di essere suddivisa in due unità immobiliari autonome, perfette per chi cerca una soluzione abitativa con spazi indipendenti per famiglia, ospiti o investimento.
Lingresso principale accoglie in un ambiente raffinato e luminoso, caratterizzato da un pregiato pavimento in marmo che riflette la luce naturale e arricchisce ogni angolo della zona giorno, composta da un vasto salone doppio, adatto a occasioni di rappresentanza e a momenti conviviali, e da una sala da pranzo calda e accogliente, impreziosita da un elegante camino. Proprio dalla sala da pranzo, una porta finestra si apre verso un balcone che conduce al giardino, creando una piacevole connessione tra interno ed esterno. A completare questa area troviamo anche un cucinotto funzionale, ben separato dagli spazi di rappresentanza. La zona notte, invece, si compone di tre ampie camere da letto che offrono spazi privati e confortevoli, accompagnate da due bagni e da uno studio riservato, ideale per chi lavora da casa o necessita di uno spazio tranquillo. La residenza è interamente circondata da balconate che donano luminosità e uno sguardo sulle aree verdi terrazzate, che digradano intorno alla proprietà, offrendo così una dimensione di riservatezza e armonia.
A completare la proprietà un bilocale, completo di bagno, con accesso indipendente, un ambiente estremamente versatile che può essere adibito a dependance per gli ospiti o a studio professionale, arricchendo ulteriormente le possibilità duso di questa magnifica residenza. Una scala interna, posta vicino alla cucina, conduce allarea solare di esclusiva proprietà, che offre un panorama privilegiato ed è perfetta come area relax o conviviale per trascorrere serate allaperto. La proprietà dispone inoltre di un ampio parcheggio coperto accessibile tramite un cancello scorrevole, pensato per ospitare più veicoli in totale sicurezza.
Questa casa indipendente, pur mantenendo un fascino senza tempo, necessita di alcuni interventi di ristrutturazione per valorizzare appieno le sue caratteristiche architettoniche e adattarla alle esigenze moderne, valorizzando così ogni ambiente in modo unico e personale. Situata in zona residenziale ricca di servizi, questa proprietà rappresenta una rara occasione per chi desidera una residenza prestigiosa e di ampio respiro.
Contattaci per ulteriori informazioni o per organizzare una visita esclusiva.
Galatina dista 20 Km da Lecce, 18 Km da Gallipoli, 25 Km da Otranto e 45 Km dall'aeroporto di Brindisi.
Nel cuore vibrante e ricco di storia di Galatina, proponiamo in vendita una soluzione indipendente unica nel suo genere, una residenza di ampio respiro che sorge maestosa in posizione dangolo e si sviluppa su circa 280 mq. Con ben quattro affacci indipendenti e tre ingressi distinti, questa proprietà si distingue per il carattere signorile, la versatilità duso e l'opportunità rara di essere suddivisa in due unità immobiliari autonome, perfette per chi cerca una soluzione abitativa con spazi indipendenti per famiglia, ospiti o investimento.
Lingresso principale accoglie in un ambiente raffinato e luminoso, caratterizzato da un pregiato pavimento in marmo che riflette la luce naturale e arricchisce ogni angolo della zona giorno, composta da un vasto salone doppio, adatto a occasioni di rappresentanza e a momenti conviviali, e da una sala da pranzo calda e accogliente, impreziosita da un elegante camino. Proprio dalla sala da pranzo, una porta finestra si apre verso un balcone che conduce al giardino, creando una piacevole connessione tra interno ed esterno. A completare questa area troviamo anche un cucinotto funzionale, ben separato dagli spazi di rappresentanza. La zona notte, invece, si compone di tre ampie camere da letto che offrono spazi privati e confortevoli, accompagnate da due bagni e da uno studio riservato, ideale per chi lavora da casa o necessita di uno spazio tranquillo. La residenza è interamente circondata da balconate che donano luminosità e uno sguardo sulle aree verdi terrazzate, che digradano intorno alla proprietà, offrendo così una dimensione di riservatezza e armonia.
A completare la proprietà un bilocale, completo di bagno, con accesso indipendente, un ambiente estremamente versatile che può essere adibito a dependance per gli ospiti o a studio professionale, arricchendo ulteriormente le possibilità duso di questa magnifica residenza. Una scala interna, posta vicino alla cucina, conduce allarea solare di esclusiva proprietà, che offre un panorama privilegiato ed è perfetta come area relax o conviviale per trascorrere serate allaperto. La proprietà dispone inoltre di un ampio parcheggio coperto accessibile tramite un cancello scorrevole, pensato per ospitare più veicoli in totale sicurezza.
Questa casa indipendente, pur mantenendo un fascino senza tempo, necessita di alcuni interventi di ristrutturazione per valorizzare appieno le sue caratteristiche architettoniche e adattarla alle esigenze moderne, valorizzando così ogni ambiente in modo unico e personale. Situata in zona residenziale ricca di servizi, questa proprietà rappresenta una rara occasione per chi desidera una residenza prestigiosa e di ampio respiro.
Contattaci per ulteriori informazioni o per organizzare una visita esclusiva.
Galatina dista 20 Km da Lecce, 18 Km da Gallipoli, 25 Km da Otranto e 45 Km dall'aeroporto di Brindisi.
Main data
| Reference | CBI104-622-252 |
| Ad date | 15/05/2025 |
| Contract | Sale |
| Typology | Villa |
| Surface | 280 m2 |
| Locals | more than 5 (4 bedrooms, 4 other), 2 bathrooms, kitchen habitable |
| Plan | Mezzanine, 1 totals |
| Construction type | Signorile |
| Occupied | Free |
| Number of parking spaces | 3 |
| Furniture | Absent |
Costs
| Price | 290.000 € |
| Price per m2 | 1.036 €/m2 |
Energy efficiency
| Heating | Autonomous |
| Energy rating | F |
| Energy Performance Index (IPE) | 176 kWh/m2 year |
Floor plans
Address and map
Via Delle Rose
10, Galatina
Ad without map,
try asking the advertiser for the position
try asking the advertiser for the position
Mortgage calculation
Selling price:
Advance
20,00
Mortgage
80,00
Rate: -+
Payment: 829 per month
The results are an indicative estimate based on the data entered and do not constitute a financial offer.
Advertiser

Coldwell Banker Gruppo Bodini
Piazza Dante Alighieri, 43, Galatina
Show Phone
Show Mobile
Call
CONTACT

