Villa Aulla
€ 270.000
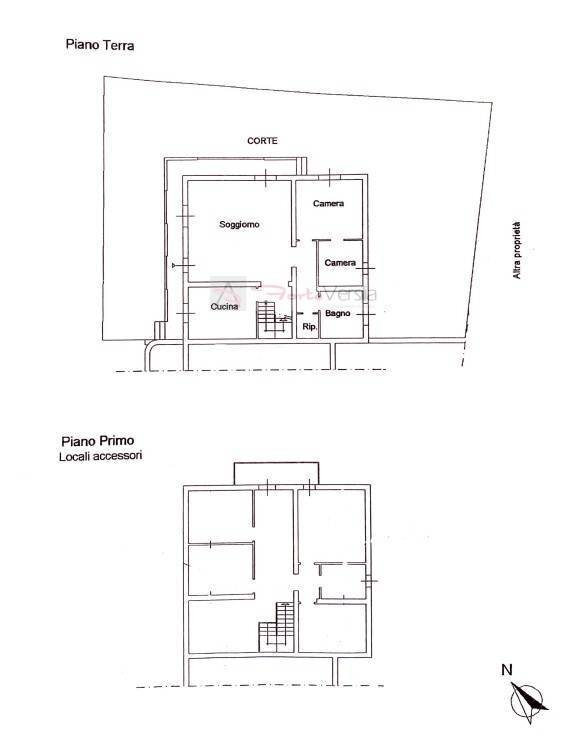
| COD: 3015 | AULLA | ALBIANO MAGRA | NOSTRA ESCLUSIVA, CORRETE A SCOPRIRLA Magnifica villetta in vendita di 173MQ con giardino COSTRUITA NEL 2000 E' PRONTA CHIAVI IN MANO!! La villetta è così composta: Piano Terra: Ingresso con posto Auto e accesso alla proprietà, Ingresso sul Soggiorno con Camino a vista e 40MQ di spazio Giorno, Cucina Abitabile, Camera matrimoniale con cabina armadio ed un Bagno Completo; Piano Primo: Troviamo la restante zona notte con 3 Camere da letto con Lucernari, una zona studio, un locale sgombro ed un Bagno Completa; Esterno: All'esterno troviamo un Giardino privato di 200MQ su 3 Lati, l'accesso ad una cantina, Locale tecnico ed un Forno per momenti in famiglia; Un prezzo un'affare, prendete appuntamento con noi per scoprirla con noi!! Punti di forza Prezzo Posizione Servizi Servizi della casa Cancello automatico Posto auto Giardino 4 Camere matrimoniali Arredata Non esitate a contattarci per ulteriori informazioni e visite, Michele 351*5429*448 [email protected]
Main data
| Reference | 3015 |
| Ad date | 15/05/2025 |
| Contract | Sale |
| Typology | Villa |
| Surface | 173 m2 |
| Locals | more than 5 (4 bedrooms, 3 other), 2 bathrooms, kitchen habitable |
| Construction type | Average |
| Occupied | Free |
| Number of parking spaces | 2 |
Costs
| Price | 270.000 € |
| Price per m2 | 1.561 €/m2 |
Energy efficiency
| Status | Partially restored |
| Heating | Autonomous |
| Energy rating | F |
| Energy Performance Index (IPE) | 124 kWh/m2 year |
Floor plans
Address and map
Aulla
Ad without map,
try asking the advertiser for the position
try asking the advertiser for the position
Mortgage calculation
Selling price:
Advance
20,00
Mortgage
80,00
Rate: -+
Payment: 772 per month
The results are an indicative estimate based on the data entered and do not constitute a financial offer.
Advertiser

Agenzia ForteVersilia Immobiliare
via Trento 124, Forte dei Marmi
Show Phone
Show Mobile
Call
CONTACT

