Commercial Premises Via Roma, Oschiri
€ 350.000
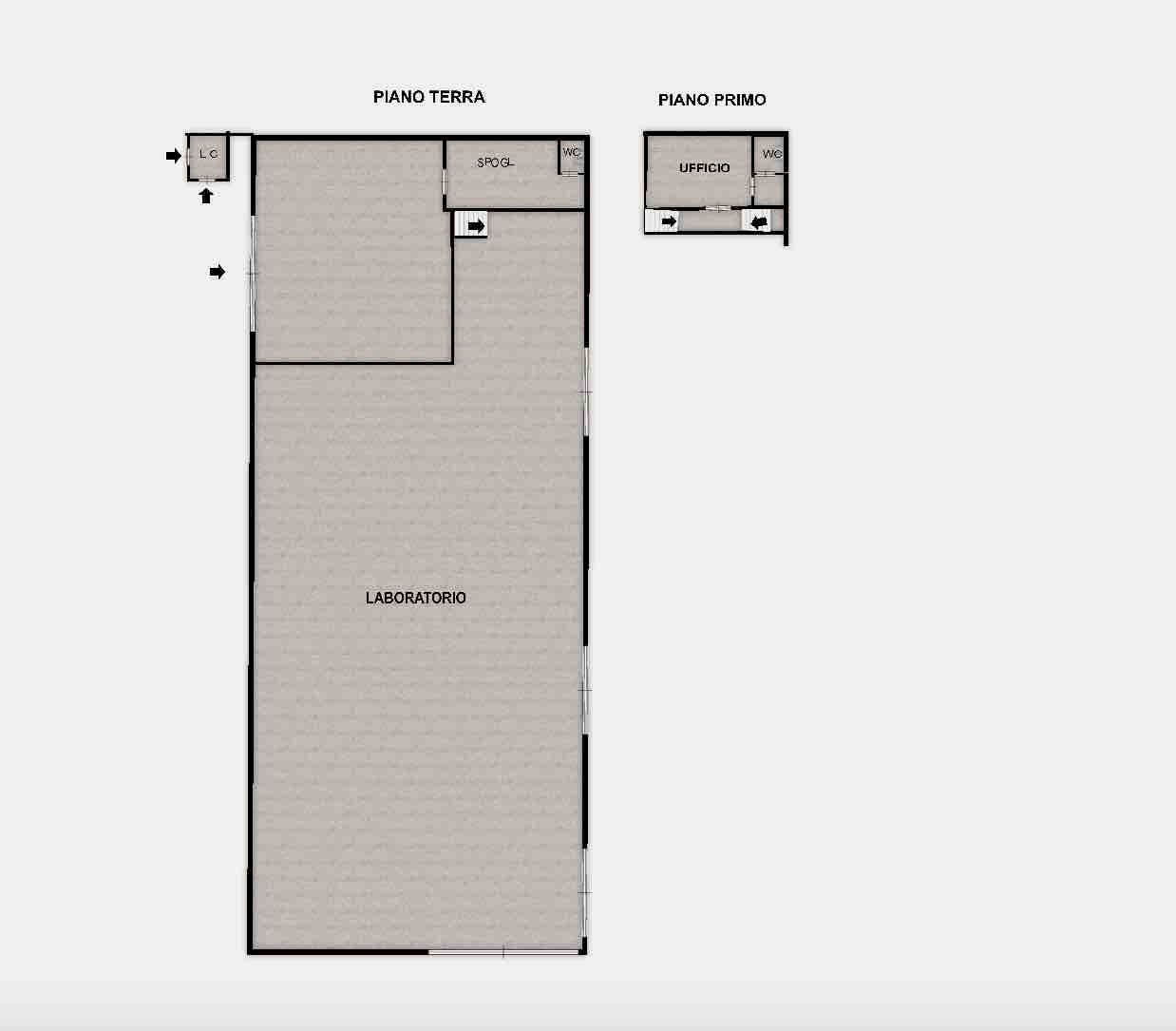
Oschiri | Capannone industriale con ufficio e cantina Proponiamo in vendita un ampio magazzino industriale situato strategicamente all'ingresso di Oschiri, un incantevole paese dellentroterra sardo a soli 30 minuti da Olbia. Questo spazio è ideale per aziende che cercano un ambiente funzionale e ben attrezzato per le loro attività. Il punto di forza è la sua posizione strategica e privilegiata che offre un facile accesso alle principali vie di comunicazione, agevolando i collegamenti con Olbia, Sassari e altre zone, rendendolo un vero punto di forza. Così composto: - Area pesa esterna - Locale tecnico - Capannone - Ufficio - Due bagni - Cantina Dotazioni: - Doppio cancello di ingresso lato strada - Locale tecnico esterno - Area pesa esterna portata 500 quintali - Impianto e relative cisterne per lo smaltimento di materiali inerti e bituminosi - Impianto elettrico 220/380 volt - Impianto illuminazione esterna - Impianto antincendio - Predisposizione carroponte Perché acquistarlo? #1 Posizione strategica #2 Generosi spazi di stoccaggio #3 Spazio ufficio incluso #4 Pronto alluso #5 Ottimo investimento #6 A 30 minuti da porto e aeroporto Olbia Costa Smeralda Maior Capital è il Gruppo Immobiliare di riferimento per l'acquisto e la vendita di proprietà in Sardegna, offrendo la più ampia selezione di proprietà di lusso, case di charme e natura in ununica collezione. Il nostro team di esperti del settore immobiliare offre un servizio su misura e impeccabile, grazie alla profonda conoscenza del territorio sardo ed alla comprovata professionalità. Come membro esclusivo per la Sardegna di importanti network globali come Luxury Portfolio International, Leading Real Estate e Italian Network Realty, garantiamo un'esperienza di intermediazione di alto livello e massima soddisfazione per ogni cliente.
Main data
| Reference | OSV-05-24 | Oschiri |
| Ad date | 15/05/2025 |
| Contract | Sale |
| Typology | Commercial Premises |
| Surface | 850 m2 |
| Locals | 3 (3 other), 2 bathrooms |
| Plan | Earth, 1 totals |
| Occupied | Free |
| Number of parking spaces | 10 |
Costs
| Price | 350.000 € |
| Price per m2 | 412 €/m2 |
Energy efficiency
| Status | Good |
| Heating | Absent |
| Heating Power Type | Other |
| Energy rating | G |
| Energy Performance Index (IPE) | - |
Floor plans
Address and map
Via Roma, Oschiri
Ad without map,
try asking the advertiser for the position
try asking the advertiser for the position
Mortgage calculation
Selling price:
Advance
20,00
Mortgage
80,00
Rate: -+
Payment: 1.001 per month
The results are an indicative estimate based on the data entered and do not constitute a financial offer.
Advertiser

Maior Capital
Piazza Italia 2A, Budoni
Show Phone
Show Mobile
Call
CONTACT

