Laboratory C.da Passo 7, Comunanza
€ 1.100.000
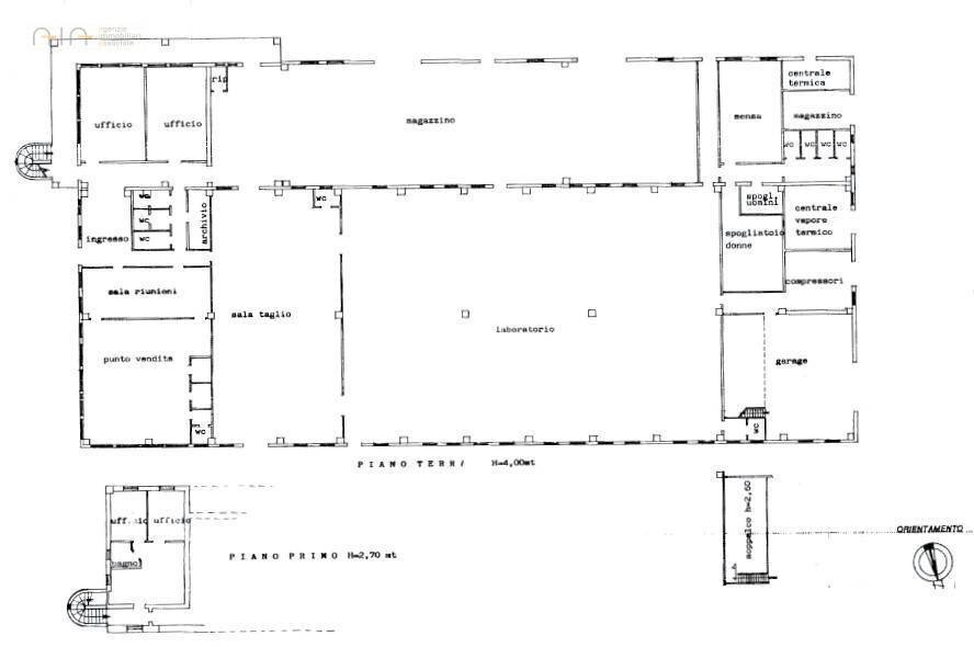
Intero fabbricato a destinazione mista, artigianale/produttiva e abitativa, per una superficie coperta di complessivi 2200 mq su due livelli. L'intero piano terra, con altezza mt 4, di circa 2000 mq complessivi, ospita la zona produttiva con laboratorio/magazzini e sala taglio per complessivi 1400 mq oltre uffici/sala riunioni e punto vendita di 320 mq circa; mensa e spogliatoi/WC di 130 mq totali e garage con soppalco di 150 mq. Il piano superiore ospita un appartamento di 140 mq circa composto da zona giorno con angolo cottura su soggiorno, due camere da letto, due bagni e balcone di circa 9 mq oltre ad uffici con WC di complessivi 65 mq circa. Esternamente troviamo una corte di pertinenza completamente recintata, in parte asfaltata e in parte destinata a verde e parcheggi privati, di circa 5000 mq in cui è presente una cabina elettrica a servizio del fabbricato. L'immobile si presenta in mediocri condizioni sia interne che esterne, necessita di un'importante ristrutturazione. L'unità risulta non utilizzabile ed è oggetto di un'ordinanza di inagibilità a seguito del sisma 2016/2017 (POSSIBILITA' DI ACCEDERE AI CONTRIBUTI RICOSTRUZIONE POST-SISMA). Il fabbricato risulta essere completamente indipendente, libero su tutti i lati e non in aderenza con nessun altro immobile; per il suo inquadramento è adatto a molteplici destinazioni, dalla produzione industriale di ogni tipo alla vendita al dettaglio o all'ingrosso, dall'utilizzo come deposito alle attività di carattere terziario. Tale soluzione completamente autonoma, assicura un'immagine aziendale prestigiosa, oltre alla totale autonomia e disponibilità degli spazi. Localizzato in posizione periferica, comunque in zona artigianale/produttiva, risulta facilmente raggiungibile, sia per la clientela che per i fornitori stessi, grazie alla vicinanza alla Strada Statale Valdaso e ad altre vie di comunicazione che collegano facilmente l'immobile all'autostrada A14, alla città di Macerata ed Ascoli Piceno.
Main data
| Reference | 33362 |
| Ad date | 15/05/2025 |
| Contract | Sale |
| Typology | Laboratory |
| Surface | 2200 m2 |
| Occupied | Free |
Costs
| Price | 1.100.000 € |
| Price per m2 | 500 €/m2 |
Energy efficiency
| Status | To be restored |
| Heating Power Type | Other |
| Energy rating | Property exempt from energy certification |
Floor plans
Address and map
C.da Passo
7, Comunanza
Ad without map,
try asking the advertiser for the position
try asking the advertiser for the position
Mortgage calculation
Selling price:
Advance
20,00
Mortgage
80,00
Rate: -+
Payment: 3.146 per month
The results are an indicative estimate based on the data entered and do not constitute a financial offer.
Advertiser

Fioravanti Agenzia Immobiliare
Piazza Garibaldi n° 8, Comunanza
Show Phone
Show Mobile
Call
CONTACT

