Three-room apartment Via Formentini 1, San Benedetto del Tronto
€ 540.000
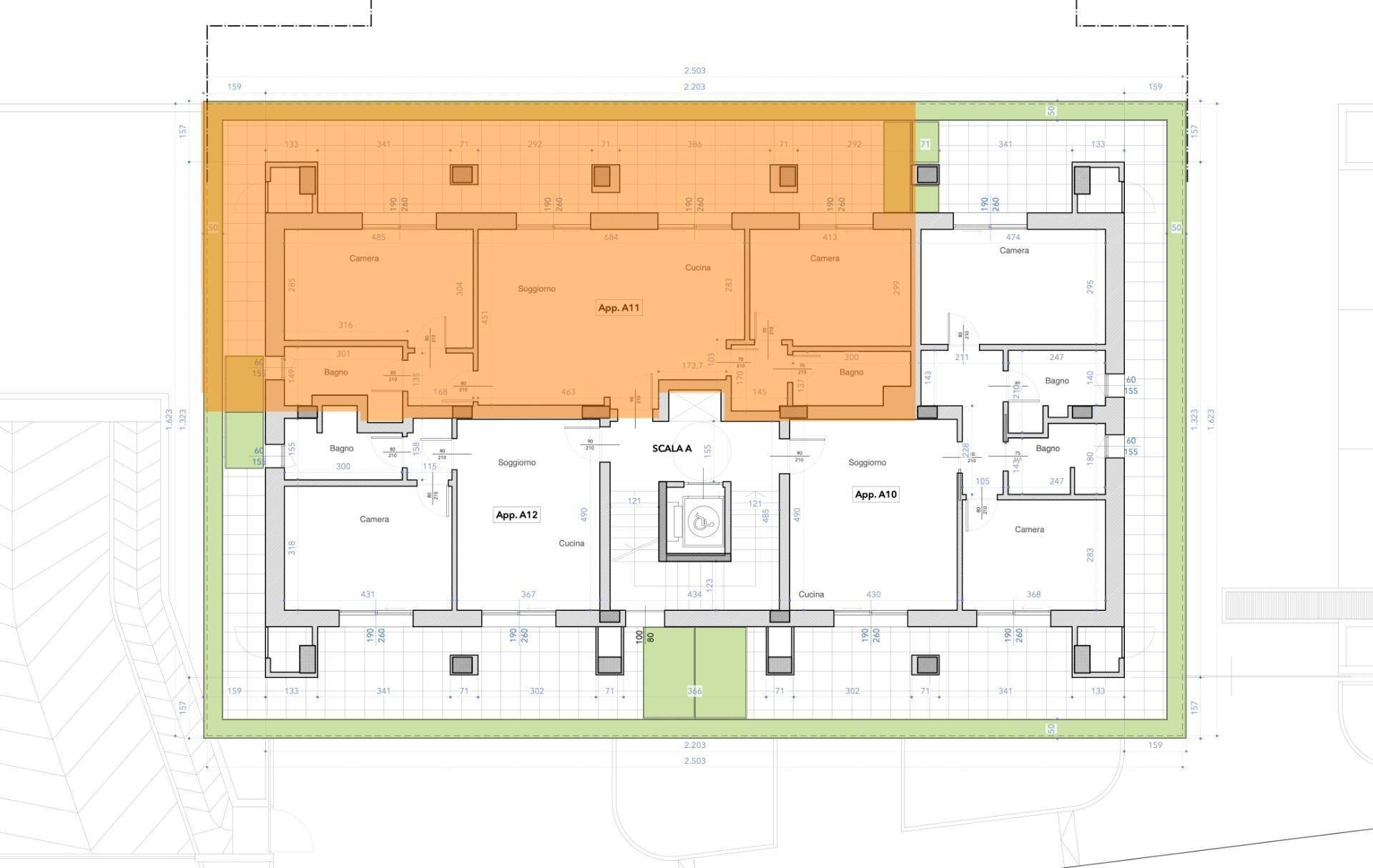
Proponiamo in vendita un elegante appartamento di 85 m², situato al quarto piano del prestigioso complesso residenziale Caroselli Garden House. Limmobile è composto da un ampio soggiorno con angolo cottura, due camere da letto (una matrimoniale e una doppia), due bagni di cui uno finestrato, entrambi con doccia, e due pratici disimpegni nel reparto notte. La proprietà è arricchita da una spaziosa terrazza loggiata esterna di 58 m², ideale per trascorrere momenti di relax allaperto durante la bella stagione. L'appartamento, pronto per la consegna, è rifinito con pavimentazione in parquet di rovere su tutta la superficie, infissi Shuko certificati, e impianto di riscaldamento e raffrescamento canalizzato, controllabile tramite app per una gestione ottimale della temperatura in ogni stanza. L'unità è inserita all'interno di un elegante fabbricato di cinque piani, accessibile esclusivamente ai residenti tramite tastierino numerico, garantendo massima sicurezza e privacy. Il complesso residenziale è circondato da un meraviglioso giardino interno e piante su tutte le balconate e logge esterne, con un sistema centrale di irrigazione che utilizza acqua recuperata in accumulo. Inoltre, ledificio è stato realizzato in classe energetica NZEB (Near Zero Energy Building), con un impianto fotovoltaico centrale da 44 kW e soluzioni progettuali ecocompatibili come il cappotto esterno e l'ottimizzazione dellirraggiamento naturale. Posizione: La proprietà è situata in una posizione centrale, a pochi passi da scuole, banche, farmacia, supermercati, e a soli 650 metri dal mare. È la soluzione ideale per chi cerca un immobile esclusivo, dal design moderno, con impatto estetico unico e illuminazione notturna suggestiva. Note: Garage disponibile a partire da 42.000, con predisposizione per ricarica auto elettriche (prezzo separato). Cantina disponibile a partire da 10.000 (prezzo separato). Posto auto esterno disponibile a partire da 26.000 allinterno del complesso (prezzo separato). Nessuna commissione a carico dellacquirente.
Main data
| Reference | 33225 |
| Ad date | 15/05/2025 |
| Contract | Sale |
| Typology | Apartment |
| Surface | 85 m2 |
| Locals | 3 (2 bedrooms, 1 other), 2 bathrooms, kitchen kitchenette |
| Plan | 4 from 5 totals |
| Construction type | Signorile |
| Occupied | Free |
| Garage | Single |
| Number of parking spaces | 1 |
Costs
| Price | 540.000 € |
| Price per m2 | 6.353 €/m2 |
Energy efficiency
| Status | Excellent |
| Heating | Autonomous |
| Heating System Type | by air |
| Heating Power Type | Photovoltaic |
| Energy rating | A4 |
Floor plans
Address and map
Via Formentini
1, San Benedetto del Tronto
Ad without map,
try asking the advertiser for the position
try asking the advertiser for the position
Mortgage calculation
Selling price:
Advance
20,00
Mortgage
80,00
Rate: -+
Payment: 1.544 per month
The results are an indicative estimate based on the data entered and do not constitute a financial offer.
Advertiser

Spina & Marchei
Viale De Gasperi 113, San Benedetto del Tronto
Show Phone
Show Mobile
Spina Giovanni
Show Phone
Call
CONTACT

