Three-room apartment Via Formentini 1, San Benedetto del Tronto
€ 520.000
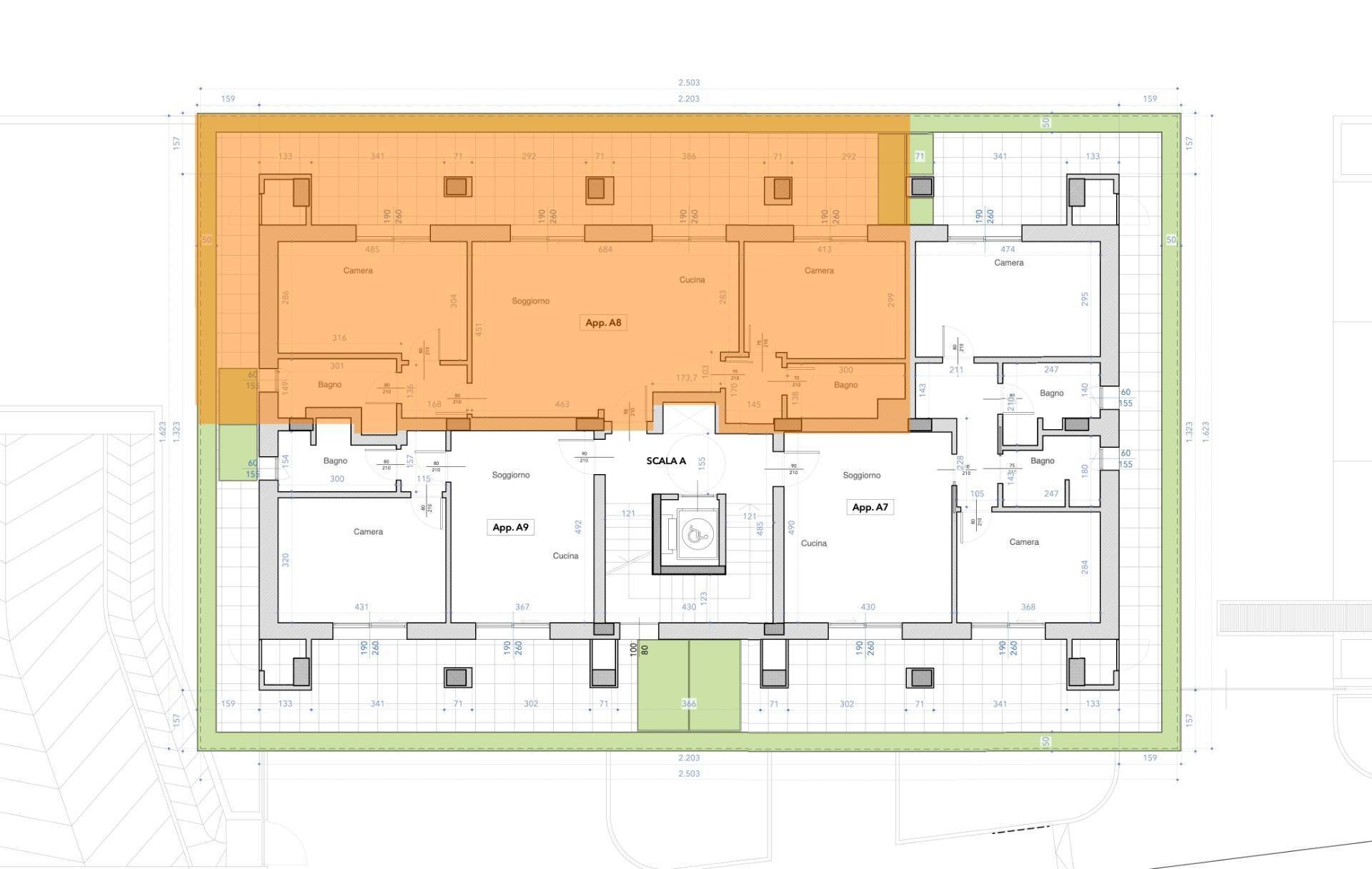
Proponiamo in vendita un elegante appartamento di 85 m², situato al terzo piano del prestigioso complesso residenziale Caroselli Garden House. Limmobile è composto da un ampio soggiorno con angolo cottura, due camere da letto (una matrimoniale e una doppia), due bagni di cui uno finestrato, entrambi con doccia, e due pratici disimpegni nel reparto notte. Lappartamento è arricchito da una terrazza loggiata esterna abitabile coperta, di 58 m², ideale per godersi la bella stagione. L'unità, pronta per la consegna, è rifinita con pavimentazione in parquet di rovere su tutta la superficie, infissi Shuko certificati e un impianto di riscaldamento e raffrescamento canalizzato, con controllo tramite app per regolare la temperatura in ogni stanza. La soluzione è situata in un edificio di cinque piani, accessibile esclusivamente ai residenti tramite tastierino numerico, garantendo la massima privacy e sicurezza. Il complesso residenziale è circondato da un incantevole giardino interno, con piante su tutte le balconate e logge esterne, con irrigazione gestita da un sistema centrale a accumulo di acqua. Realizzato in classe energetica NZEB (Near Zero Energy Building), l'edificio è progettato per consumi energetici prossimi allo zero, grazie allimpianto fotovoltaico da 44 kW e soluzioni innovative come il cappotto esterno e lottimizzazione dellirraggiamento naturale. Posizione: Limmobile si trova in una posizione centrale, a pochi passi dai principali servizi come scuole, banche, farmacia, supermercati e a soli 650 metri dal mare, risultando la soluzione ideale per chi cerca un appartamento esclusivo con un impatto estetico unico e suggestiva illuminazione notturna. Note: Garage disponibile a partire da 42.000, con predisposizione per ricarica auto elettriche (prezzo separato). Cantina disponibile a partire da 10.000 (prezzo separato). Posto auto esterno allinterno del complesso disponibile a partire da 26.000 (prezzo separato). Nessuna commissione a carico dellacquirente.
Main data
| Reference | 33224 |
| Ad date | 15/05/2025 |
| Contract | Sale |
| Typology | Apartment |
| Surface | 85 m2 |
| Locals | 3 (2 bedrooms, 1 other), 2 bathrooms, kitchen kitchenette |
| Plan | 3 from 5 totals |
| Construction type | Signorile |
| Occupied | Free |
| Garage | Single |
| Number of parking spaces | 1 |
Costs
| Price | 520.000 € |
| Price per m2 | 6.118 €/m2 |
Energy efficiency
| Status | Excellent |
| Heating | Autonomous |
| Heating System Type | by air |
| Heating Power Type | Photovoltaic |
| Energy rating | A4 |
Floor plans
Address and map
Via Formentini
1, San Benedetto del Tronto
Ad without map,
try asking the advertiser for the position
try asking the advertiser for the position
Mortgage calculation
Selling price:
Advance
20,00
Mortgage
80,00
Rate: -+
Payment: 1.487 per month
The results are an indicative estimate based on the data entered and do not constitute a financial offer.
Advertiser

Spina & Marchei
Viale De Gasperi 113, San Benedetto del Tronto
Show Phone
Show Mobile
Spina Giovanni
Show Phone
Call
CONTACT

