Three-room apartment Via Formentini 1, San Benedetto del Tronto
€ 450.000
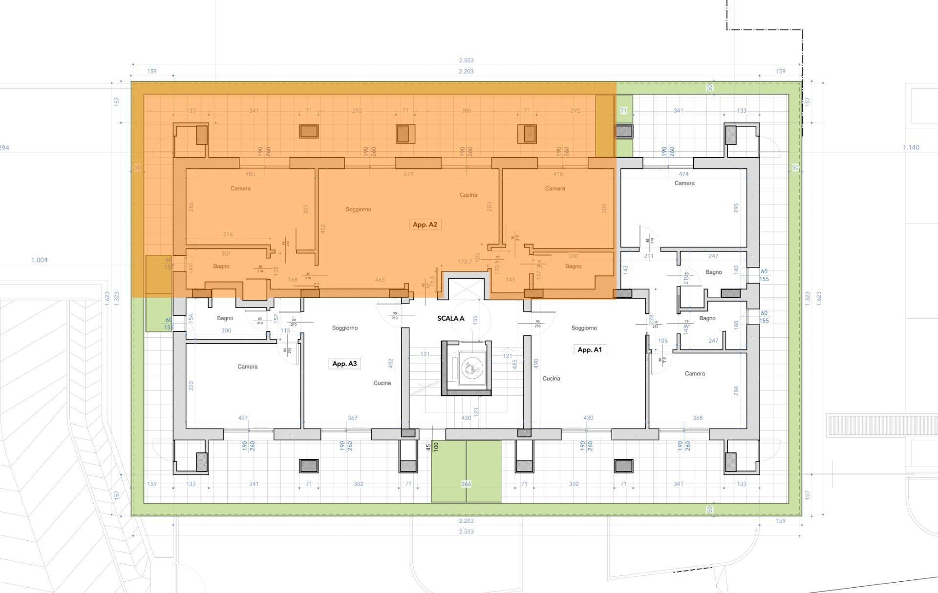
In prestigioso complesso residenziale, proponiamo un appartamento di 85 m² al primo piano, composto da ingresso su ampio soggiorno con angolo cottura, due camere da letto (una matrimoniale e una doppia), due bagni finestrati, entrambi con doccia, e due pratici disimpegni nella zona notte. L'immobile è completato da una terrazza a loggia esterna abitabile, coperta, di 58 m², ideale per sfruttare al meglio la bella stagione.
L'appartamento, pronto per essere abitato, vanta finiture di alto livello, tra cui pavimentazione in parquet di rovere su tutta la superficie, infissi Schüco certificati, e un impianto di riscaldamento e raffrescamento canalizzato, regolabile tramite app, con temperatura personalizzabile in ogni stanza. Inserito in un elegante fabbricato di cinque piani, l'appartamento fa parte del rinomato complesso residenziale Caroselli Garden House, accessibile esclusivamente ai residenti tramite tastierino numerico.
Il complesso è circondato da un meraviglioso giardino interno e da piante che adornano tutte le balconate e logge esterne, con un sistema di irrigazione centralizzato. Realizzato in classe energetica Nzeb (Near Zero Energy Building), l'edificio è progettato per un consumo energetico quasi nullo, grazie a soluzioni innovative come l'impianto fotovoltaico centrale da 44 kW, cappotto esterno e ottimizzazione dell'irraggiamento solare.
Posizione privilegiata: L'appartamento è situato in una posizione centrale, vicino a tutti i servizi essenziali come scuole, banche, farmacie, supermercati e a soli 650 metri dal mare. Un'opportunità ideale per chi cerca un immobile di grande prestigio, con un impatto estetico unico, valorizzato dalla suggestiva illuminazione notturna dell'intero complesso.
Note:
Possibilità di acquistare un garage a partire da 42.000, con predisposizione per la ricarica di auto elettriche (prezzo separato).
Possibilità di acquistare una cantina a partire da 10.000 (prezzo separato).
Possibilità di acquistare un posto auto esterno all'interno del complesso a partire da 26.000 (prezzo separato).
Nessuna commissione a carico dell'acquirente.
L'appartamento, pronto per essere abitato, vanta finiture di alto livello, tra cui pavimentazione in parquet di rovere su tutta la superficie, infissi Schüco certificati, e un impianto di riscaldamento e raffrescamento canalizzato, regolabile tramite app, con temperatura personalizzabile in ogni stanza. Inserito in un elegante fabbricato di cinque piani, l'appartamento fa parte del rinomato complesso residenziale Caroselli Garden House, accessibile esclusivamente ai residenti tramite tastierino numerico.
Il complesso è circondato da un meraviglioso giardino interno e da piante che adornano tutte le balconate e logge esterne, con un sistema di irrigazione centralizzato. Realizzato in classe energetica Nzeb (Near Zero Energy Building), l'edificio è progettato per un consumo energetico quasi nullo, grazie a soluzioni innovative come l'impianto fotovoltaico centrale da 44 kW, cappotto esterno e ottimizzazione dell'irraggiamento solare.
Posizione privilegiata: L'appartamento è situato in una posizione centrale, vicino a tutti i servizi essenziali come scuole, banche, farmacie, supermercati e a soli 650 metri dal mare. Un'opportunità ideale per chi cerca un immobile di grande prestigio, con un impatto estetico unico, valorizzato dalla suggestiva illuminazione notturna dell'intero complesso.
Note:
Possibilità di acquistare un garage a partire da 42.000, con predisposizione per la ricarica di auto elettriche (prezzo separato).
Possibilità di acquistare una cantina a partire da 10.000 (prezzo separato).
Possibilità di acquistare un posto auto esterno all'interno del complesso a partire da 26.000 (prezzo separato).
Nessuna commissione a carico dell'acquirente.
Main data
| Reference | 33222 |
| Ad date | 15/05/2025 |
| Contract | Sale |
| Typology | Apartment |
| Surface | 85 m2 |
| Locals | 3 (2 bedrooms, 1 other), 2 bathrooms, kitchen kitchenette |
| Plan | 1 from 5 totals |
| Construction type | Signorile |
| Occupied | Free |
| Garage | Single |
| Number of parking spaces | 1 |
Costs
| Price | 450.000 € |
| Price per m2 | 5.294 €/m2 |
Energy efficiency
| Status | Excellent |
| Heating | Autonomous |
| Heating System Type | by air |
| Heating Power Type | Photovoltaic |
| Energy rating | A4 |
Floor plans
Address and map
Via Formentini
1, San Benedetto del Tronto
Ad without map,
try asking the advertiser for the position
try asking the advertiser for the position
Mortgage calculation
Selling price:
Advance
20,00
Mortgage
80,00
Rate: -+
Payment: 1.287 per month
The results are an indicative estimate based on the data entered and do not constitute a financial offer.
Advertiser

Spina & Marchei
Viale De Gasperi 113, San Benedetto del Tronto
Show Phone
Show Mobile
Spina Giovanni
Show Phone
Call
CONTACT

