One-room apartment Via Formentini 1, San Benedetto del Tronto
€ 255.000
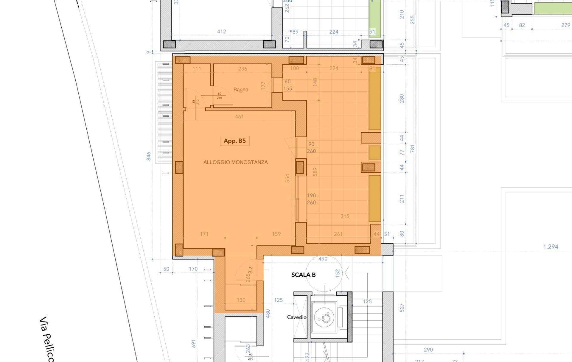
Appartamento monolocale situato al piano secondo attico, con una superficie di circa 48 m², composto da ingresso su corridoio, ampio soggiorno con angolo cottura e zona letto, un bagno finestrato e un ripostiglio lavanderia. L'appartamento è inoltre dotato di una terrazza a loggia coperta di circa 26 m², ideale per godersi la bella stagione.
L'immobile, pronto per la consegna, è rifinito con pavimentazione in parquet di rovere su tutta la superficie, infissi certificati Schüco e impianto di riscaldamento e raffrescamento canalizzato, con controllo da remoto tramite app e regolazione della temperatura in ogni stanza. L'unità fa parte di una piccola palazzina di soli tre piani, situata all'interno del prestigioso complesso residenziale Caroselli Garden House, una soluzione abitativa esclusiva, accessibile solo ai residenti tramite tastierino numerico d'ingresso.
L'intero complesso è circondato da un magnifico giardino interno, con piante su tutte le balconate e logge esterne, irrigato tramite un sistema centralizzato con accumulo d'acqua. Inoltre, l'edificio è progettato secondo i principi della classe energetica Nzeb (Near Zero Energy Building), grazie all'impianto fotovoltaico centralizzato da 44 kW e ad altri accorgimenti, come cappotto esterno, gestione dell'irraggiamento naturale e ombreggiatura naturale tramite balconi aggettanti.
La posizione centrale permette di accedere facilmente a scuole, banche, farmacie, supermercati e dista circa 650 m dal mare. Questa è la soluzione ideale per chi cerca un immobile di grande prestigio, con un impatto estetico unico e una suggestiva illuminazione notturna che rende l'intero complesso davvero speciale.
Note:
Con prezzo da computare a parte, è possibile acquistare un comodo garage a partire da 42.000, con predisposizione per la ricarica di auto elettriche.
Con prezzo da computare a parte, è possibile acquistare una comoda cantina a partire da 10.000.
Con prezzo da computare a parte, è possibile acquistare un posto auto esterno all'interno del complesso, al prezzo di 26.000.
Nessuna commissione a carico dell'acquirente.
L'immobile, pronto per la consegna, è rifinito con pavimentazione in parquet di rovere su tutta la superficie, infissi certificati Schüco e impianto di riscaldamento e raffrescamento canalizzato, con controllo da remoto tramite app e regolazione della temperatura in ogni stanza. L'unità fa parte di una piccola palazzina di soli tre piani, situata all'interno del prestigioso complesso residenziale Caroselli Garden House, una soluzione abitativa esclusiva, accessibile solo ai residenti tramite tastierino numerico d'ingresso.
L'intero complesso è circondato da un magnifico giardino interno, con piante su tutte le balconate e logge esterne, irrigato tramite un sistema centralizzato con accumulo d'acqua. Inoltre, l'edificio è progettato secondo i principi della classe energetica Nzeb (Near Zero Energy Building), grazie all'impianto fotovoltaico centralizzato da 44 kW e ad altri accorgimenti, come cappotto esterno, gestione dell'irraggiamento naturale e ombreggiatura naturale tramite balconi aggettanti.
La posizione centrale permette di accedere facilmente a scuole, banche, farmacie, supermercati e dista circa 650 m dal mare. Questa è la soluzione ideale per chi cerca un immobile di grande prestigio, con un impatto estetico unico e una suggestiva illuminazione notturna che rende l'intero complesso davvero speciale.
Note:
Con prezzo da computare a parte, è possibile acquistare un comodo garage a partire da 42.000, con predisposizione per la ricarica di auto elettriche.
Con prezzo da computare a parte, è possibile acquistare una comoda cantina a partire da 10.000.
Con prezzo da computare a parte, è possibile acquistare un posto auto esterno all'interno del complesso, al prezzo di 26.000.
Nessuna commissione a carico dell'acquirente.
Main data
| Reference | 33209 |
| Ad date | 15/05/2025 |
| Contract | Sale |
| Typology | Apartment |
| Surface | 48 m2 |
| Locals | 1 (1 bedroom), 1 bathroom, kitchen kitchenette |
| Plan | Attic, 3 totals |
| Construction type | Signorile |
| Occupied | Free |
| Garage | Single |
| Number of parking spaces | 1 |
Costs
| Price | 255.000 € |
| Price per m2 | 5.313 €/m2 |
Energy efficiency
| Status | Excellent |
| Heating | Autonomous |
| Heating System Type | by air |
| Heating Power Type | Photovoltaic |
| Energy rating | A4 |
Floor plans
Address and map
Via Formentini
1, San Benedetto del Tronto
Ad without map,
try asking the advertiser for the position
try asking the advertiser for the position
Mortgage calculation
Selling price:
Advance
20,00
Mortgage
80,00
Rate: -+
Payment: 729 per month
The results are an indicative estimate based on the data entered and do not constitute a financial offer.
Advertiser

Spina & Marchei
Viale De Gasperi 113, San Benedetto del Tronto
Show Phone
Show Mobile
Spina Giovanni
Show Phone
Call
CONTACT

