One-room apartment Via Formentini 1, San Benedetto del Tronto
€ 245.000
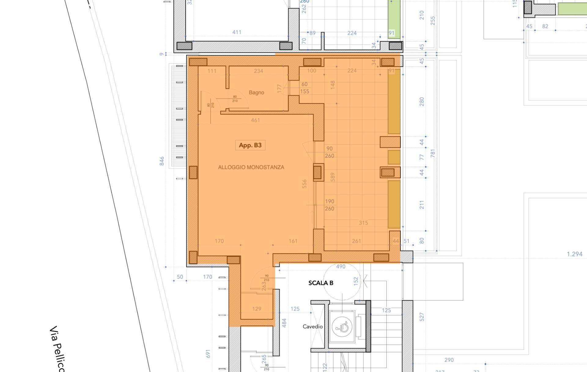
Appartamento monolocale sito al primo piano, con una superficie di circa 48 m², composto da ingresso su corridoio, ampio soggiorno con angolo cottura e zona notte, un bagno finestrato e un ripostiglio lavanderia. L'appartamento è inoltre dotato di una terrazza a loggia coperta di circa 26 m², perfetta per soggiornare all'aperto durante la bella stagione. L'immobile, pronto per la consegna, è rifinito con pavimentazione in parquet di rovere su tutta la superficie, infissi certificati Schüco e impianto di riscaldamento e raffrescamento canalizzato, con controllo tramite app da remoto e temperatura regolabile in ogni stanza. L'unità fa parte di una piccola palazzina di soli tre piani, inserita nel prestigioso complesso residenziale Caroselli Garden House, una soluzione abitativa esclusiva e accessibile solo ai residenti, grazie al tastierino numerico d'ingresso. L'intero complesso è circondato da un meraviglioso giardino interno, con piante su tutte le balconate e logge esterne, irrigato tramite un sistema centralizzato con accumulo d'acqua. Inoltre, l'edificio è stato progettato secondo i principi della classe energetica Nzeb (Near Zero Energy Building), grazie all'impianto fotovoltaico centralizzato da 44 kW e ad altri accorgimenti come cappotto esterno, gestione dell'irraggiamento naturale e ombreggiatura tramite balconi aggettanti. La posizione centrale consente di accedere facilmente a scuole, banche, farmacie, supermercati, e dista circa 650 m dal mare. Questa soluzione è perfetta per chi cerca un immobile di grande prestigio, con un design esclusivo e una suggestiva illuminazione notturna che rende l'intero complesso unico. Note: Con prezzo da computare a parte, è possibile acquistare un comodo garage a partire da 42.000, con predisposizione per la ricarica di auto elettriche. Con prezzo da computare a parte, è possibile acquistare una comoda cantina a partire da 10.000. Con prezzo da computare a parte, è possibile acquistare un posto auto esterno, sempre all'interno del complesso, al costo di 26.000. Nessuna commissione a carico dell'acquirente.
Main data
| Reference | 33208 |
| Ad date | 15/05/2025 |
| Contract | Sale |
| Typology | Apartment |
| Surface | 48 m2 |
| Locals | 1 (1 bedroom), 1 bathroom, kitchen kitchenette |
| Plan | 1 from 3 totals |
| Construction type | Signorile |
| Occupied | Free |
| Garage | Single |
| Number of parking spaces | 1 |
Costs
| Price | 245.000 € |
| Price per m2 | 5.104 €/m2 |
Energy efficiency
| Status | Excellent |
| Heating | Autonomous |
| Heating System Type | by air |
| Heating Power Type | Photovoltaic |
| Energy rating | A4 |
Floor plans
Address and map
Via Formentini
1, San Benedetto del Tronto
Ad without map,
try asking the advertiser for the position
try asking the advertiser for the position
Mortgage calculation
Selling price:
Advance
20,00
Mortgage
80,00
Rate: -+
Payment: 701 per month
The results are an indicative estimate based on the data entered and do not constitute a financial offer.
Advertiser

Spina & Marchei
Viale De Gasperi 113, San Benedetto del Tronto
Show Phone
Show Mobile
Spina Giovanni
Show Phone
Call
CONTACT

