Four-room apartment Via Montessori, Venezia
€ 375.000
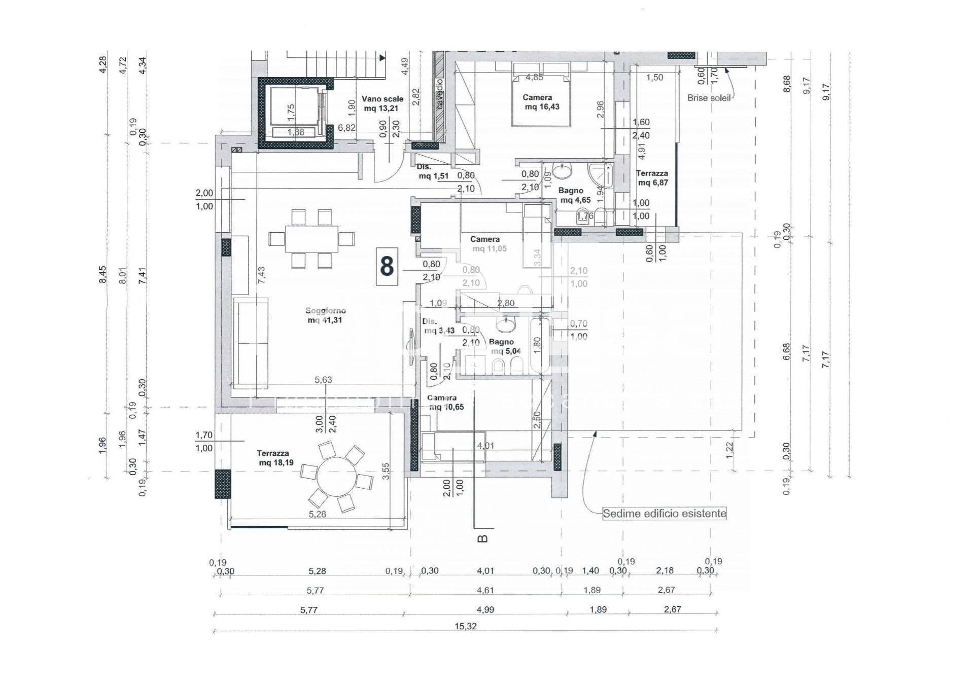
Appartamento di nuova costruzione con 3 camere in vendita a Venezia in zona Chirignago In pronta consegna, situato al piano secondo di un edificio di 9 unità, l'immobile vanta una posizione privilegiata. L'appartamento è dotato di ascensore ed è libero sui lati est - sud- ovest. Dispone di un ingresso su soggiorno cottura di 42 mq., con accesso al terrazzo esposto a sud. I due disimpegni ci conducono alla zona padronale con camera matrimoniale con bagno finestrato e terrazza esposta a est, la zona notte con due camere entrambi di 11 mq., un bagno finestrato. Completa la proprietà un box al piano terra, perfetto per parcheggiare comodamente l'auto. L'immobile gode di tutti i comfort, come il riscaldamento con sistema VMC termodinamica . Non perdere l'opportunità di acquistare questa meravigliosa soluzione abitativa. Per maggiori informazioni potete contattare l'agenzia immobiliare impREsa di Marcon al numero 041 4568553 e chiedere rif. RP/241 oppure tramite mail [email protected]
Main data
| Reference | I/RP241 |
| Ad date | 15/05/2025 |
| Contract | Sale |
| Typology | Apartment |
| Surface | 125 m2 |
| Locals | 4 (3 bedrooms, 1 other), 2 bathrooms, kitchen kitchenette |
| Plan | 2 from 4 totals |
| Construction type | Signorile |
| Occupied | Free |
| Garage | Single |
| Furniture | Absent |
Costs
| Price | 375.000 € |
| Price per m2 | 3.000 €/m2 |
Energy efficiency
| Status | Excellent |
| Heating | Centralized |
| Heating System Type | by air |
| Heating Power Type | Photovoltaic |
| Energy rating | A4 |
Floor plans
Virtual tour
Address and map
Via Montessori, Venezia
Ad without map,
try asking the advertiser for the position
try asking the advertiser for the position
Mortgage calculation
Selling price:
Advance
20,00
Mortgage
80,00
Rate: -+
Payment: 1.072 per month
The results are an indicative estimate based on the data entered and do not constitute a financial offer.
Advertiser
Call
CONTACT


