Independent house MANZONI, Preganziol
€ 550.000
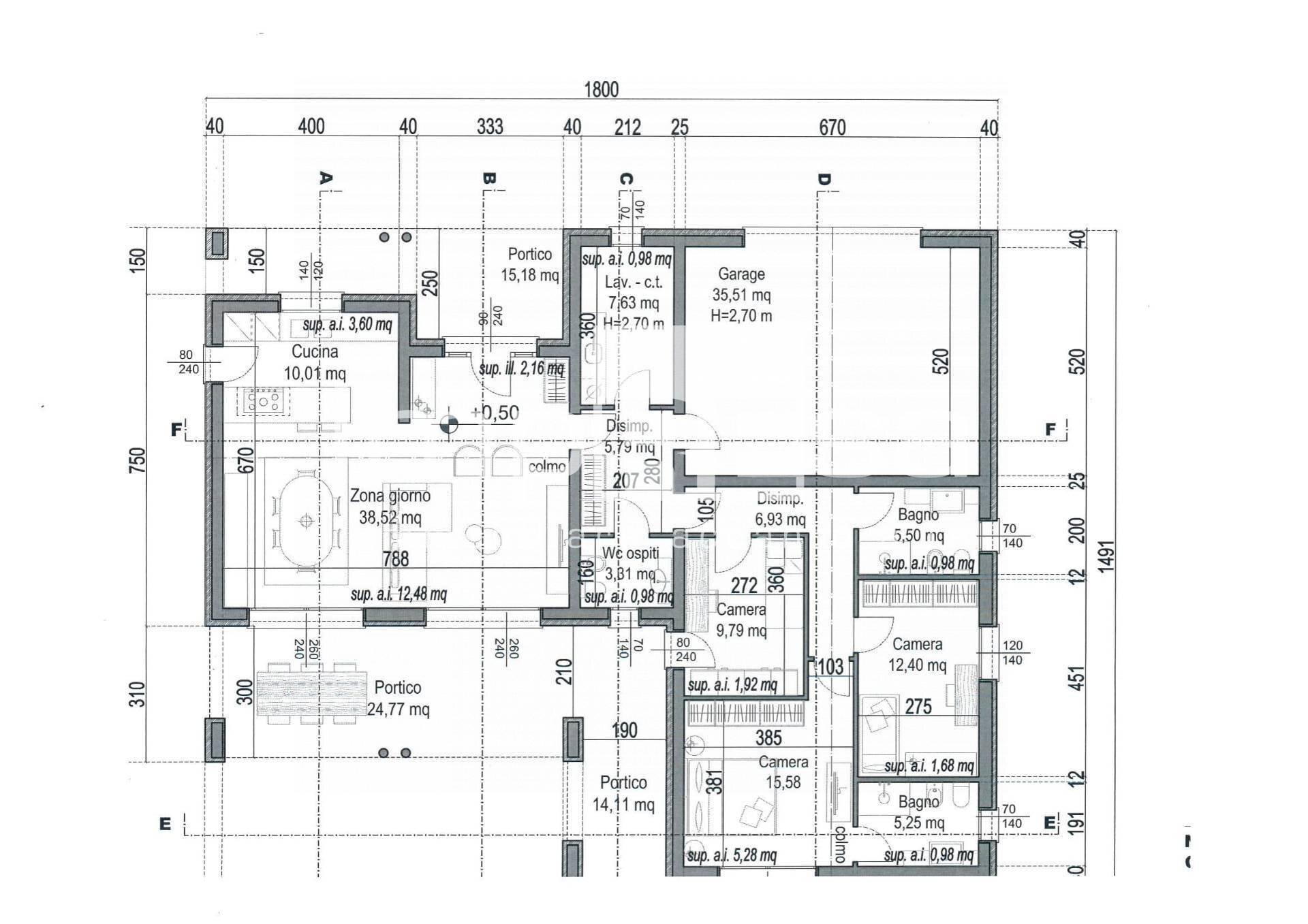
Casa singola in prossima realizzazione in vendita a Preganziol In vendita a Preganziol, nella zona di Sambughè, proponiamo un'elegante e moderna casa indipendente in fase di costruzione, con consegna prevista per il 2026 La proprietà si svilupperà su un unico piano. Il piano terra, avrà una superficie di 130 mq calpestabili con il piano è travato in legno a vista Garage doppio comunicante con l'abitazione. L'immobile sarà composto da 4 locali, tra cui il soggiorno con la cucina ad angolo, 3 camere da letto e 3 bagni, perfetto per ospitare una famiglia numerosa o per chi cerca ampi spazi. La struttura sarà dotata di riscaldamento autonomo, gestito mediante pannelli fotovoltaici, garantendo così una totale indipendenza energetica e un risparmio sui consumi. Inoltre, l'impianto di riscaldamento tramite pavimento renderà l'ambiente sempre confortevole e ben climatizzato. L'esposizione e le ampie vetrate garantiscono una buona luminosità in tutte le stanze e una vista panoramica sul verde circostante del giardino privato, dove potrai trascorrere piacevoli momenti di relax all'aria aperta. Completa la soluzione un comodo box auto doppio, perfetto per parcheggiare al sicuro le tue auto e le tue moto. Attualmente esiste un progetto di massima ma con la possibilità di apportare varianti sia interne che esterne. Non lasciarti sfuggire l'opportunità di acquistare una casa moderna, confortevole e in una zona tranquilla. Contattaci per ulteriori informazioni e per organizzare un appuntamento in agenzia. Per maggiori informazioni su questo immobile a Preganziol potete contattare l'agenzia immobiliare impREsa di Marcon al numero 041 4568553 e chiedere rif. I/RP 244 oppure tramite mail [email protected]
Main data
| Reference | I/RP244 |
| Ad date | 15/05/2025 |
| Contract | Sale |
| Typology | Independent house |
| Surface | 170 m2 |
| Locals | 4 (3 bedrooms, 1 other), 3 bathrooms, kitchen kitchenette |
| Plan | Earth, 1 totals |
| Construction type | Signorile |
| Occupied | Free |
| Garage | Double |
| Furniture | Absent |
Costs
| Price | 550.000 € |
| Price per m2 | 3.235 €/m2 |
Energy efficiency
| Heating | Autonomous |
| Heating System Type | on the floor |
| Heating Power Type | Photovoltaic |
| Energy rating | A4 |
Floor plans
Address and map
MANZONI, Preganziol
Ad without map,
try asking the advertiser for the position
try asking the advertiser for the position
Mortgage calculation
Selling price:
Advance
20,00
Mortgage
80,00
Rate: -+
Payment: 1.573 per month
The results are an indicative estimate based on the data entered and do not constitute a financial offer.
Advertiser
Call
CONTACT


