Independent house unità d'italia 1, Zevio
€ 420.000
Sogna la tua nuova vita in questa splendida dimora, In costruzione, una porzione di bifamiliare di 160mq totalmente indipendente costruita con le ultime tecniche per il risparmio energetico.
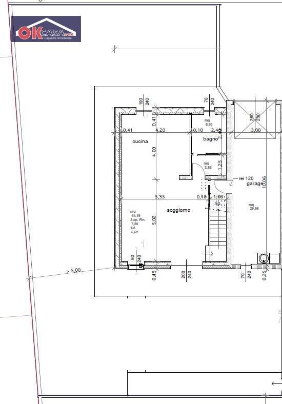
Luminoso soggiorno, cucina abitabile e bagno al piano terra, mentre al piano superiore troverai 3 camere, di cui 2 spaziose matrimoniali, e un ulteriore bagno. Il capitolato di costruzione prevede materiali pregiati, l'impianto fotovoltaico già istallato, riscaldamento realizzato tramite pompa di calore.
Completa la tua esperienza abitativa un ampio giardino di ben 400mq, perfetto per i momenti di relax e un garage doppio per le tue auto e moto. Finiture pregiate e la possibilità di personalizzare gli spazi ti consentiranno di realizzare la tua casa come l'hai sempre desiderata. La costruzione in classe energetica A4 ti consentirà un confort fantastico con irrisorie spese per i consumi.
Affrettati, il tuo sogno abitativo è a soli 420.000
Le informazioni contenute nel sito non costituiscono elemento contrattuale e le metrature sono indicative.
Per qualsiasi informazione sentitevi liberi di contattarci, siamo a vostra disposizione.
Agenzia Immobiliare OkCasaWeb
Via Via Isonzo 7 , Verona
Centr.unico 24 linee : 0459810348
e-mail : [email protected]
sito ufficiale : www.okcasaweb.it
Pagina facebook : Okcasaweb Immobiliare
Luminoso soggiorno, cucina abitabile e bagno al piano terra, mentre al piano superiore troverai 3 camere, di cui 2 spaziose matrimoniali, e un ulteriore bagno. Il capitolato di costruzione prevede materiali pregiati, l'impianto fotovoltaico già istallato, riscaldamento realizzato tramite pompa di calore.
Completa la tua esperienza abitativa un ampio giardino di ben 400mq, perfetto per i momenti di relax e un garage doppio per le tue auto e moto. Finiture pregiate e la possibilità di personalizzare gli spazi ti consentiranno di realizzare la tua casa come l'hai sempre desiderata. La costruzione in classe energetica A4 ti consentirà un confort fantastico con irrisorie spese per i consumi.
Affrettati, il tuo sogno abitativo è a soli 420.000
Le informazioni contenute nel sito non costituiscono elemento contrattuale e le metrature sono indicative.
Per qualsiasi informazione sentitevi liberi di contattarci, siamo a vostra disposizione.
Agenzia Immobiliare OkCasaWeb
Via Via Isonzo 7 , Verona
Centr.unico 24 linee : 0459810348
e-mail : [email protected]
sito ufficiale : www.okcasaweb.it
Pagina facebook : Okcasaweb Immobiliare
Main data
| Reference | 2944 |
| Ad date | 15/05/2025 |
| Contract | Sale |
| Typology | Independent house |
| Surface | 200 m2 |
| Locals | 5 (3 bedrooms, 2 other), 2 bathrooms, kitchen habitable |
| Plan | On several levels, 2 totals |
| Construction type | Signorile |
| Occupied | Free |
| Garage | Double |
| Furniture | Absent |
Costs
| Price | 420.000 € |
| Price per m2 | 2.100 €/m2 |
Energy efficiency
| Heating | Autonomous |
| Heating System Type | on the floor |
| Heating Power Type | Photovoltaic |
| Energy rating | A4 |
Floor plans
Address and map
unità d'italia
1, Zevio
Ad without map,
try asking the advertiser for the position
try asking the advertiser for the position
Mortgage calculation
Selling price:
Advance
20,00
Mortgage
80,00
Rate: -+
Payment: 1.201 per month
The results are an indicative estimate based on the data entered and do not constitute a financial offer.
Advertiser

OK Casa Web
Via Ugo Foscolo 6/c, Monfalcone
Show Phone
Show Mobile
Call
CONTACT

