Villa Via San Gregorio Barbarigo, Vigonza
€ 350.000
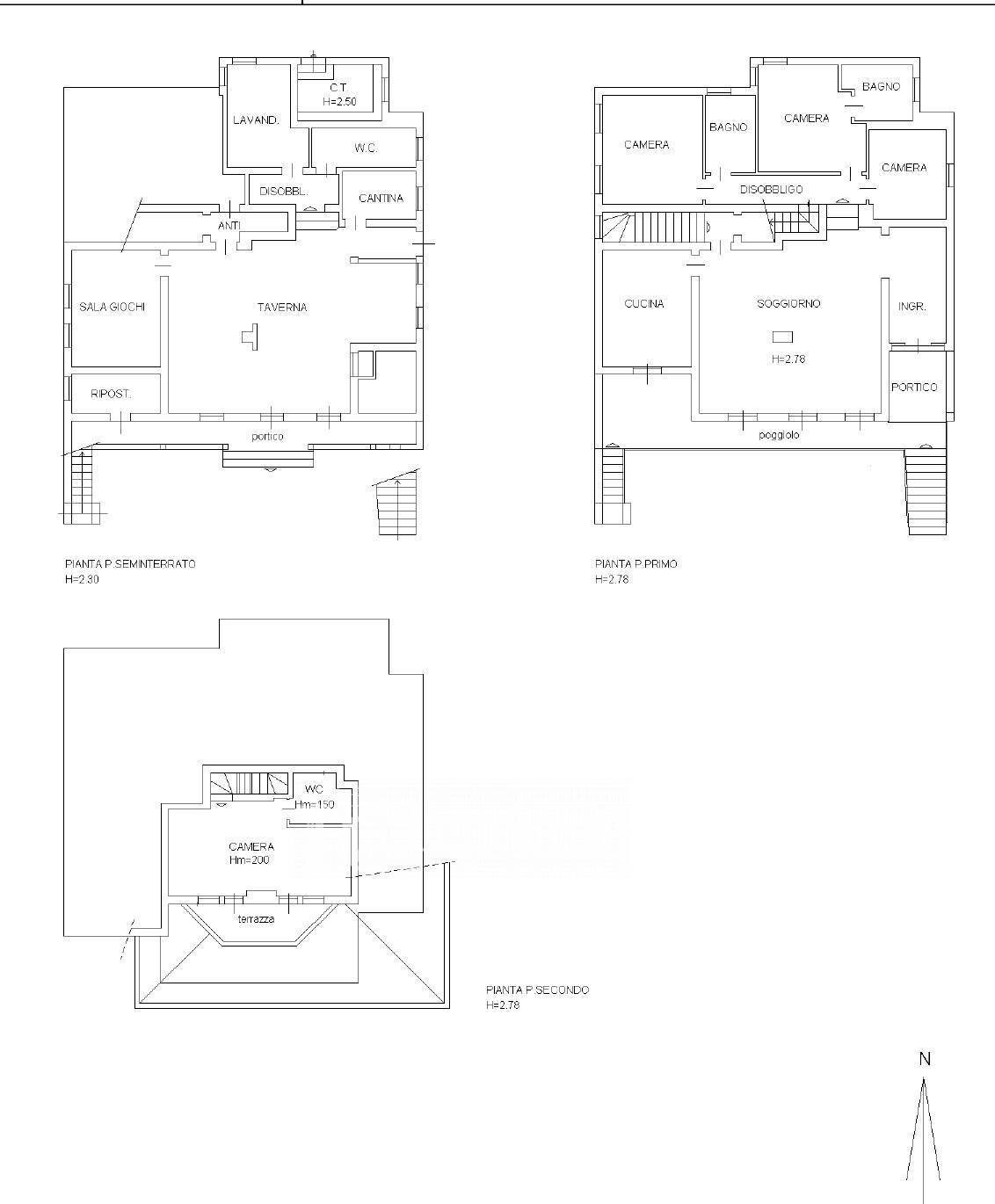
Villa con giardino LUMINOSA AMPI SPAZI VERSATILE Proponiamo in vendita villa con giardino libera su quattro lati. In quartiere residenziale e strategico per raggiungere tutti i servizi, la proprietà si sviluppa su tre livelli e propone ampi spazi abitativi. Al piano rialzato il portico ci conduce all'ingresso dell'abitazione. Da qui si apre un ampio salone oltre al quale accediamo alla cucina abitabile, entrambi con accesso diretto alla terrazza. Il reparto notte é composto di camera matrimoniale, bagno con vasca, camera doppia con bagno esclusivo con doccia e camera singola. Saliamo al piano superiore dove si sviluppa la mansarda con il suo bagno e affaccio al terrazzo. La taverna: fuori terra, si presenta come un secondo appartamento col suo ingresso privato, ma collegato internamente attraverso il garage ed é composta di sala con caminetto centrale, una camera matrimoniale, una stanza ripostiglio, un'area lavanderia utilizzata anche come cucina e bagno con doccia. Agli spazi già descritti si aggiungono due ripostigli sottoscala, il garage doppio e una stanza esterna con accesso dal porticato della taverna utile per gli attrezzi. Aggiungono valore l'impianto fotovoltaico, la predisposizione per l'impianto a pannelli solari doppia caldaia a matano e a pellet e un giardino di circa 540 mq in parte piantumato, in parte pavimentato. Ideale per chi desidera ampi spazi abitativi o per famiglie con genitori o figli che desiderano mantenere indipendenza reciproca. Rif. ES452 www.immobiliare-leonardo.it Vuoi altre informazioni? Vuoi valutare altre offerte immobiliari? Devi vendere il tuo immobile? Contattaci allo 3494372045 Oppure vieni a trovarci nella nostra sede di Viareggio in Corso Garibaldi, 170 L'indirizzo proposto può essere nelle vicinanze per ragioni di privacy
Main data
| Reference | ES452 |
| Ad date | 15/05/2025 |
| Contract | Sale |
| Typology | Villa |
| Surface | 409 m2 |
| Locals | more than 5 (5 bedrooms, 4 other), 4 bathrooms, kitchen habitable |
| Construction type | Average |
| Occupied | Free |
| Garage | Double |
| Number of parking spaces | 2 |
| Furniture | Absent |
Costs
| Price | 350.000 € |
| Price per m2 | 856 €/m2 |
Energy efficiency
| Heating | Autonomous |
| Energy rating | D |
| Energy Performance Index (IPE) | 109 kWh/m2 year |
Floor plans
Address and map
Via San Gregorio Barbarigo, Vigonza
Ad without map,
try asking the advertiser for the position
try asking the advertiser for the position
Mortgage calculation
Selling price:
Advance
20,00
Mortgage
80,00
Rate: -+
Payment: 1.001 per month
The results are an indicative estimate based on the data entered and do not constitute a financial offer.
Advertiser

Agenzia Immobiliare Leonardo
Corso Garibaldi, 170, Viareggio
Show Phone
Show Mobile
Call
CONTACT

