Box Stradella Barone 8/a, Bari
€ 67.000
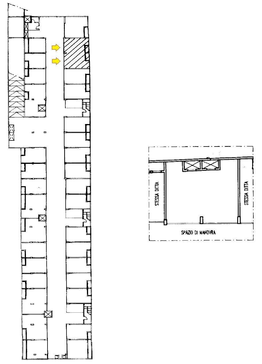
SAN PASQUALE ALTA Vendesi in zona Fanelli/Marin, nelle vicinanze del nuovo Parco della Giustizia, ampio box auto doppio di mq. 60 circa sito al secondo piano interrato di un fabbricato signorile con ampie aree a verde. Si giunge al corridoio comune di accesso tramite una comoda rampa carrabile ed è collegato al piano terra anche da ascensore. Il box è dotato di due serrande elettriche radiocomandate, impianto di illuminazione ed intercapedine.
Divisibile facilmente in due unità autonome.
Per maggiori informazioni e appuntamenti contattaci al numero 080/5027068.
Divisibile facilmente in due unità autonome.
Per maggiori informazioni e appuntamenti contattaci al numero 080/5027068.
Main data
| Reference | Boxbarone8 |
| Ad date | 15/05/2025 |
| Contract | Sale |
| Typology | Box |
| Surface | 60 m2 |
| Locals | 2 (2 other) |
| Plan | Basement, 5 totals |
| Occupied | Free |
Costs
| Price | 67.000 € |
| Price per m2 | 1.117 €/m2 |
Energy efficiency
| Status | Excellent |
| Heating Power Type | Other |
| Energy rating | Property exempt from energy certification |
Floor plans
Video
Address and map
Stradella Barone
8/a, Bari
Ad without map,
try asking the advertiser for the position
try asking the advertiser for the position
Mortgage calculation
Selling price:
Advance
20,00
Mortgage
80,00
Rate: -+
Payment: 192 per month
The results are an indicative estimate based on the data entered and do not constitute a financial offer.
Advertiser

Planifim S.r.l.
Via Giuseppe Fanelli 217/d, Bari
Show Phone
Show Mobile
Call
CONTACT

