Building land via santandra' camalo' di povegliano, Povegliano
Private negotiation
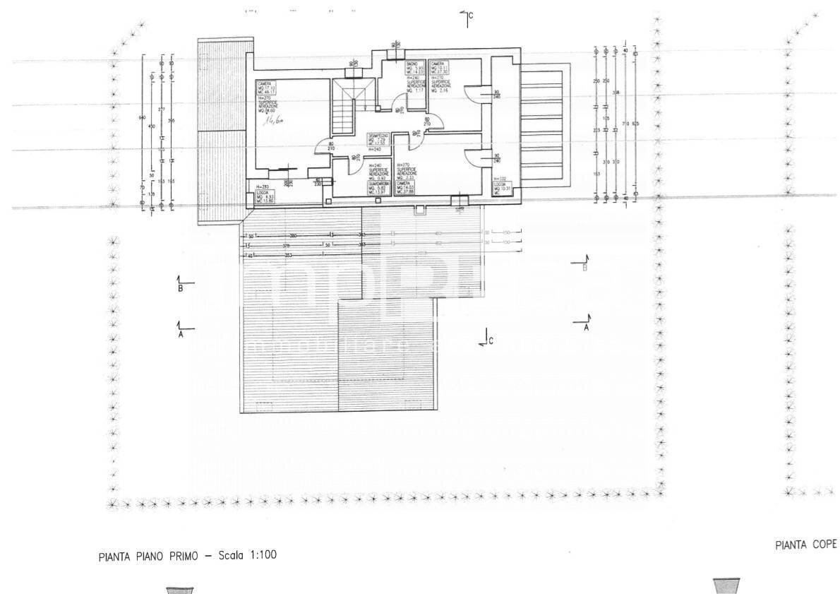
Vendesi lotto edificabile residenziale a Povegliano. Nella frazione di Camalo', proponiamo in vendita lotto edificabile residenziale con progetto approvato per la realizzazione di splendida villa singola. La posizione, tranquilla e defilata, offre massima privacy. Il contesto è prettamente residenziale e gode di ogni servizio a portata di mano. Nel lotto sono gia' state eseguite le opere di fondazione fino al raggiungimento del sottofondo del piano terra comprensivo del marciapiede perimetrale, il prezzo prevede anche parte di recinzione esterna ed allacciamento acquedotto gia' eseguiti. Sono compresi inoltre i costi inerenti oneri di costruzione e in parte di progettazione. Trattativa riservata in agenzia, presso la quale ci rendiamo disponibili a visionare il progetto completo ed avere un indicazione dei costi di realizzazione. Per informazioni ed eventuali visite su questo lotto edificabile residenziale in vendita a Camalo' di Povegliano chiamare il N. 0422/454323 con riferimento I/LF220 oppure consultate il nostro sito www.impresaimmobiliare.com
Main data
| Reference | I/LF220 |
| Ad date | 15/05/2025 |
| Contract | Sale |
| Typology | Building land |
| Surface | 900 m2 |
| Occupied | Free |
Costs
| Price | Private negotiation |
Energy efficiency
| Heating Power Type | Other |
| Energy rating | Property exempt from energy certification |
Floor plans
Address and map
via santandra' camalo' di povegliano, Povegliano
Ad without map,
try asking the advertiser for the position
try asking the advertiser for the position
Advertiser

impREsa Paese
Via Roma 148, Paese
Show Phone
Call
CONTACT

