Building land VIA ONGARINE, Paese
€ 130.000
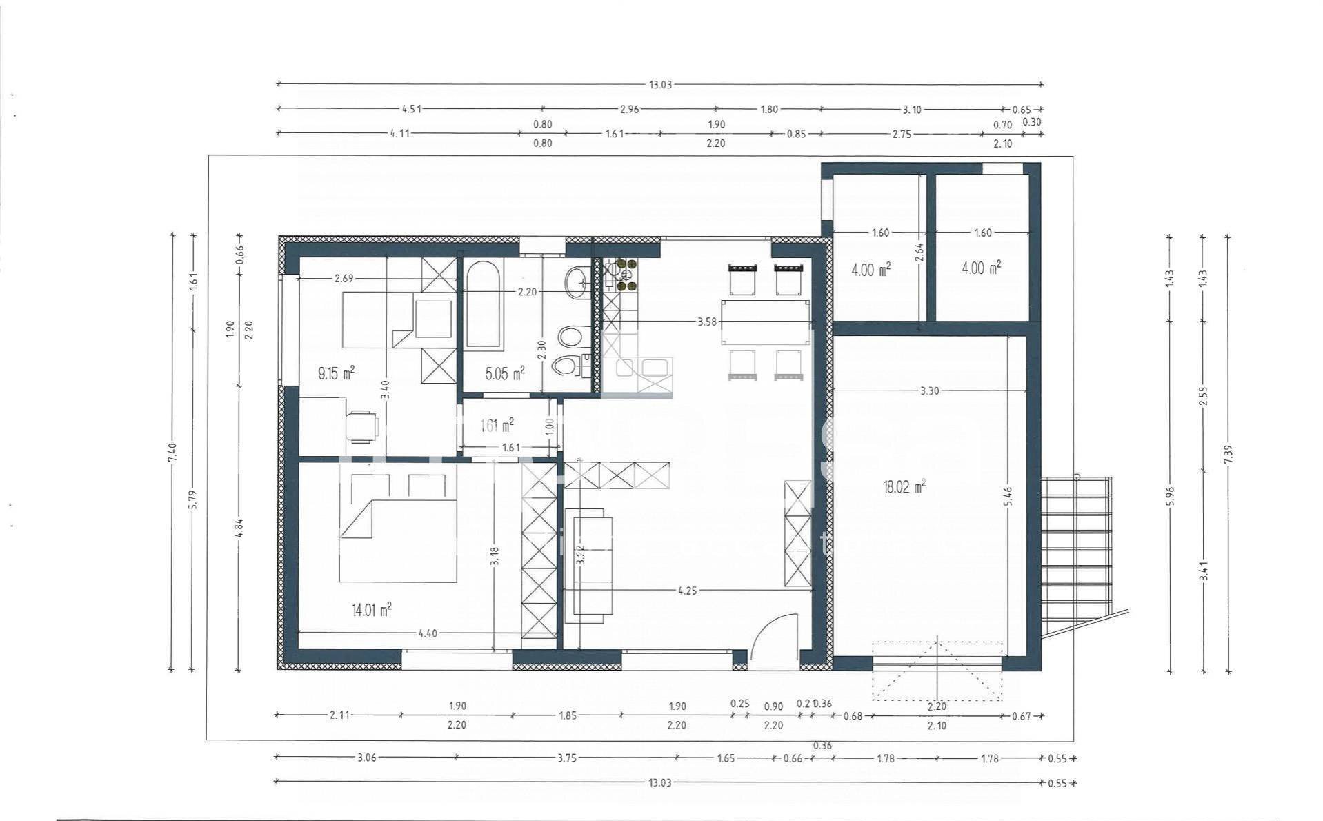
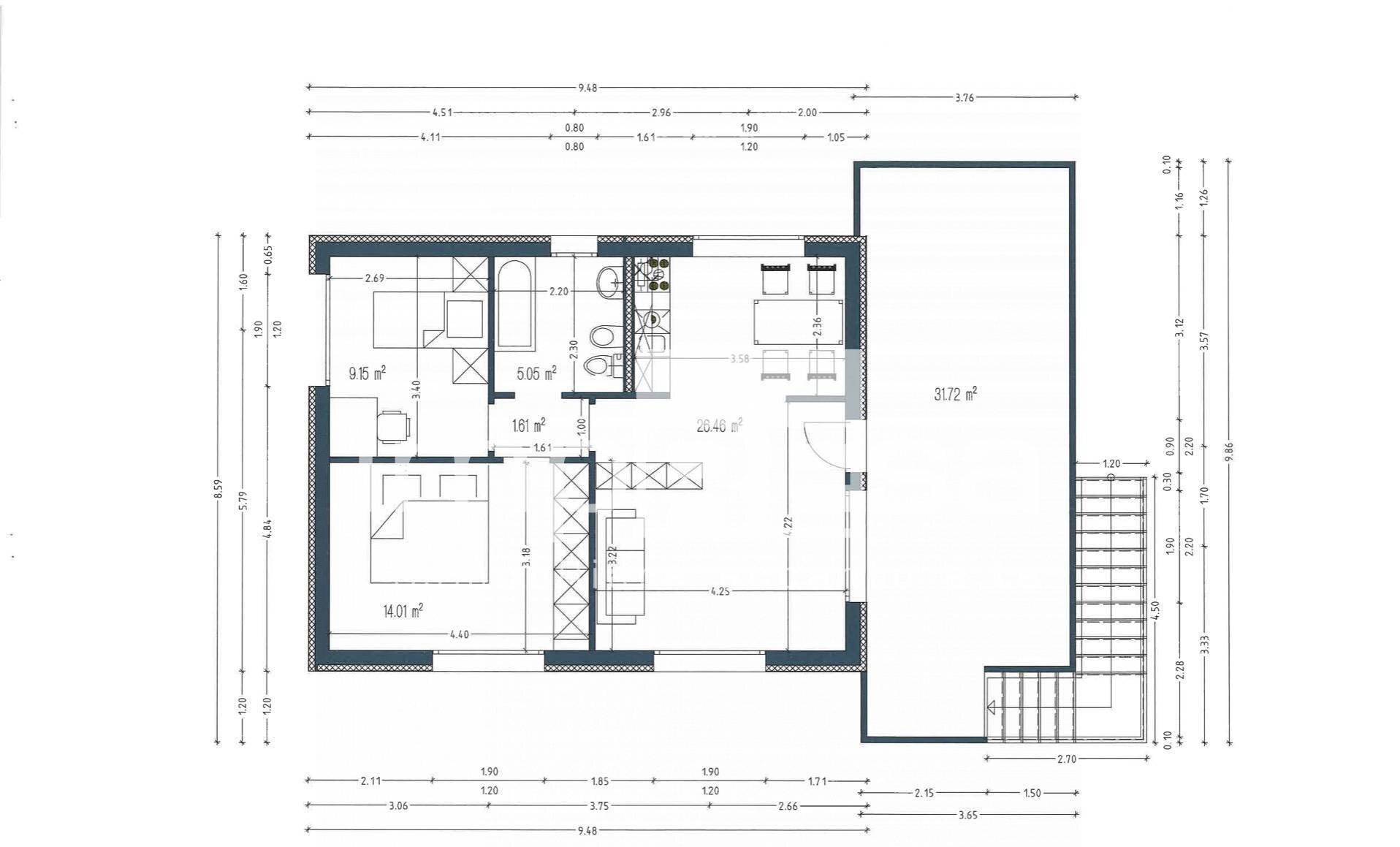
Terreno edificabile di 1053 mq. con progetto a Castagnole di Paese. A 5 minuti di auto dal centro di Castagnole proponiamo in esclusiva terreno edificabile di 1053 mq. per la realizzazione di due case singole i cui progetti sono già stati approvati. Il terreno fa parte di più ampie particelle che saranno soggette a frazionamento sulle quali è possibile realizzare due case singole con rispettive aree verdi esclusive di 414mq e 300 mq. oltre ad una porzione di terreno comune ai due lotti da 135 mq. sul quale dovranno essere realizzate le opere di urbanizzazione su cui è prevista la realizzazione di 2 posti auto scoperti. Il terreno in questione sarà classificato come bene comune non censibile ai due lotti denominati "A" e "B". Il lotto denominato "A" ha una superficie di 540 mq. sul quale è stato progettato la realizzazione di una casa singola sviluppata su 2 livelli di 169 mq. commerciali oltre ad un terrazzo abitabile da 32 mq. ed un'area scoperta ad uso esclusivo di 414 mq. Il lotto denominato "B" ha una superficie di 378 mq. sul quale è stato progettato la realizzazione di una casa singola sviluppata su 2 livelli di 138 mq. commerciali ed un'area scoperta ad uso esclusivo di 300 mq. Progetti e capitolato presso i nostri uffici impREsa di Treviso in Piazza delle istituzioni 41 e Paese (TV) in Via Roma 148/B. Per maggiori informazioni su questo terreno edificabile, contattare il numero 04221784050 oppure visitate il nostro sito web. www.impresaimmobiliare.com. RIF.I/AL287
Main data
| Reference | I/AL287 |
| Ad date | 13/05/2025 |
| Contract | Sale |
| Typology | Building land |
| Surface | 1053 m2 |
| Occupied | Free |
Costs
| Price | 130.000 € |
| Price per m2 | 123 €/m2 |
Energy efficiency
| Heating Power Type | Other |
| Energy rating | Property exempt from energy certification |
Floor plans
Address and map
VIA ONGARINE, Paese
Ad without map,
try asking the advertiser for the position
try asking the advertiser for the position
Mortgage calculation
Selling price:
Advance
20,00
Mortgage
80,00
Rate: -+
Payment: 372 per month
The results are an indicative estimate based on the data entered and do not constitute a financial offer.
Advertiser
Call
CONTACT


