Semi-detached house Ariona, Ravenna
€ 450.000
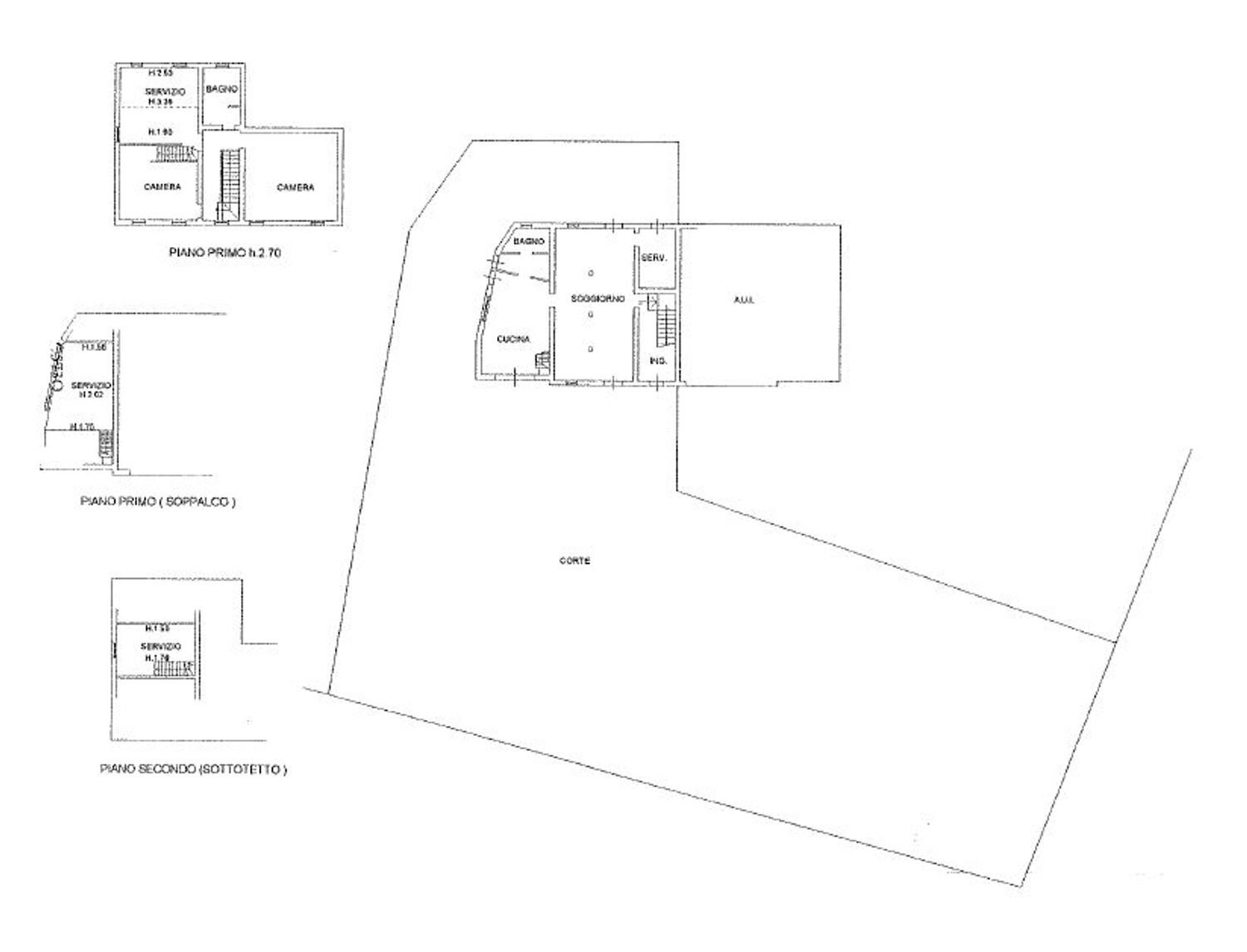
Vendiamo a Castiglione di Ravenna, vicino a tutti i principali servizi, bifamiliare su lotto di circa 1600 mq, immersa nel verde della campagna. Composta da due unità immobiliari, nello specifico l'unità principale è disposta su due livelli, al piano terra soggiorno con un meraviglioso soffitto a volta, da un ampia e luminosa cucina abitabile, un bagno e vani adibiti a servizio. Al piano superiore troviamo la zona notte composta da tre camere da letto ed un ampio bagno confortevole. Le splendide rifiniture in stile rustico rendono la villa molto confortevole e accogliente. La casa, completamente ristrutturata, si presenta in ottime condizioni e pronta per essere abitata. Soluzione ideale per chi ricerca indipendenza, tranquillità ed ampi spazi. Rif. 147-1.
Main data
| Reference | BRB147-1 |
| Ad date | 13/05/2025 |
| Contract | Sale |
| Typology | Semi-detached house |
| Surface | 160 m2 |
| Locals | 3 (3 other), 2 bathrooms |
| Plan | Earth |
Costs
| Price | 450.000 € |
| Price per m2 | 2.813 €/m2 |
Energy efficiency
| Status | Good |
| Heating Power Type | Other |
| Energy rating | Property exempt from energy certification |
Floor plans
Address and map
Ariona, Ravenna
Ad without map,
try asking the advertiser for the position
try asking the advertiser for the position
Mortgage calculation
Selling price:
Advance
20,00
Mortgage
80,00
Rate: -+
Payment: 1.287 per month
The results are an indicative estimate based on the data entered and do not constitute a financial offer.
Advertiser
Call
CONTACT

