Villa Via delle Capanne 1185, Camaiore
€ 980.000
Camaiore, vani 7, nella tranquillità delle colline della Versilia circondata dal verde in posizione esclusiva e strategica a soli 6 km dal mare, bellissima e storica villa su più livelli divisa in 2 unità abitative completamente indipendenti con ingresso e giardino privato, più precisamente:
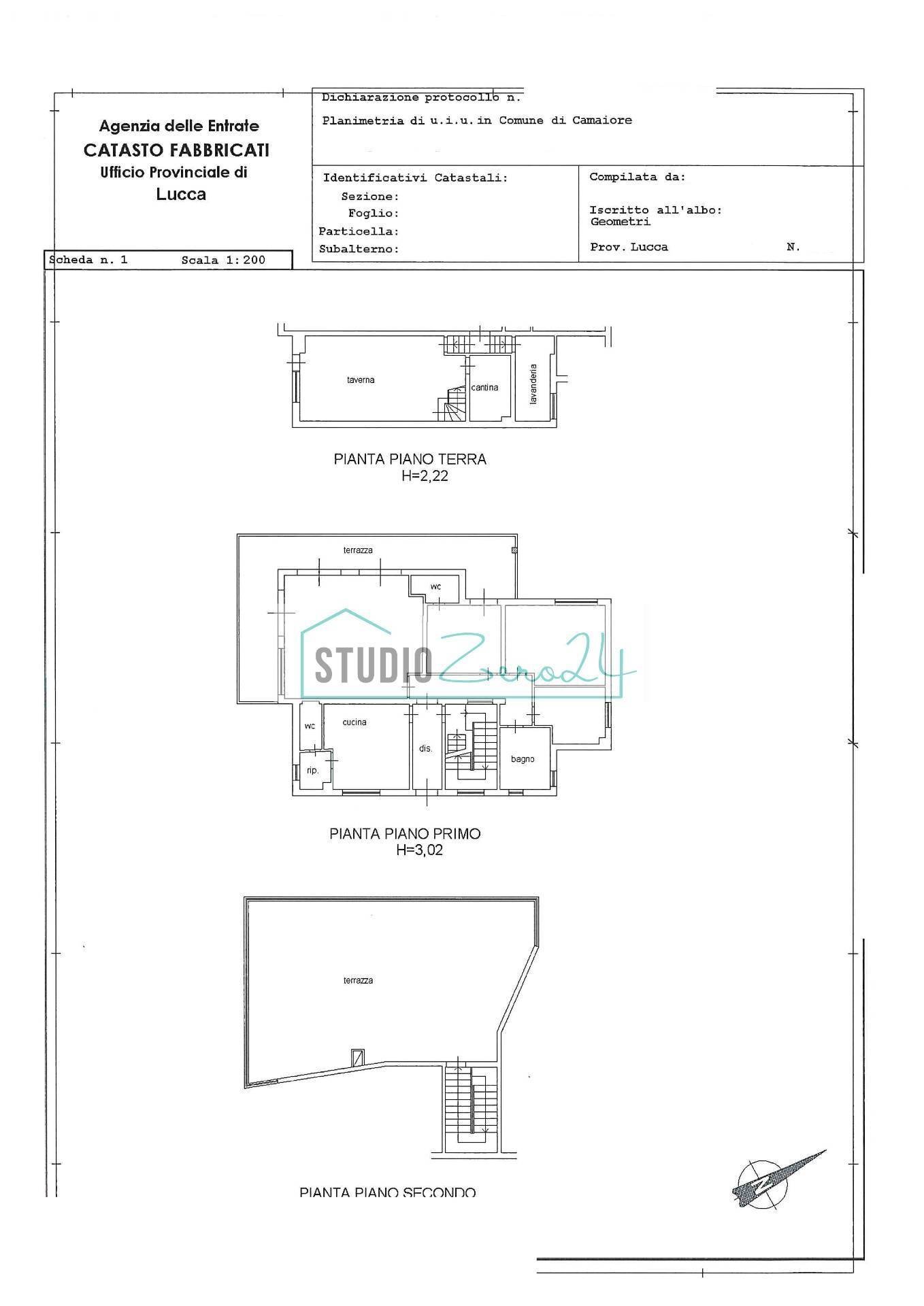
- appartamento al piano terra di circa 150mq con ingresso, sala, cucina, 2 camere matrimoniali con servizio in suite di cui una con accesso ad ampia terrazza privata e camera a grezzo da ultimare a proprio gusto. Attualmente il piano terra è utilizzato come rinomato B&B.;
- 1° piano di circa 150mq con ingresso, ampia e luminosa sala coronata da terrazza abitabile a perimetro di 2 lati della villa con affaccio sul litorale, cucina abitabile, suite con bagno, 2 camere di cui una matrimoniale e sala da bagno con vasca e doccia.
Circonda la proprietà ampio giardino con posti auto privati e frutteto, a completare la terrazza panoramica con vista a 360° sulla Versilia e non solo, dalle Alpi Apuane al litorale permette di ammirare gran parte della costa fino alle Cinque Terre e di godere della piacevole vista delle nostre isole.
Quest'opera d'arte con taglio tipicamente anni 70 offre infinite possibilità, può accontentare infatti più esigenze, dalla ricerca della casa vacanze perfetta, all'attenta ricerca dell' ideale struttura ricettiva essendo anche un ottima occasione di investimento sul nostro territorio.
Corona della Versilia e immersa in un quadro suggestivo rappresenta un irrinunciabile oasi di pace.
La nostra missione è offrire unesperienza personalizzata e di qualità per ogni cliente, accompagnandolo in tutte le fasi della compravendita immobiliare.
Conosciamo profondamente il territorio e ci impegniamo a comprendere le esigenze uniche di chi si rivolge a noi, lavorando con trasparenza e passione per creare un rapporto di fiducia duraturo.
Puntiamo a migliorare costantemente i nostri servizi per essere un punto di riferimento locale affidabile e competente.
- appartamento al piano terra di circa 150mq con ingresso, sala, cucina, 2 camere matrimoniali con servizio in suite di cui una con accesso ad ampia terrazza privata e camera a grezzo da ultimare a proprio gusto. Attualmente il piano terra è utilizzato come rinomato B&B.;
- 1° piano di circa 150mq con ingresso, ampia e luminosa sala coronata da terrazza abitabile a perimetro di 2 lati della villa con affaccio sul litorale, cucina abitabile, suite con bagno, 2 camere di cui una matrimoniale e sala da bagno con vasca e doccia.
Circonda la proprietà ampio giardino con posti auto privati e frutteto, a completare la terrazza panoramica con vista a 360° sulla Versilia e non solo, dalle Alpi Apuane al litorale permette di ammirare gran parte della costa fino alle Cinque Terre e di godere della piacevole vista delle nostre isole.
Quest'opera d'arte con taglio tipicamente anni 70 offre infinite possibilità, può accontentare infatti più esigenze, dalla ricerca della casa vacanze perfetta, all'attenta ricerca dell' ideale struttura ricettiva essendo anche un ottima occasione di investimento sul nostro territorio.
Corona della Versilia e immersa in un quadro suggestivo rappresenta un irrinunciabile oasi di pace.
La nostra missione è offrire unesperienza personalizzata e di qualità per ogni cliente, accompagnandolo in tutte le fasi della compravendita immobiliare.
Conosciamo profondamente il territorio e ci impegniamo a comprendere le esigenze uniche di chi si rivolge a noi, lavorando con trasparenza e passione per creare un rapporto di fiducia duraturo.
Puntiamo a migliorare costantemente i nostri servizi per essere un punto di riferimento locale affidabile e competente.
Main data
| Reference | 81764 |
| Ad date | 13/05/2025 |
| Contract | Sale |
| Typology | Villa |
| Surface | 310 m2 |
| Locals | more than 5 (5 bedrooms, 2 other), 5 bathrooms, kitchen habitable |
| Plan | Entire building, 3 totals |
| Occupied | Free |
| Garage | Absent |
| Number of parking spaces | 5 |
| Furniture | Absent |
Costs
| Price | 980.000 € |
| Price per m2 | 3.161 €/m2 |
Energy efficiency
| Status | Good |
| Heating | Autonomous |
| Energy rating | G |
| Energy Performance Index (IPE) | 145 kWh/m2 year |
Floor plans
Address and map
Via delle Capanne
1185, Camaiore
Ad without map,
try asking the advertiser for the position
try asking the advertiser for the position
Mortgage calculation
Selling price:
Advance
20,00
Mortgage
80,00
Rate: -+
Payment: 2.803 per month
The results are an indicative estimate based on the data entered and do not constitute a financial offer.
Advertiser

Studiozero24 Camaiore
Via del Fortino 43, Camaiore
Show Phone
Show Mobile
Call
CONTACT

