Commercial Premises Piazza Mentana, Milano
€ 6.500 per month
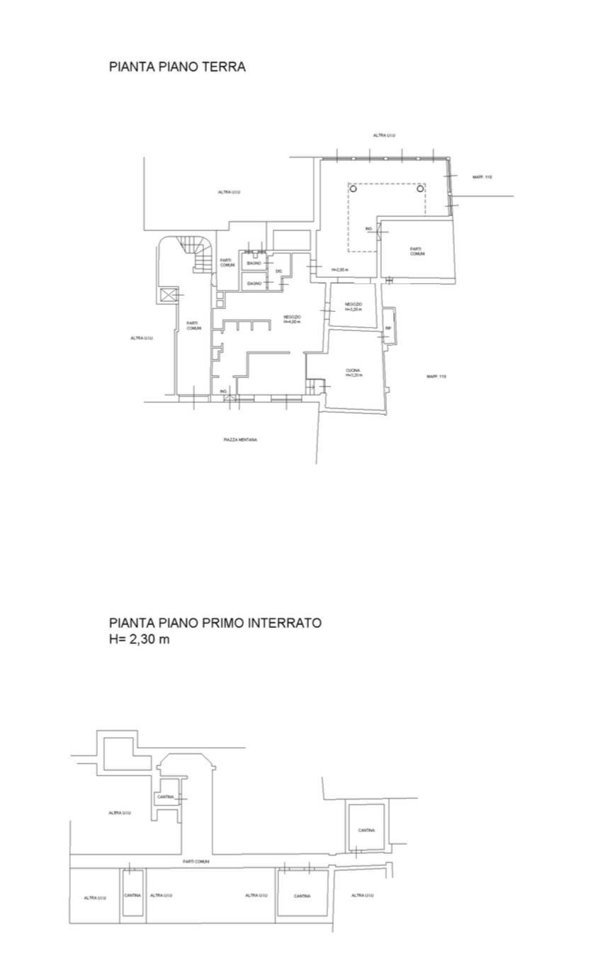
La FP Real Estate propone in affitto, in prossimità della commerciale Via Torino e da Piazza Duomo, in Piazza Mentana, un locale commerciale posto al piano terra caratterizzato da 2 vetrine espositive fronte strada. La soluzione è interamente da ristrutturare, si sviluppa su una superficie complessiva di circa 167mq, così distribuiti, ingresso su area somministrazione food-beverage con attiguo servizio per i clienti ed annessa area preparazione-cucina. Completa la soluzione una cantina esterna di pertinenza, posta al piano interrato pari a quattro vani, per un totale di 32mq Food con CANNA FUMARIA Per ulteriori informazioni contattateci allo 0917781384
Main data
| Reference | 288 |
| Ad date | 13/05/2025 |
| Contract | Rent |
| Typology | Commercial Premises |
| Surface | 167 m2 |
| Locals | 4 (4 other), 2 bathrooms, kitchen not present |
| Plan | Earth |
| Occupied | Free |
| Garage | Absent |
| Furniture | Absent |
Costs
| Price | 6.500 € per month |
Energy efficiency
| Status | To be restored |
| Heating | Centralized |
| Heating Power Type | Other |
| Energy rating | Property exempt from energy certification |
Floor plans
Address and map
Piazza Mentana, Milano
Ad without map,
try asking the advertiser for the position
try asking the advertiser for the position
Advertiser
Call
CONTACT


